Предложим на выбор профиль
Сделаем расчет цены без замера с точностью 95%
Подготовим смету и пришлем в течении дня
Проектирование светопрозрачных конструкций

Проектирование светопрозрачных конструкций

Наш конструкторский отдел готов реализовать проект любой сложности, в абсолютно короткие сроки для заказчика. Также мы обеспечиваем полное сопровождение проекта до окончания монтажа конструкций с полной консультацией и выездом на ваш объект.

Особенности проектирования светопрозрачных конструкций:

При проектировании мы учитываем всё до мельчайших деталей, поэтому готовое изделие будет полностью соответствовать вашим требованиям и архитектурно-ландшафтным особенностям объекта, на котором будет происходить установка конструкции.

Наш опытный конструкторский отдел использует современное ПО (Auto CAD, SolidWorks и другие профессиональные конструкторские программы), поэтому по вашему желанию мы можем спроектировать индивидуальный и нестандартный проект любой сложности.

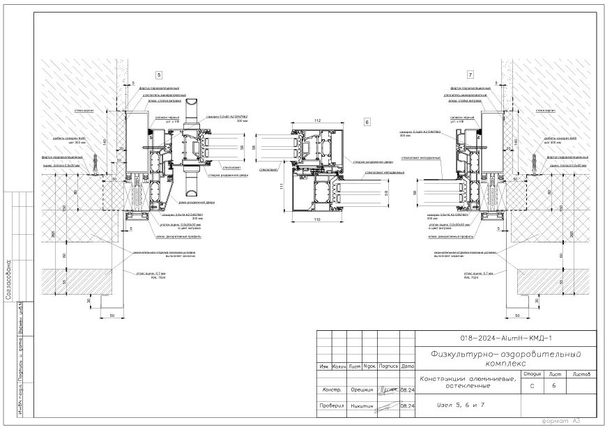
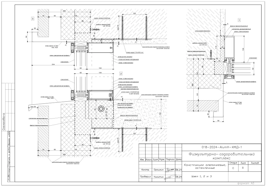
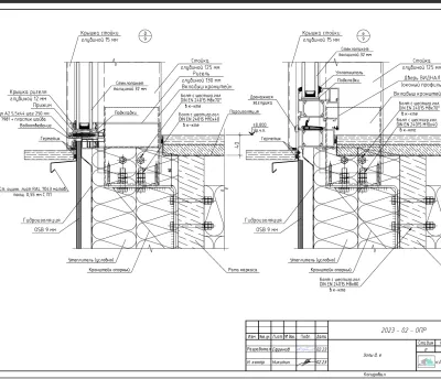
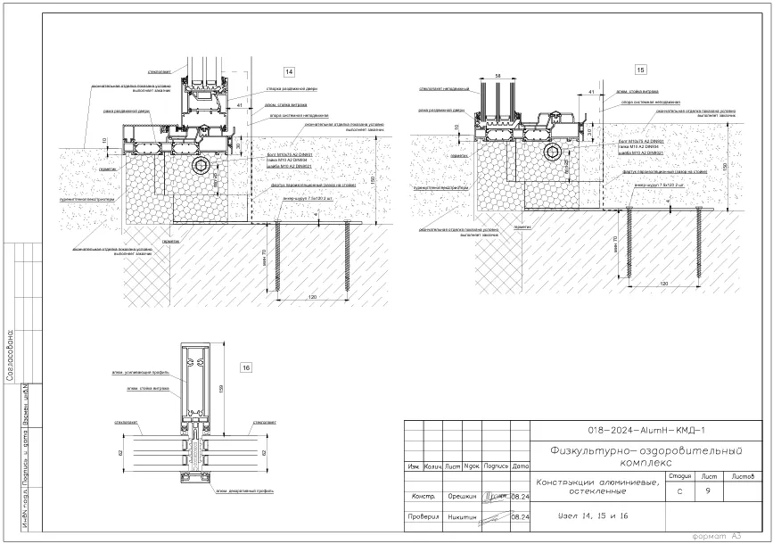
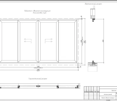
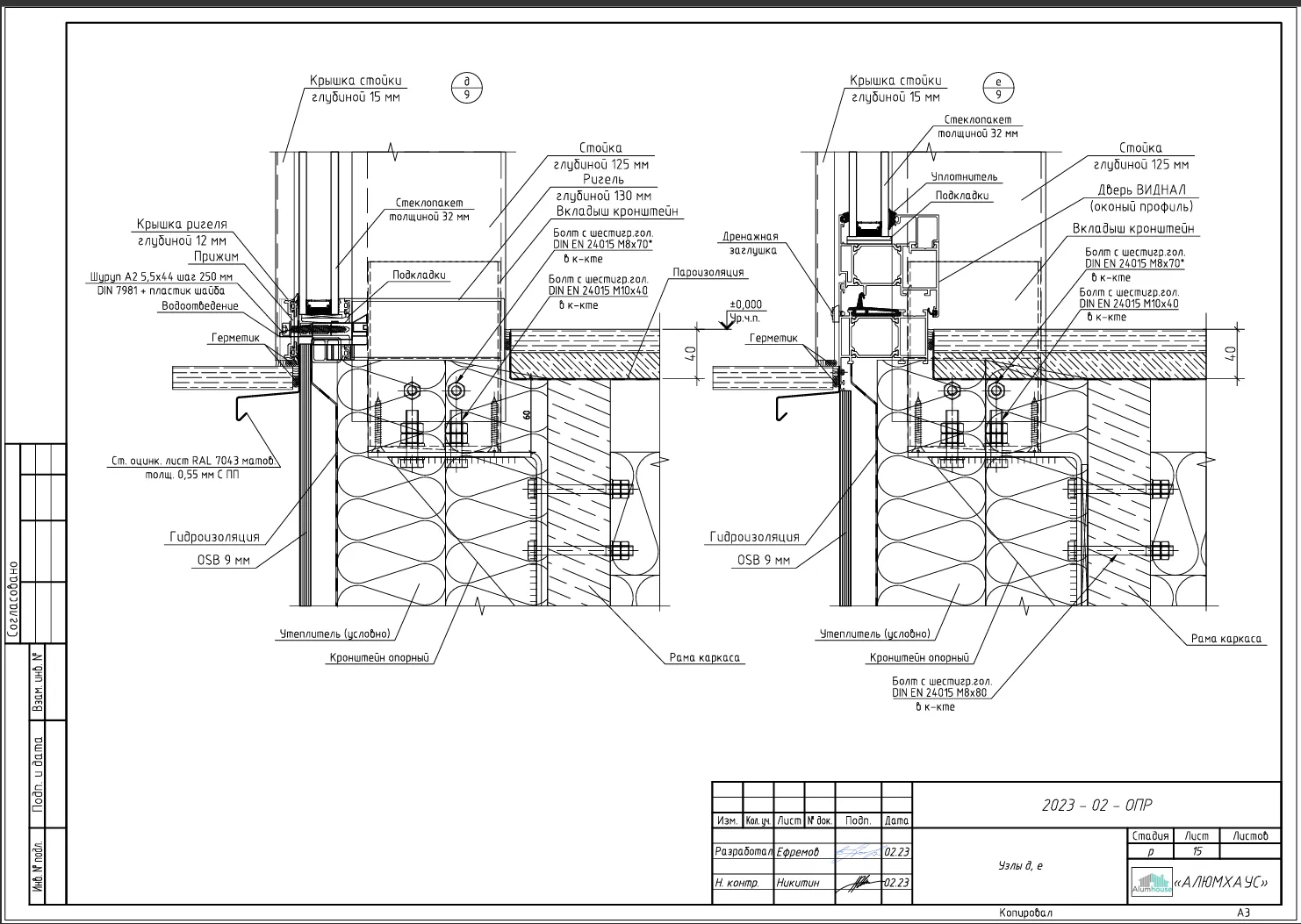
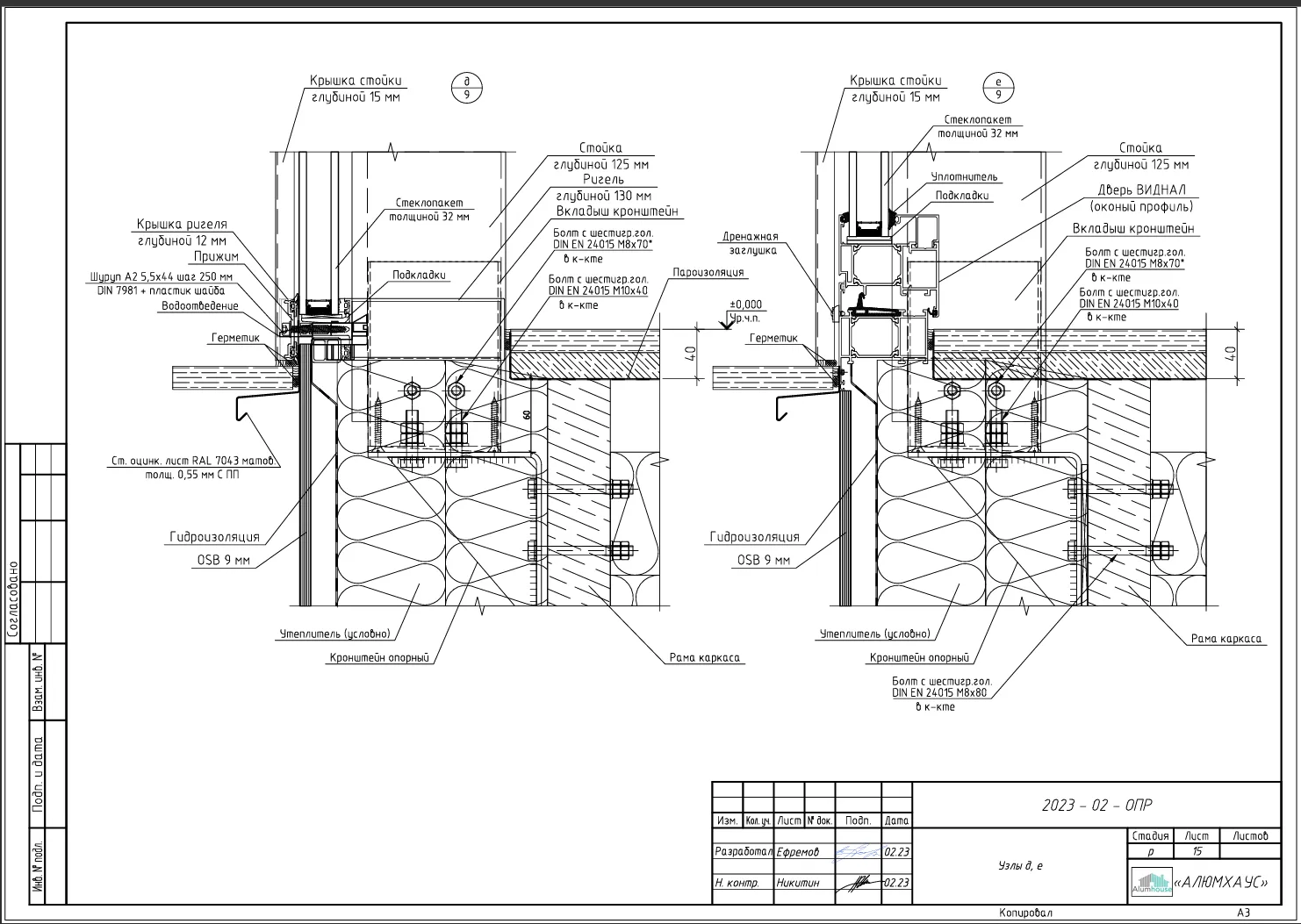
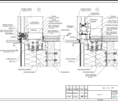
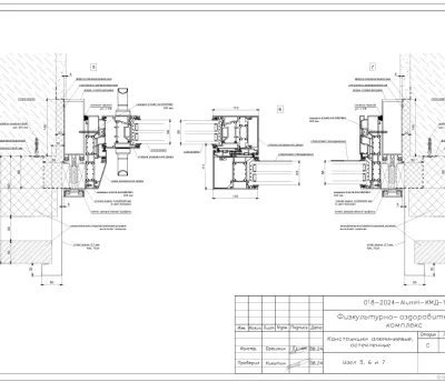
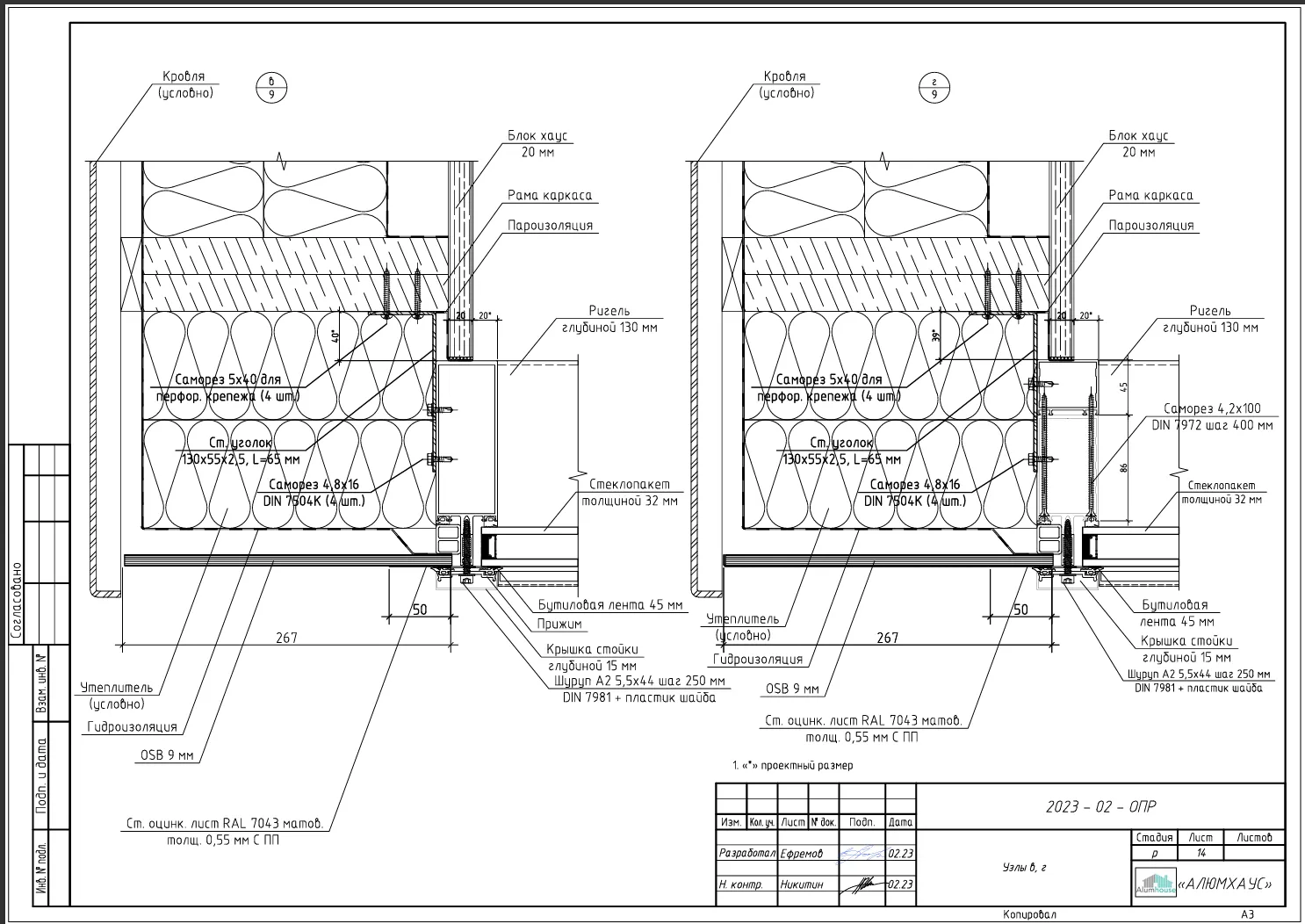
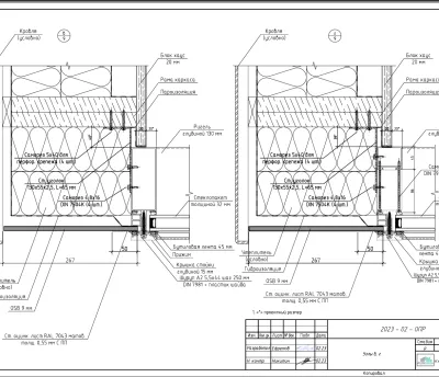
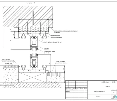
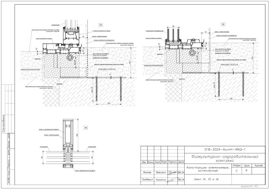
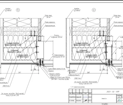
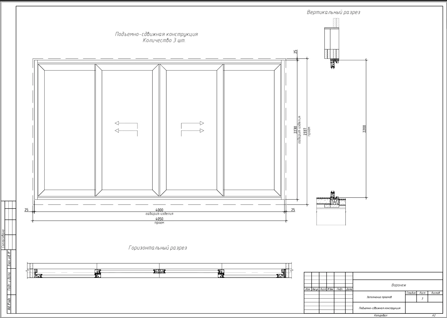
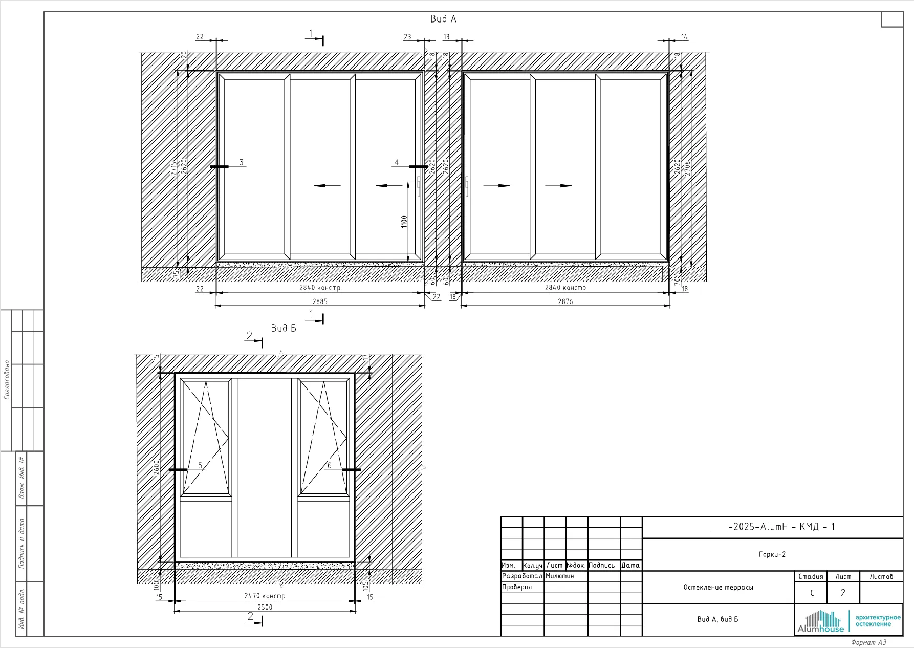
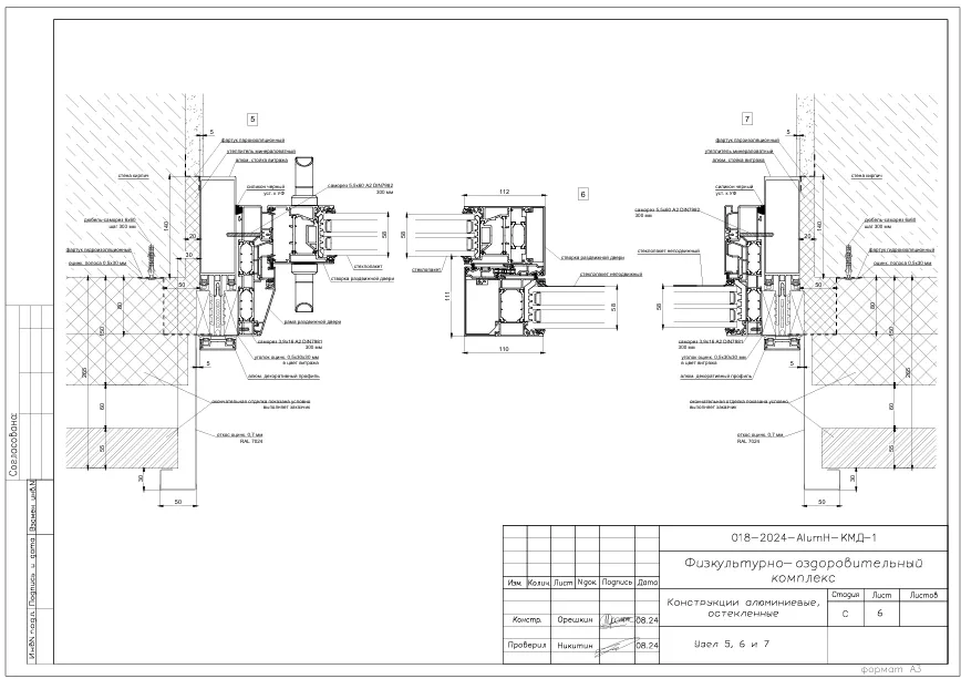
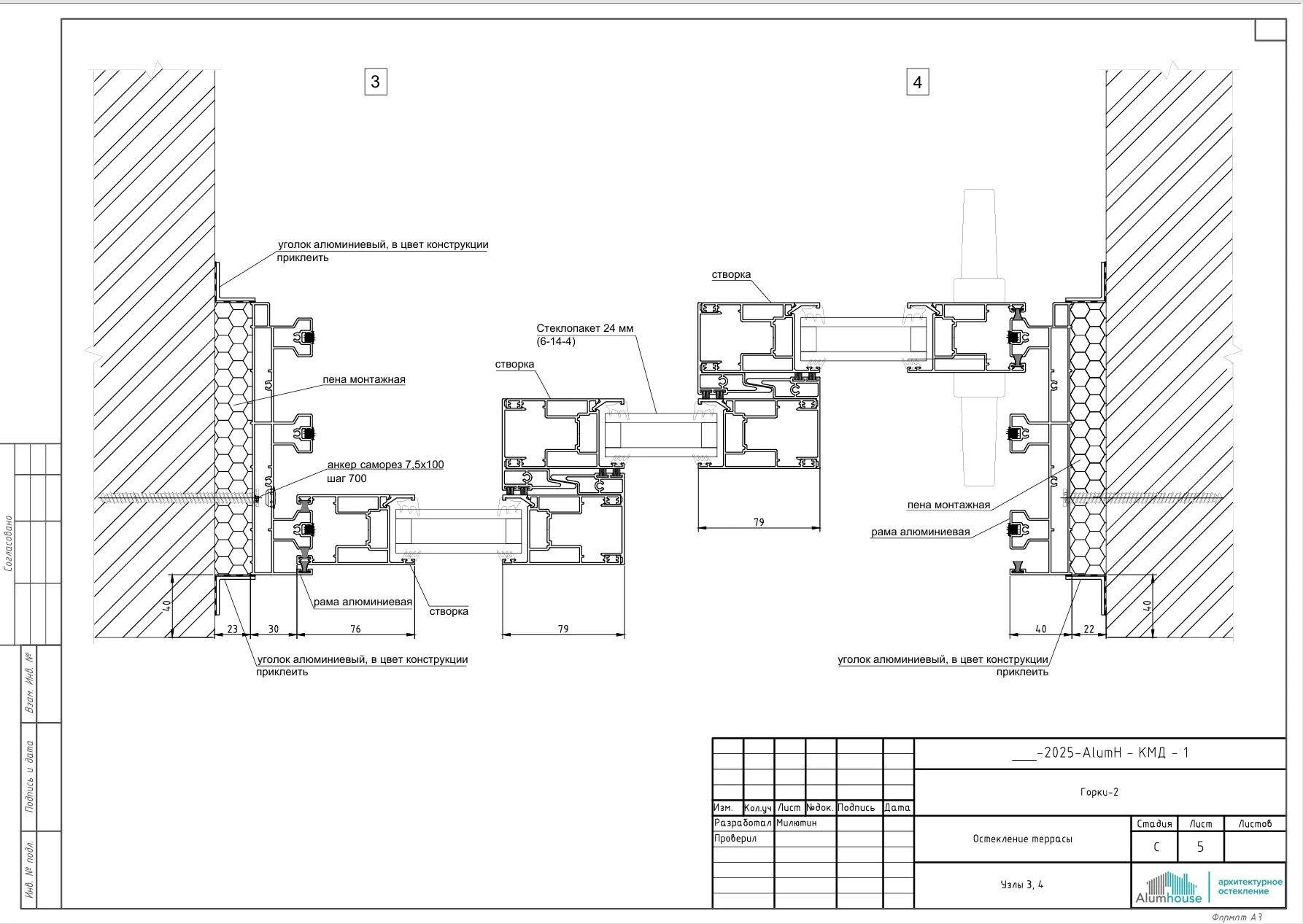
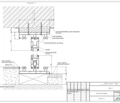
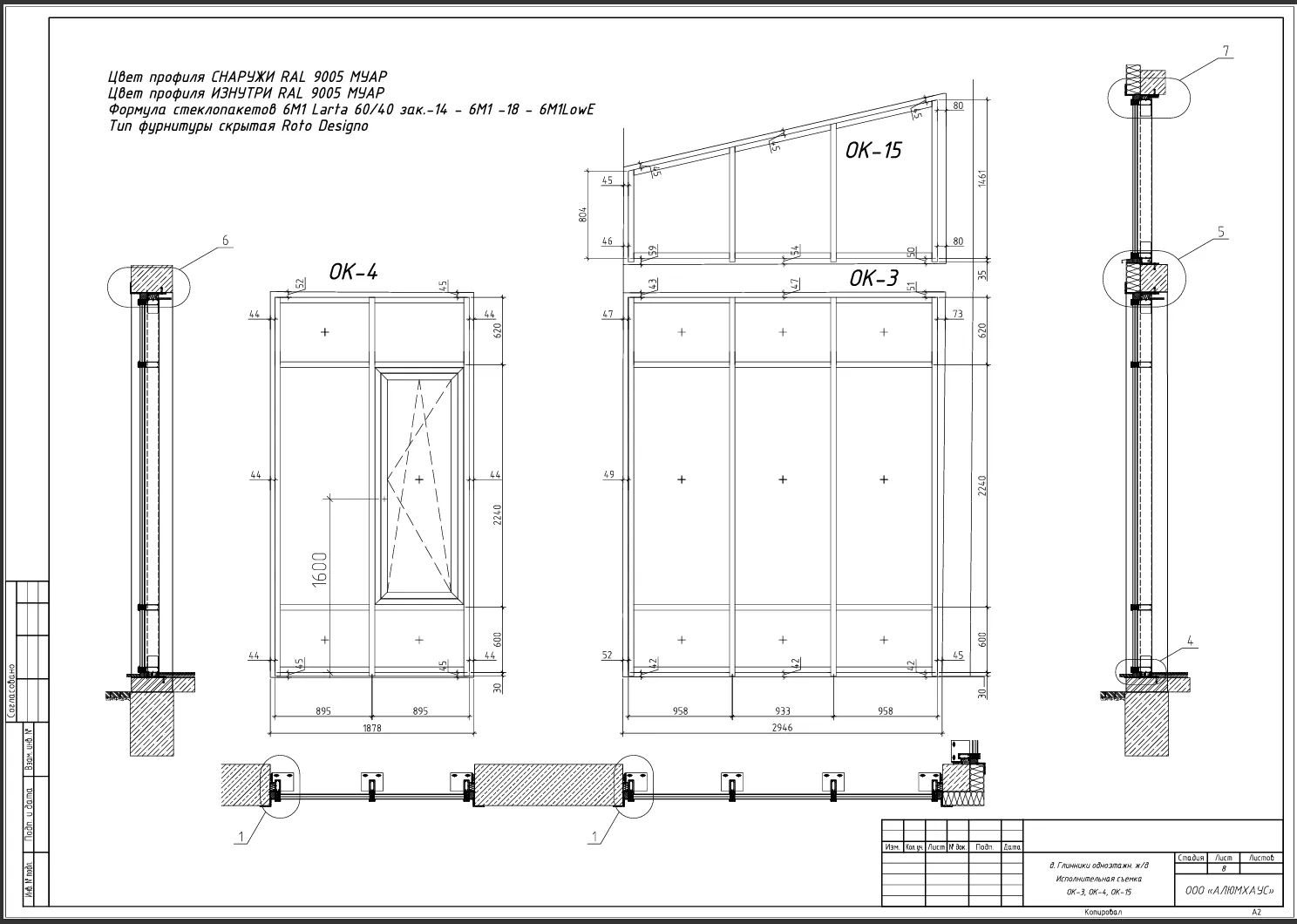
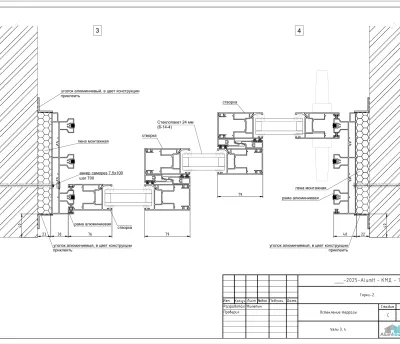
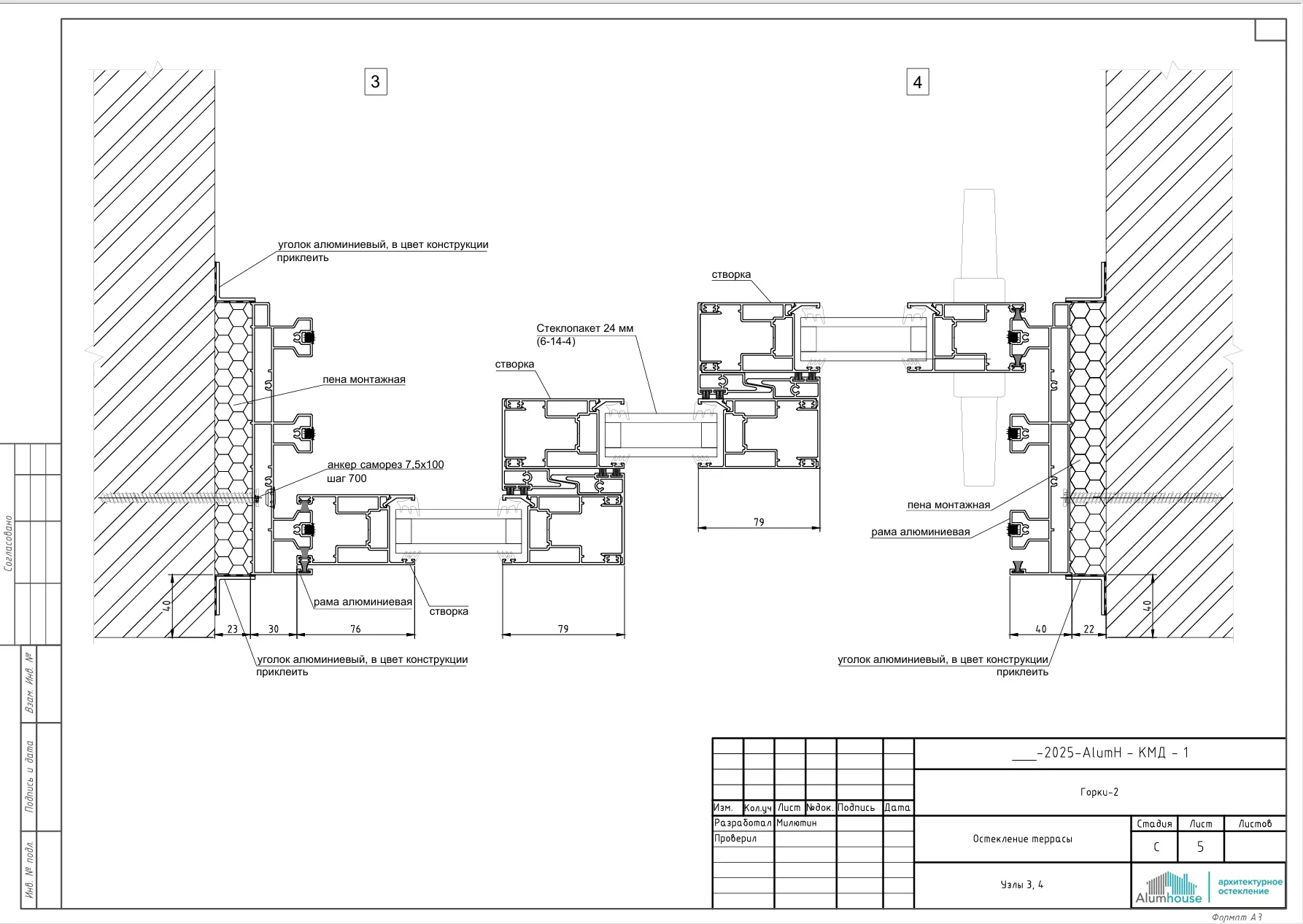
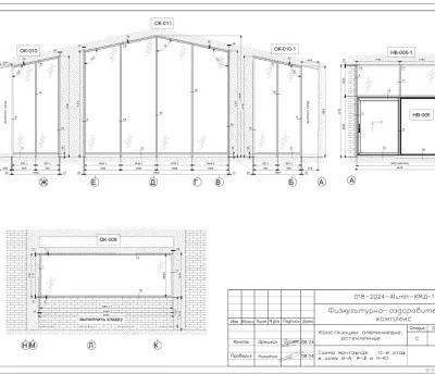
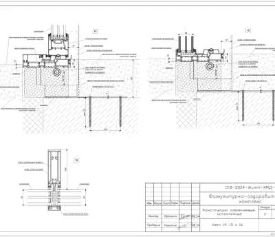
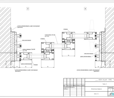
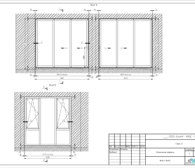
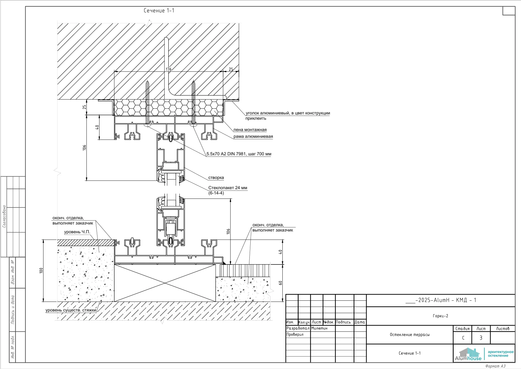
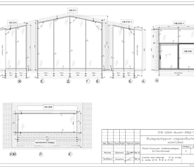
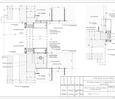
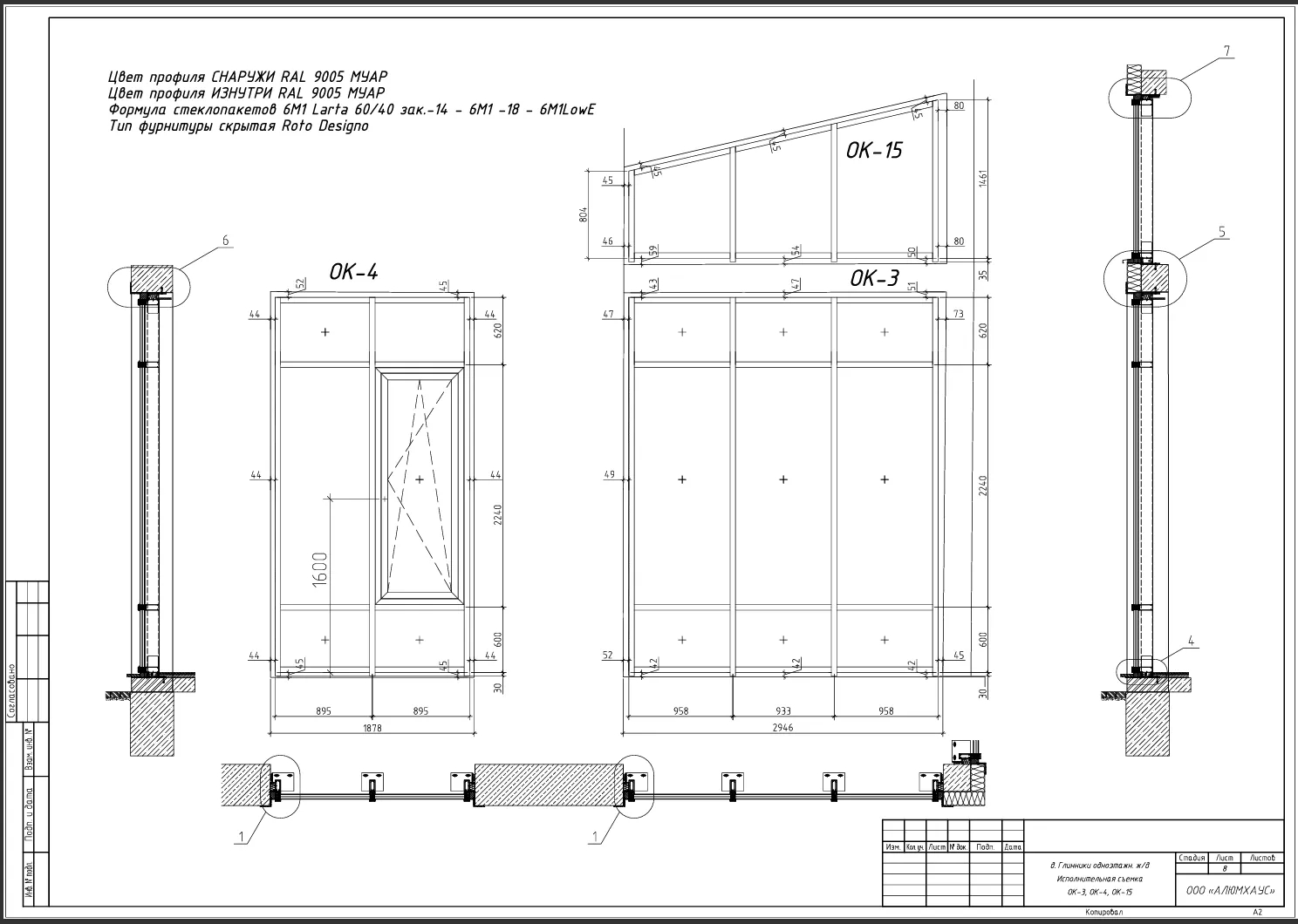
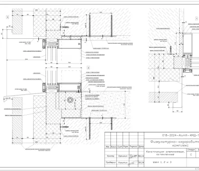
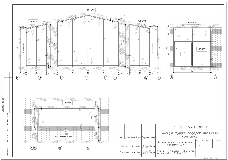
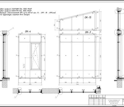
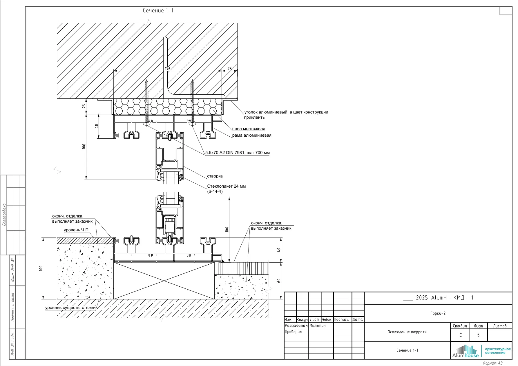
Каждый проект соответствует требованиям ГОСТов и СНиПов, а все расчеты светопрозрачных конструкций производятся на основе инженерных изысканий с учетом статических и динамических нагрузок. За счет такого комплексного подхода, алюминиевые и стеклянные конструкции, разработанные нашими профессиональными специалистами, отличаются повышенной надежностью и устойчивостью к внешним негативным воздействиям.

Этапы проектирования:

  • Создание и согласование концепции проекта с Заказчиком 
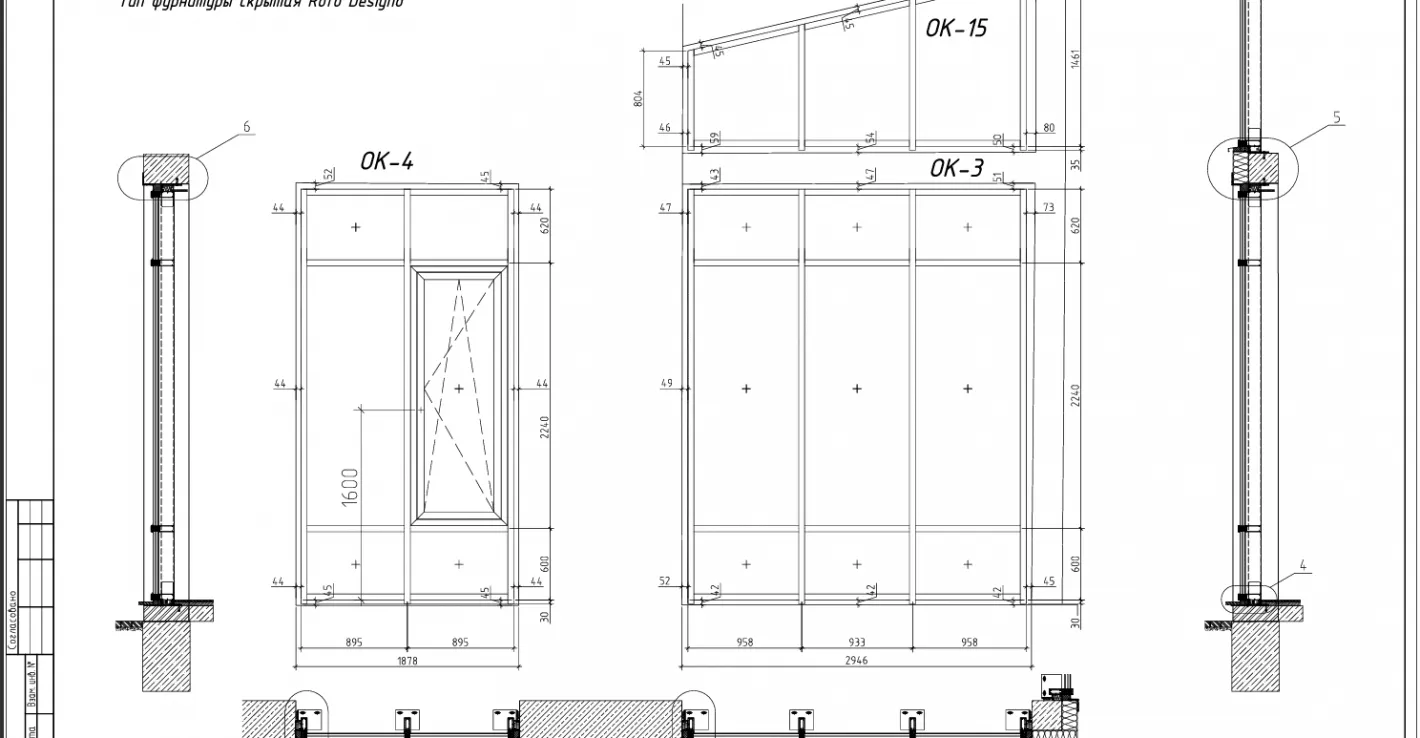
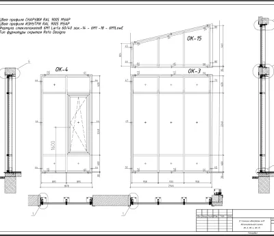
    На этом этапе наш конструкторский отдел в соответствии с требованиями Заказчика прорабатывает концептуальную схему будущего проекта и подготавливает возможные варианты конструкции с учетом комплектующих, размера и формы стеклопакетов, цветовых решений и др. По окончанию данного этапа Заказчик получает 3D-модель проектируемого изделия в нескольких вариантах, а также смету затрат на используемые материалы и услуги.
  • Разработка плана 
    После согласования и утверждения концепции Заказчиком, специалисты конструкторского отдела принимаются за разработку плана будущего проекта. Проводится геодезическая съемка, учитываются несущая способность будущего объекта и узлы примыканий к существующим конструкциям на участке, уточняется уровень естественного освещения помещений с учетом количества и размеров светопроемов.
  • Составление рабочей документации 
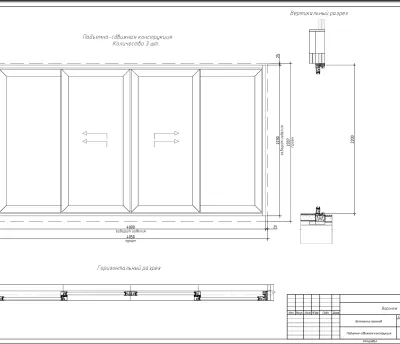
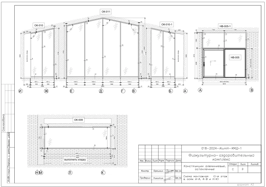
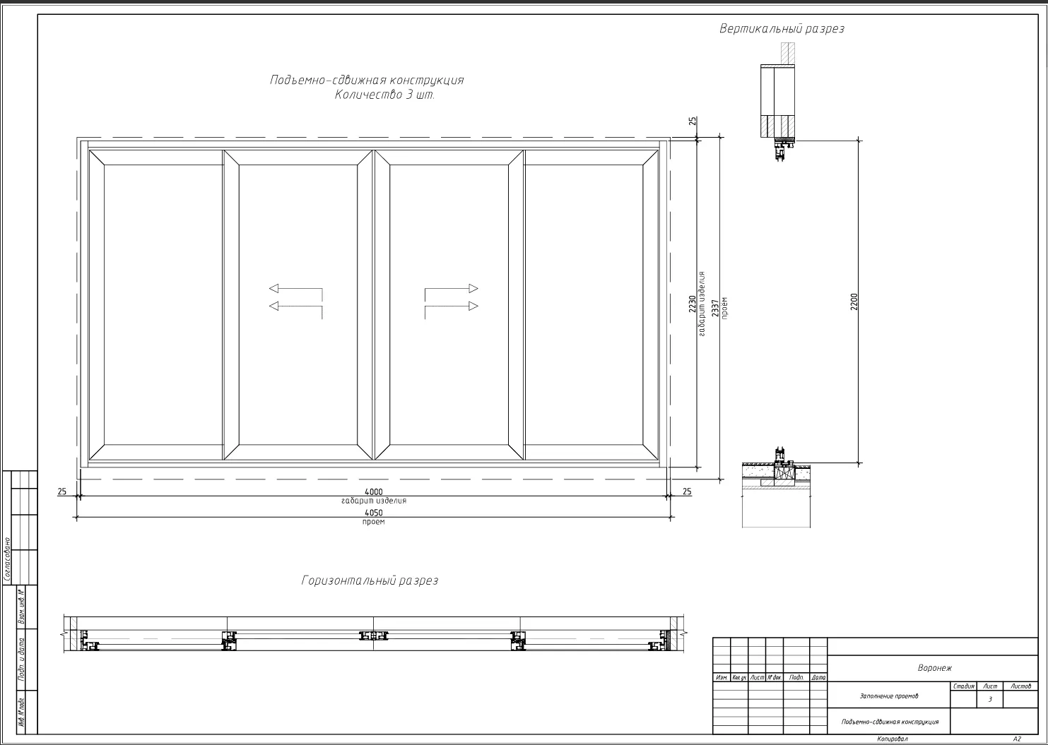
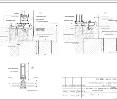
    На этой стадии осуществляется привязка всех рабочих чертежей проекта, а затем детальная проработка рабочей документации стадий КМ и КМД. На выходе этапа проектирования Заказчик получает полный набор расчетов и чертежей будущей конструкции.

От идеи до воплощения
этапы реализации

/01
Консультация специалиста
Консультант поможет Вам выбрать наиболе подходящий для Вас вариант.
/02
Проведение замеров
Замерщик приедет к Вам в удобное для вас время и снимет все необходимые размеры для производства.
/03
Производство
В производственной мастерской изготовят материалы точно по вашим размерам.
/04
Монтаж
Специалисты произведут монтаж в любой удобный для Вас день.
/05
Гарантия
Если вдруг обнаружится дефект, наши мастера оперативно устранят неисправность!

Нам доверяют

4.9 из 5
Рейтинг 4.9 из 5
Яндекс Карты
на основе 54 оценок
Оставить отзыв
Наталья Кудрявцева
Наталья Кудрявцева
Рейтинг
13 февраля 2026

Заказывали с мужем безрамное остекление к пристроенной к дому веранде. Выбирали долго, по качеству и цене. Особенностью было то, что у нас большая высота проема и в итоге нам предложили решение под наши размеры. В итоге мы остались довольны! Компания подошла с полной ответственностью и вниманию к мелочам. Спасибо менеджерам Екатерине и Оксане за профессиональный подход.

Отзыв Яндекс.Карты
Никита Попов
Никита Попов
Рейтинг
1 февраля 2026

В нашем жилище было выполнено остекление с применением алюминиевых конструкций. Это замечательный выбор для повышения уровня комфорта. Такие системы почти не нуждаются в обслуживании, защищают от холода и отличаются высокой прочностью.

Отзыв Яндекс.Карты
Денис Граф
Денис Граф
Рейтинг
15 января 2026

Сотрудничали с Alumhouse по проекту архитектурного остекления. Сильная команда: от проектирования до монтажа все шло по плану, вопросы решали быстро. Понравилось, что не боятся нестандартных решений и предлагают технически грамотные варианты.

Отзыв Яндекс.Карты
Денис Батищев
Денис Батищев
Рейтинг
31 декабря 2025

Хорошая компания. Рекомендую.

Отзыв Яндекс.Карты
Тарасов Дмитрий
Тарасов Дмитрий
Рейтинг
15 ноября 2025

Заказывали алюминиевое остекление коттеджа из профиля Alutech со стеклопакетами. Долго выбирали исполнителя, так как окна были большого размера с различным открыванием. В итоге Алюмхаус отлично справилось с задачей, остеклением мы остались довольны. Особенно благодарны менеджеру Пушкарь Оксане, за сопровождение нашего заказа.

Отзыв Яндекс.Карты
Елена Рыбак
Елена Рыбак
Рейтинг
05 ноября 2025

Все работы , начиная с разработки рабочей документации и заканчивая монтажом, компанией «Алюмхаус» были выполнены в срок и с высоким качеством. Отдельно хотелось бы отметить отличную работу менеджмента. Профессиональный подход к выполнению задач!

Отзыв Яндекс.Карты
Роман Андреевич
Роман Андреевич
Рейтинг
8 сентября 2025

Прекрасная организация! Хочу отдельно поблагодарить менеджера Екатерину. Она отлично объясняет, визуально демонстрирует и отвечает на все вопросы. Работать с таким профессионалом — настоящее удовольствие!

Отзыв Яндекс.Карты
Andreevich53
Andreevich53
Рейтинг
23 марта 2025

Прекрасная организация! Хочу отдельно поблагодарить менеджера Екатерину. Она отлично объясняет, визуально демонстрирует и отвечает на все вопросы. Работать с таким профессионалом — настоящее удовольствие!

Отзыв Яндекс.Карты
Михаил Кондрашев
Михаил Кондрашев
Рейтинг
2 января 2025

Заказывал раздвижные алюминиевые двери Shueco. Привезли и установили ровно в срок.

Отзыв Яндекс.Карты
Анна Кудря
Анна Кудря
Рейтинг
29 декабря 2024

Заказывали в Алюмхаус проект зимнего сада из алюминия и реализацию всего проекта под ключ. Компания взяла на себя все вопросы связанные с подьемом материалов на крышу, все аккуратно подняли и установили. Нам с мужем все очень понравилось. Конструкция получилась шикарная

Отзыв Яндекс.Карты
Кира Петренко
Кира Петренко
Рейтинг
6 февраля 2024

Установка алюминиевых окон превзошла все мои ожидания! Все работы были выполнены на высшем уровне. Ребята работали очень аккуратно и профессионально. Я была приятно удивлена их вниманием к деталям. Теперь моя квартира стала теплее и гораздо комфортнее.

Отзыв Яндекс.Карты
Сергей Кузнецов
Сергей Кузнецов
Рейтинг
29 января 2024

В Алюмхаус нам предложили лучшую цену на алюминиевые окна и двери .Подобрали интересную фурнитуру ,архитектурное стекло .Работа выполнена профессионально !Монтаж прошел качественно .Ставлю 5,жаль нельзя 5+ и советую всем ,как надежную компанию !

Отзыв Яндекс.Карты
Катя Садчикова
Катя Садчикова
Рейтинг
22 марта 2025

Дизайнеру интерьера очень важно сотрудничество с надежным производителем для быстрой и качественной реализации проекта. Компания на 100% оправдала ожидания мои и заказчика. В работе чувствовался профессиональный подход менеджера, а также терпеливое и мудрое отношение к капризам заказчика. Качество раздвижных дверей между балконом и гостиной, балконом и спальней по факту отличные, выполнены аккуратно и согласно техническому заданию. Все сроки были соблюдены как при изготовлении, так и при установке. Качество в полной мере соответствует цене.

Отзыв Яндекс.Карты

Отвечаем,
на ваши вопросы

Если вы не нашли ответа на свой вопрос, оставьте заявку и мы расскажем вам все, что вы хотите знать
Чем алюминиевое остекление отличается от пластикового?

Алюминиевые конструкции выигрывают по трем ключевым параметрам. Прочность — алюминий позволяет создавать панорамные окна высотой до 3–4 метров без перемычек, что невозможно с ПВХ. Долговечность — срок службы 50–80 лет, алюминий не желтеет, не деформируется и не требует покраски. Эстетика — тонкие рамы (в 2–3 раза уже пластиковых) дают максимум света и обзора. Пластик теплее в стандартном исполнении, но если вам нужно панорамное остекление или раздвижные системы на террасу — алюминий вне конкуренции

Что такое «теплый» и «холодный» алюминий и как выбрать остекление?

Главное отличие — наличие терморазрыва. В теплом профиле есть полиамидная вставка, которая разрывает мостик холода и не дает теплу уходить наружу. Холодный алюминий подходит для неотапливаемых террас, веранд, беседок, балконов. Он защищает от ветра и осадков, но зимой температуру не сохранит. Теплый алюминий можно использовать для жилых комнат и круглогодичного проживания — по теплоизоляции он не уступает ПВХ, но при этом сохраняет все преимущества алюминия: прочность, долговечность и тонкие рамы

Не будут ли алюминиевое остекление холодными зимой?

Это зависит от того, какой профиль вы выберете. Если поставить холодный алюминий в жилую комнату — да, будет холодно, и появится конденсат. Это главная ошибка при экономии. Если выбрать теплый алюминий с терморазрывом и энергосберегающим стеклопакетом (i-стекло), то проблем не будет. Коэффициент теплопередачи таких систем достигает 1,0–1,3 Вт/м²·К, что соответствует нормам для жилых помещений. Также важен правильный монтаж по технологии «теплый периметр», который исключает мостики холода

Сколько стоит остекление из алюминиевого профиля «под ключ» в Москве?

Стоимость рассчитывается индивидуально и зависит от трех факторов. Тип системы — холодный алюминий от 14 000–24 000 руб/м², теплый с терморазрывом от 24 000 до 65 000 руб/м² в зависимости от системы остекления. Стеклопакет — однокамерный дешевле, двухкамерный с энергосберегающим i-стеклом дороже, но окупается экономией на отоплении. Сложность конструкции — раздвижные портальные системы, панорамное остекление, нестандартные формы увеличивают стоимость. Точную смету мы составляем после бесплатного выезда инженера на замер, с детализацией по каждому элементу

Можно ли устанавливать алюминиевые конструкции и остекление зимой?

Да, монтаж возможен в зимний период при температуре до –15°C. Используется зимняя монтажная пена, которая сохраняет эластичность на холоде и не трескается при замерзании. Проемы должны быть очищены от снега и наледи, при необходимости помещение прогревается тепловыми пушками. Зимний монтаж имеет дополнительное преимущество: вы сразу видите герметичность конструкции в реальных условиях низких температур и можете оценить отсутствие продувания. Также многие компании (включая нас) предоставляют скидки в низкий сезон — до 15–20%

Сколько служат алюминиевые конструкции и остекление?

Срок службы алюминиевых профилей и остекления — 50–80 лет. Алюминий не ржавеет, не желтеет, не деформируется от перепадов температур (выдерживает от –80°C до +100°C). Порошково-полимерное покрытие сохраняет цвет десятилетиями без обновления и не выгорает на солнце. Это в 5–7 раз дольше, чем у дерева (требует покраски каждые 5–7 лет), и в 2–3 раза дольше, чем у качественного ПВХ. По сути, вы устанавливаете конструкцию один раз и забываете о ней на десятилетия

Какая гарантия на алюминиевое остекление и монтаж?

Мы предоставляем раздельную гарантию. На алюминиевое остекление профиль и стеклопакеты — от 3 до 10 лет (заводская гарантия производителя). На монтажные работы — от 3 до 5 лет. Гарантия фиксируется в договоре и покрывает герметичность швов, сохранение геометрии конструкции, корректную работу фурнитуры и отсутствие продувания. При наступлении гарантийного случая мы выезжаем на объект и устраняем недостатки за свой счет. Важно: гарантия на монтаж важнее гарантии на профиль — даже лучшая система будет промерзать при некачественной установке

Как заказать и купить качественное остекление из алюминиевого профиля под ключ в Москве и Московской области?

Оставьте заявку на сайте компании ООО "Алюмхаус" или позвоните по телефону +74956658299 или напишите на почту alumhouse@mail.ru. Бесплатный выезд замерщика по Москве и всей области. Мы составим смету, произведём конструкции по договору и установим качественное остекление под ключ. Гарантия на работу 5 лет.