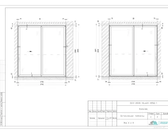
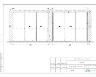
Подъемно-раздвижные двери на веранду с тремя створками Alumil S700

Срок
35 рабочих дней
Год реализации
2024
Адрес объекта
Новорижское шоссе, 24 км от МКАД
Линии

Описание проекта

Система Alumil S700 с тремя створками на веранде обеспечивает подъемно-раздвижной механизм, где панели поднимаются и скользят по направляющим, минимизируя сопротивление и усилие открытия. Низкий порог высотой 24 мм гарантирует легкий доступ без ступеньки, идеально для веранд с частым использованием. Широкие стеклянные поверхности до 3 м высотой усиливают естественное освещение и панорамный обзор. Теплоизоляция Uw=1,1 Вт/м²K сохраняет комфорт в любое время года.

Преимущества включают исключительную энергоэффективность с полиамидными терморазрывами и вспененным утеплителем, устойчивость к ветру класс C4 и водонепроницаемость E900. Звукоизоляция до 41 дБ и защита от взлома RC2 повышают безопасность и тишину на веранде. Минималистичный дизайн с профилем-крюком 47 мм создает эффект "прозрачной" архитектуры без массивных элементов. Система выдерживает створки до 600 кг, подходя для больших проемов.

Подъемно-раздвижные двери Alumil S700 оптимизируют пространство веранды, открывая до нескольких метров ширины без видимых преград. Автоматическое управление опционально упрощает эксплуатацию даже для створок 3x4 м. Скрытая дренажная система работает в экстремальных погодных условиях, продлевая срок службы. Решение идеально сочетает функциональность, эстетику и долговечность для современных веранд.

От идеи до воплощения
этапы реализации

/01
Консультация специалиста
Консультант поможет Вам выбрать наиболе подходящий для Вас вариант.
/02
Проведение замеров
Замерщик приедет к Вам в удобное для вас время и снимет все необходимые размеры для производства.
/03
Производство
В производственной мастерской изготовят материалы точно по вашим размерам.
/04
Монтаж
Специалисты произведут монтаж в любой удобный для Вас день.
/05
Гарантия
Если вдруг обнаружится дефект, наши мастера оперативно устранят неисправность!

Посмотрите другие проекты

Остекление беседки тёплыми раздвижными дверями позволило создать круглогодичное, светлое и защищённое пространство для отдыха и встреч на свежем воздухе.
Срок
35 рабочих дней
Комплексное остекление коттеджа с установкой алюминиевых окон, раздвижных систем, стеклянного ограждения и безрамного остекления.
Адрес объекта
Москва, Поселение Марушкинское
Срок
48 рабочих дней
Площадь
97 м2
Стеклянная тамбурная пристройка к дому представляет собой интересную дизайнерскую задачу, поскольку она представляет собой гораздо более высокий уровень сложности, чем обычные оконные конструкции.
Срок
30 рабочих дней
Фасадное остекление позволяет не только создавать более легкие, прочные и эффективные проекты торговых центров, но и разрабатывать новые способы работы и продукты для решения любых задач.
Срок
55 рабочих дней

Отвечаем,
на ваши вопросы

Если вы не нашли ответа на свой вопрос, оставьте заявку и мы расскажем вам все, что вы хотите знать
Чем алюминиевое остекление отличается от пластикового?

Алюминиевые конструкции выигрывают по трем ключевым параметрам. Прочность — алюминий позволяет создавать панорамные окна высотой до 3–4 метров без перемычек, что невозможно с ПВХ. Долговечность — срок службы 50–80 лет, алюминий не желтеет, не деформируется и не требует покраски. Эстетика — тонкие рамы (в 2–3 раза уже пластиковых) дают максимум света и обзора. Пластик теплее в стандартном исполнении, но если вам нужно панорамное остекление или раздвижные системы на террасу — алюминий вне конкуренции

Что такое «теплый» и «холодный» алюминий и как выбрать?

Главное отличие — наличие терморазрыва. В теплом профиле есть полиамидная вставка, которая разрывает мостик холода и не дает теплу уходить наружу. Холодный алюминий подходит для неотапливаемых террас, веранд, беседок, балконов. Он защищает от ветра и осадков, но зимой температуру не сохранит. Теплый алюминий можно использовать для жилых комнат и круглогодичного проживания — по теплоизоляции он не уступает ПВХ, но при этом сохраняет все преимущества алюминия: прочность, долговечность и тонкие рамы

Не будут ли алюминиевые окна холодными зимой?

Это зависит от того, какой профиль вы выберете. Если поставить холодный алюминий в жилую комнату — да, будет холодно, и появится конденсат. Это главная ошибка при экономии. Если выбрать теплый алюминий с терморазрывом и энергосберегающим стеклопакетом (i-стекло), то проблем не будет. Коэффициент теплопередачи таких систем достигает 1,0–1,3 Вт/м²·К, что соответствует нормам для жилых помещений. Также важен правильный монтаж по технологии «теплый периметр», который исключает мостики холода

Сколько стоит алюминиевое остекление под ключ?

Стоимость рассчитывается индивидуально и зависит от трех факторов. Тип системы — холодный алюминий от 14 000–24 000 руб/м², теплый с терморазрывом от 24 000 до 65 000 руб/м² в зависимости от системы остекления. Стеклопакет — однокамерный дешевле, двухкамерный с энергосберегающим i-стеклом дороже, но окупается экономией на отоплении. Сложность конструкции — раздвижные портальные системы, панорамное остекление, нестандартные формы увеличивают стоимость. Точную смету мы составляем после бесплатного выезда инженера на замер, с детализацией по каждому элементу

Можно ли устанавливать алюминиевые конструкции зимой?

Да, монтаж возможен в зимний период при температуре до –15°C. Используется зимняя монтажная пена, которая сохраняет эластичность на холоде и не трескается при замерзании. Проемы должны быть очищены от снега и наледи, при необходимости помещение прогревается тепловыми пушками. Зимний монтаж имеет дополнительное преимущество: вы сразу видите герметичность конструкции в реальных условиях низких температур и можете оценить отсутствие продувания. Также многие компании (включая нас) предоставляют скидки в низкий сезон — до 15–20%

Сколько служат алюминиевые конструкции?

Срок службы алюминиевых профилей — 50–80 лет. Алюминий не ржавеет, не желтеет, не деформируется от перепадов температур (выдерживает от –80°C до +100°C). Порошково-полимерное покрытие сохраняет цвет десятилетиями без обновления и не выгорает на солнце. Это в 5–7 раз дольше, чем у дерева (требует покраски каждые 5–7 лет), и в 2–3 раза дольше, чем у качественного ПВХ. По сути, вы устанавливаете конструкцию один раз и забываете о ней на десятилетия

Какая гарантия на алюминиевые конструкции и монтаж?

Мы предоставляем раздельную гарантию. На алюминиевый профиль и стеклопакеты — от 3 до 10 лет (заводская гарантия производителя). На монтажные работы — от 3 до 5 лет. Гарантия фиксируется в договоре и покрывает герметичность швов, сохранение геометрии конструкции, корректную работу фурнитуры и отсутствие продувания. При наступлении гарантийного случая мы выезжаем на объект и устраняем недостатки за свой счет. Важно: гарантия на монтаж важнее гарантии на профиль — даже лучшая система будет промерзать при некачественной установке