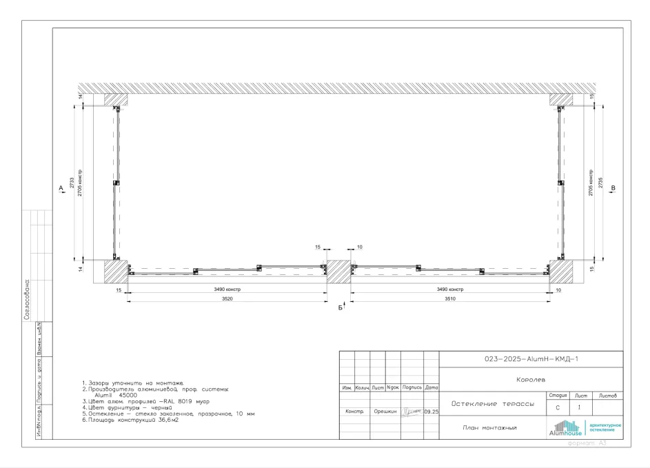
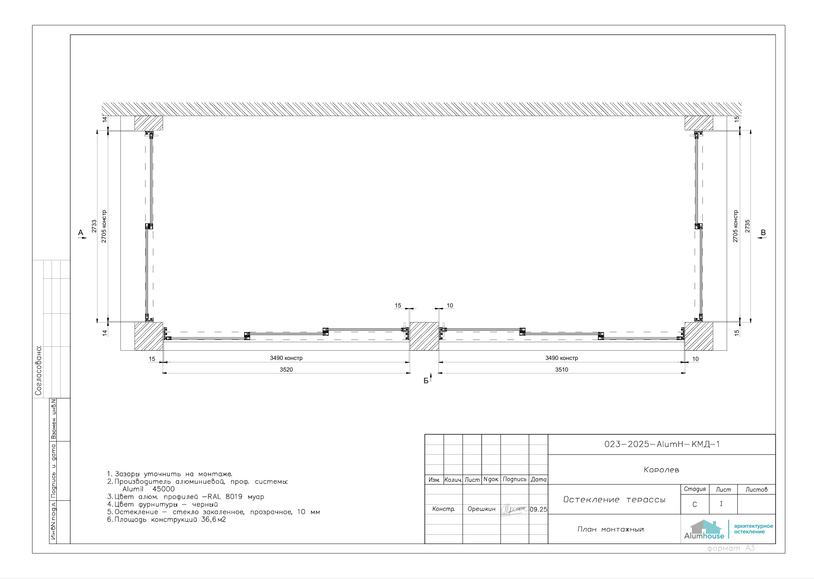
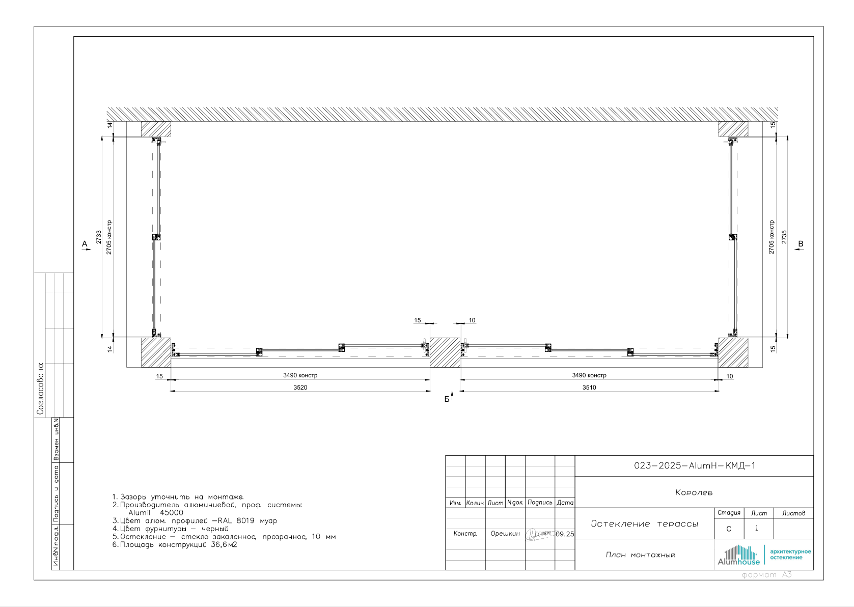
Остекление веранды раздвижными панорамными дверьми от пола до потолка

Срок
30 рабочих дней
Площадь
36,76 м2
Год реализации
2025
Адрес объекта
г. Королёв
Линии

Описание проекта

Процесс изготовления проекта начался с консультации для подбора оптимальной панорамной системы раздвижных дверей от пола до потолка. Затем выполнены точные замеры веранды площадью 36,76 м², после чего изготовлены крупноформатные стеклянные панели в производственной мастерской по индивидуальным размерам. Монтаж конструкции выполнен на объекте за часть из 30 рабочих дней с использованием усиленных алюминиевых профилей и роликовых кареток. Завершено предоставлением гарантии на герметичность, плавность хода и долговечность механизма.

Панорамные раздвижные двери обеспечивают максимальное заполнение проема без вертикальных стоек, создавая эффект полной прозрачности и единства пространства веранды с окружающей средой. В закрытом положении конструкция надежно защищает от осадков, ветра и пыли благодаря закаленным стеклам двойного остекления и уплотнителям. Раздвижной механизм позволяет открыть до 90% проема, обеспечивая превосходную вентиляцию и естественное освещение в летний период. Низкопороговые направляющие обеспечивают беспрепятственный доступ и безопасность для всех жильцов.

Преимущества реализации включают визуальное расширение интерьера веранды, повышение энергоэффективности за счет теплосберегающих стекол и современный минималистичный дизайн. Система выдерживает ветровые нагрузки до 120 км/ч и обеспечивает звукоизоляцию до 35 дБ в закрытом положении. Конструкция интегрируется с любыми архитектурными стилями, от классики до хай-тека, и не требует сложного обслуживания. Решение идеально для круглогодичного использования веранды, трансформируя ее из сезонной в многофункциональное жилое пространство.

От идеи до воплощения
этапы реализации

/01
Консультация специалиста
Консультант поможет Вам выбрать наиболе подходящий для Вас вариант.
/02
Проведение замеров
Замерщик приедет к Вам в удобное для вас время и снимет все необходимые размеры для производства.
/03
Производство
В производственной мастерской изготовят материалы точно по вашим размерам.
/04
Монтаж
Специалисты произведут монтаж в любой удобный для Вас день.
/05
Гарантия
Если вдруг обнаружится дефект, наши мастера оперативно устранят неисправность!

Посмотрите другие проекты

Наши стеклянные кровельные системы являются практичным и визуально элегантным дополнением к дому или коммерческой недвижимости.
Срок
48 рабочих дней
Проект воплощает L-образную раздвижную стеклянную конструкцию для веранды, полностью открывающую угловой проем.
Адрес объекта
КП Солнечный город-1, деревня Лужки, Краснопахорский район
Срок
20 рабочих дней
Остекление навеса по готовому каркасу выполнено закалённым триплексом с аккуратными прижимными профилями, обеспечивая лёгкий вид, защиту от непогоды и долговечность.
Адрес объекта
КП Николино, Одинцовский р-н.
Срок
28 рабочих дней
Площадь
75 м2
Остекление современного загородного дома это то, что придает вашему дому естественный свет и играет ключевую роль в его внешнем виде.
Адрес объекта
рабочий посёлок Заокский, Тульская область
Срок
35 рабочих дней
Площадь
120 м2

Отвечаем,
на ваши вопросы

Если вы не нашли ответа на свой вопрос, оставьте заявку и мы расскажем вам все, что вы хотите знать
Чем алюминиевое остекление отличается от пластикового?

Алюминиевые конструкции выигрывают по трем ключевым параметрам. Прочность — алюминий позволяет создавать панорамные окна высотой до 3–4 метров без перемычек, что невозможно с ПВХ. Долговечность — срок службы 50–80 лет, алюминий не желтеет, не деформируется и не требует покраски. Эстетика — тонкие рамы (в 2–3 раза уже пластиковых) дают максимум света и обзора. Пластик теплее в стандартном исполнении, но если вам нужно панорамное остекление или раздвижные системы на террасу — алюминий вне конкуренции

Что такое «теплый» и «холодный» алюминий и как выбрать остекление?

Главное отличие — наличие терморазрыва. В теплом профиле есть полиамидная вставка, которая разрывает мостик холода и не дает теплу уходить наружу. Холодный алюминий подходит для неотапливаемых террас, веранд, беседок, балконов. Он защищает от ветра и осадков, но зимой температуру не сохранит. Теплый алюминий можно использовать для жилых комнат и круглогодичного проживания — по теплоизоляции он не уступает ПВХ, но при этом сохраняет все преимущества алюминия: прочность, долговечность и тонкие рамы

Не будут ли алюминиевое остекление холодными зимой?

Это зависит от того, какой профиль вы выберете. Если поставить холодный алюминий в жилую комнату — да, будет холодно, и появится конденсат. Это главная ошибка при экономии. Если выбрать теплый алюминий с терморазрывом и энергосберегающим стеклопакетом (i-стекло), то проблем не будет. Коэффициент теплопередачи таких систем достигает 1,0–1,3 Вт/м²·К, что соответствует нормам для жилых помещений. Также важен правильный монтаж по технологии «теплый периметр», который исключает мостики холода

Сколько стоит остекление из алюминиевого профиля «под ключ» в Москве?

Стоимость рассчитывается индивидуально и зависит от трех факторов. Тип системы — холодный алюминий от 14 000–24 000 руб/м², теплый с терморазрывом от 24 000 до 65 000 руб/м² в зависимости от системы остекления. Стеклопакет — однокамерный дешевле, двухкамерный с энергосберегающим i-стеклом дороже, но окупается экономией на отоплении. Сложность конструкции — раздвижные портальные системы, панорамное остекление, нестандартные формы увеличивают стоимость. Точную смету мы составляем после бесплатного выезда инженера на замер, с детализацией по каждому элементу

Можно ли устанавливать алюминиевые конструкции и остекление зимой?

Да, монтаж возможен в зимний период при температуре до –15°C. Используется зимняя монтажная пена, которая сохраняет эластичность на холоде и не трескается при замерзании. Проемы должны быть очищены от снега и наледи, при необходимости помещение прогревается тепловыми пушками. Зимний монтаж имеет дополнительное преимущество: вы сразу видите герметичность конструкции в реальных условиях низких температур и можете оценить отсутствие продувания. Также многие компании (включая нас) предоставляют скидки в низкий сезон — до 15–20%

Сколько служат алюминиевые конструкции и остекление?

Срок службы алюминиевых профилей и остекления — 50–80 лет. Алюминий не ржавеет, не желтеет, не деформируется от перепадов температур (выдерживает от –80°C до +100°C). Порошково-полимерное покрытие сохраняет цвет десятилетиями без обновления и не выгорает на солнце. Это в 5–7 раз дольше, чем у дерева (требует покраски каждые 5–7 лет), и в 2–3 раза дольше, чем у качественного ПВХ. По сути, вы устанавливаете конструкцию один раз и забываете о ней на десятилетия

Какая гарантия на алюминиевое остекление и монтаж?

Мы предоставляем раздельную гарантию. На алюминиевое остекление профиль и стеклопакеты — от 3 до 10 лет (заводская гарантия производителя). На монтажные работы — от 3 до 5 лет. Гарантия фиксируется в договоре и покрывает герметичность швов, сохранение геометрии конструкции, корректную работу фурнитуры и отсутствие продувания. При наступлении гарантийного случая мы выезжаем на объект и устраняем недостатки за свой счет. Важно: гарантия на монтаж важнее гарантии на профиль — даже лучшая система будет промерзать при некачественной установке

Как заказать и купить качественное остекление из алюминиевого профиля под ключ в Москве и Московской области?

Оставьте заявку на сайте компании ООО "Алюмхаус" или позвоните по телефону +74956658299 или напишите на почту alumhouse@mail.ru. Бесплатный выезд замерщика по Москве и всей области. Мы составим смету, произведём конструкции по договору и установим качественное остекление под ключ. Гарантия на работу 5 лет.