Проектирование зимнего сада из алюминиевого профиля Vidnal F50

Линии

Описание проекта

Проект зимнего сада из алюминиевого профиля Vidnal F50 - это комплект инженерной документации для создания светопрозрачной отапливаемой конструкции, интегрированной с фасадом и ландшафтом участка. В проекте определяются габариты, конфигурация остекления и несущая схема стоек и ригелей с учётом теплотехники и нагрузок. Цель - обеспечить прочность, энергоэффективность и устойчивость к климатическим воздействиям при сохранении лёгкой архитектурной выразительности.

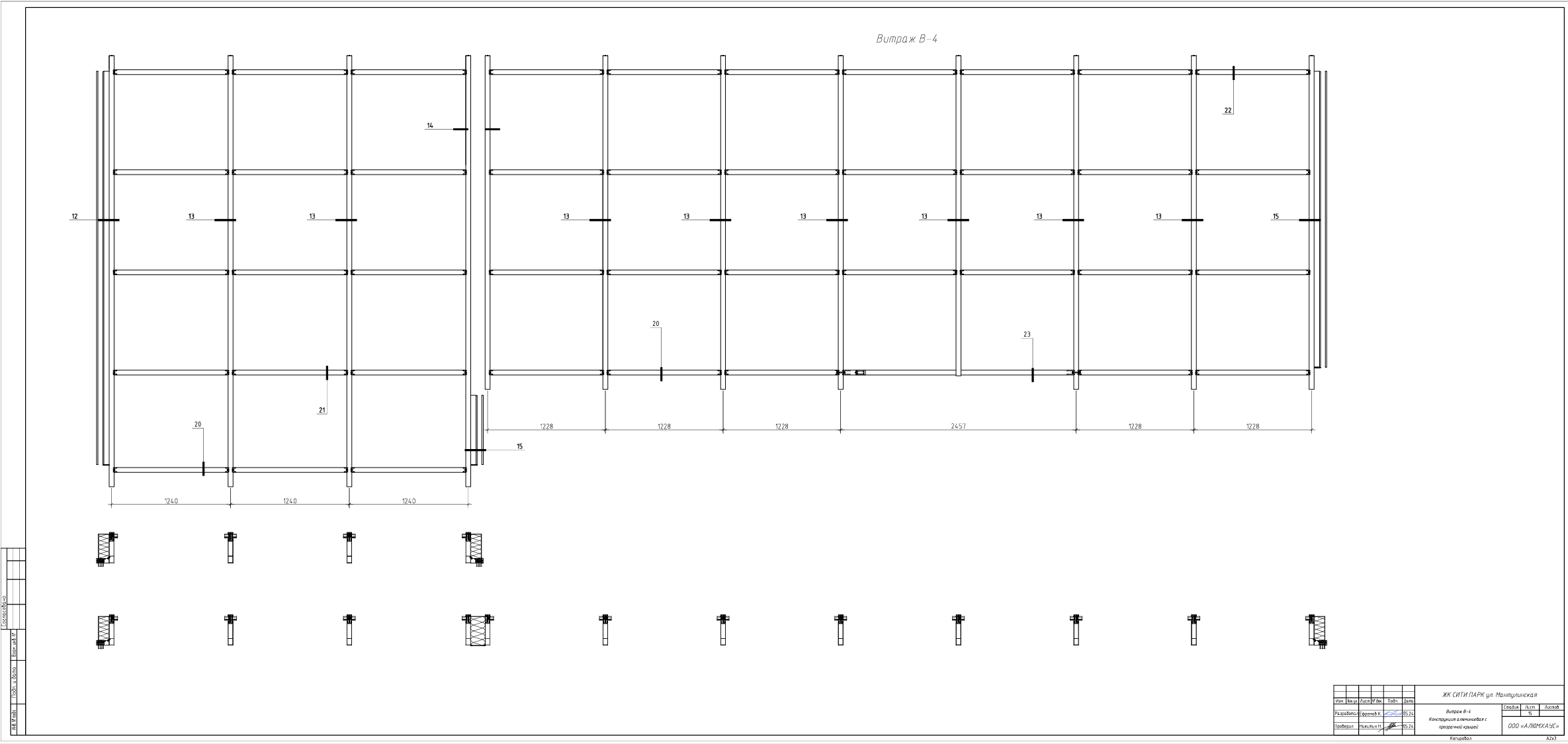
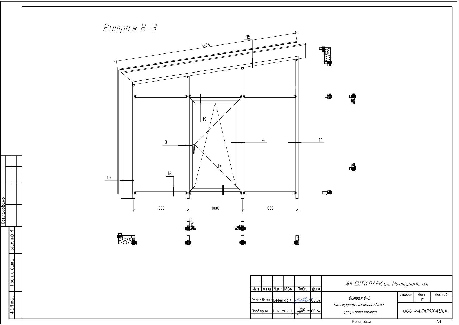
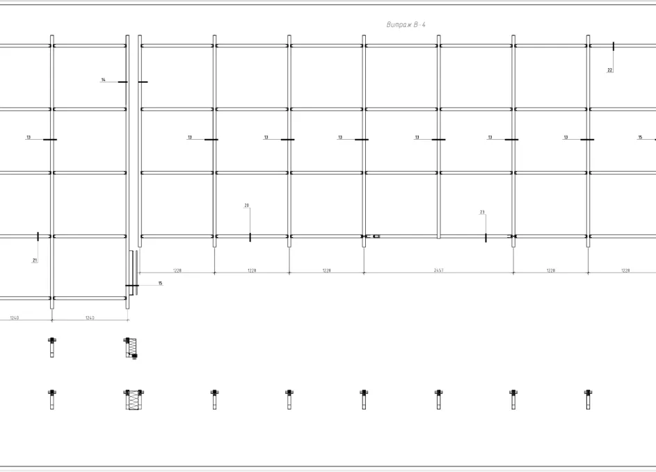
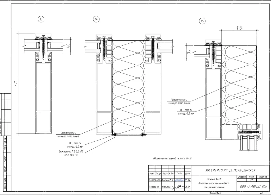
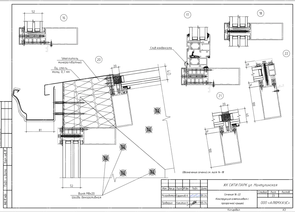
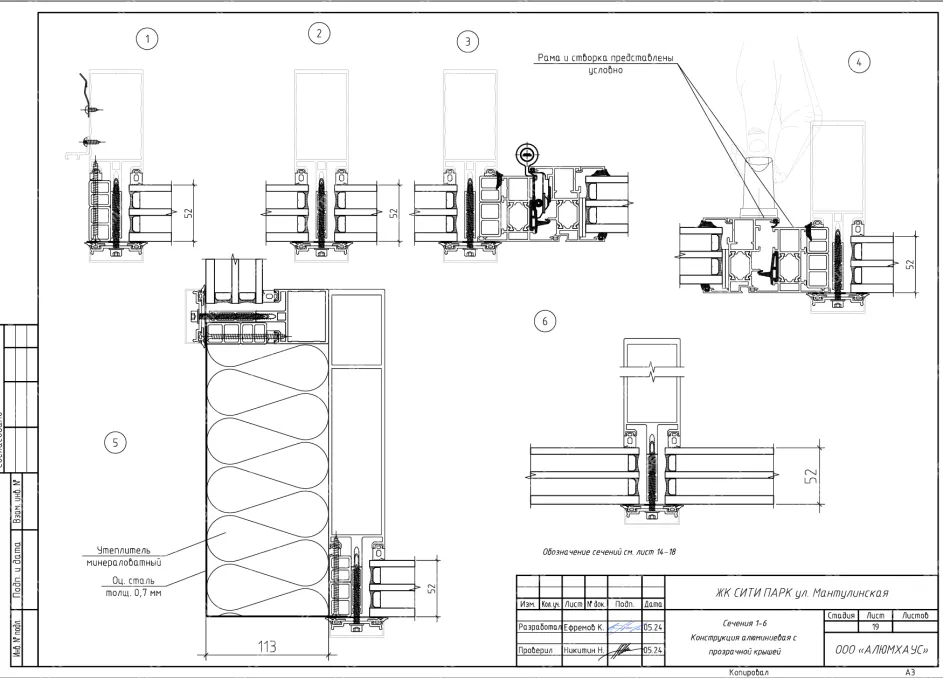
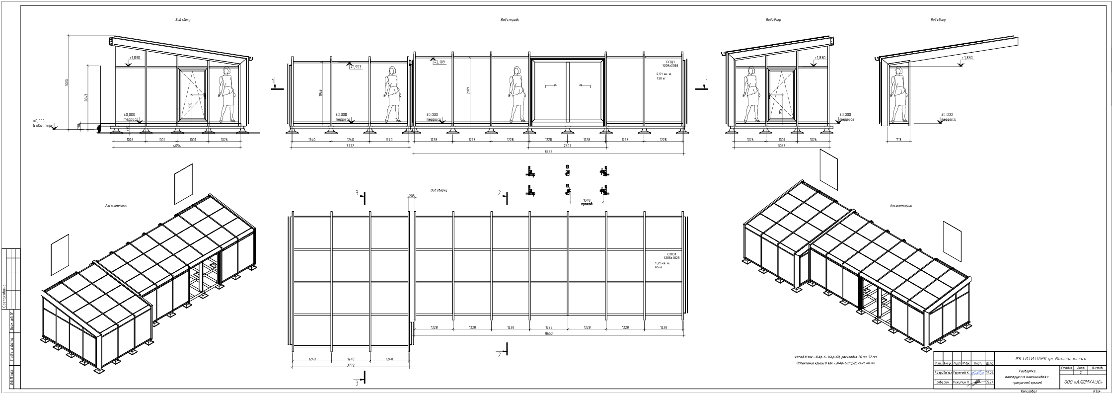
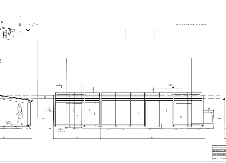
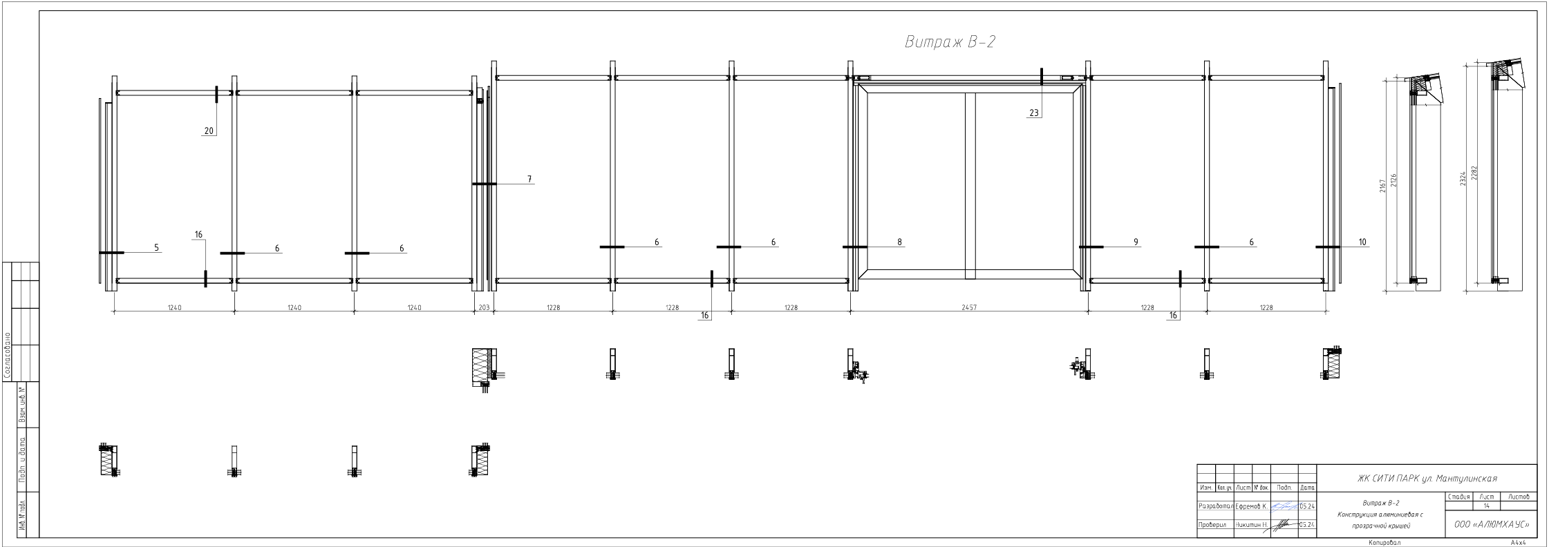
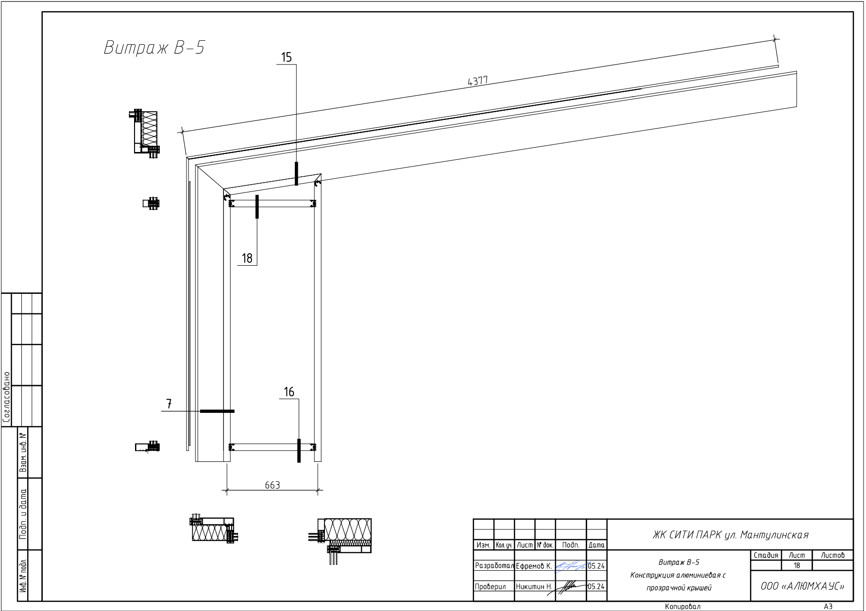
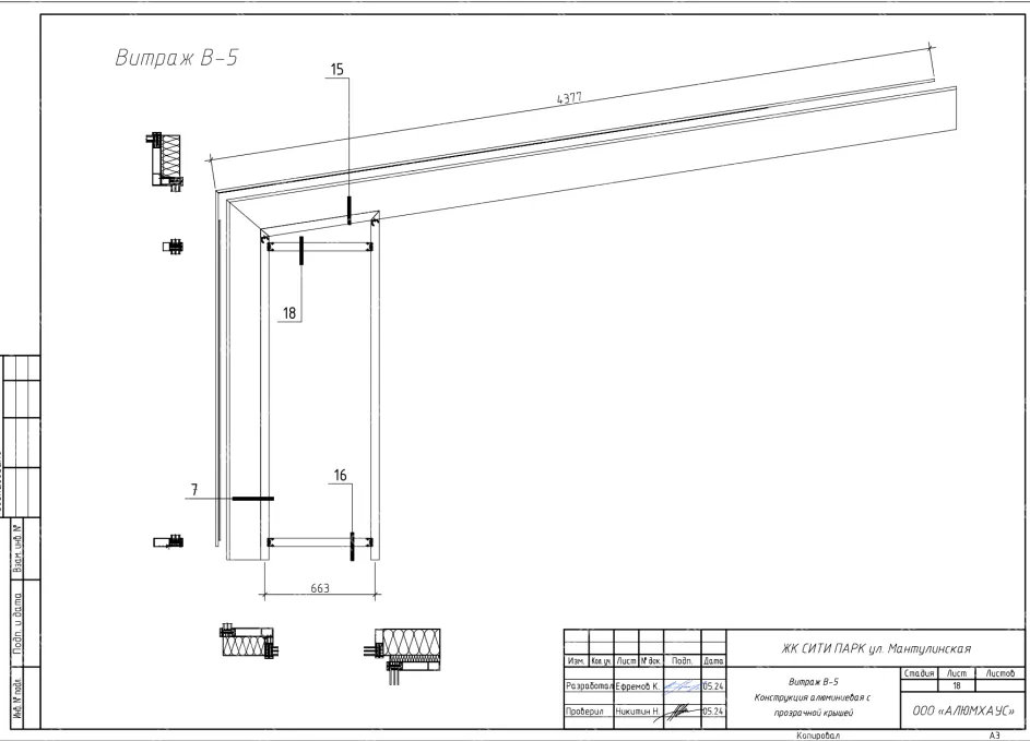
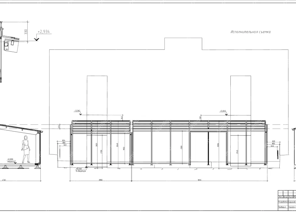
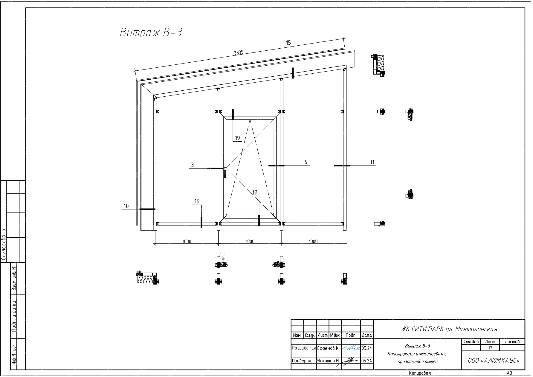
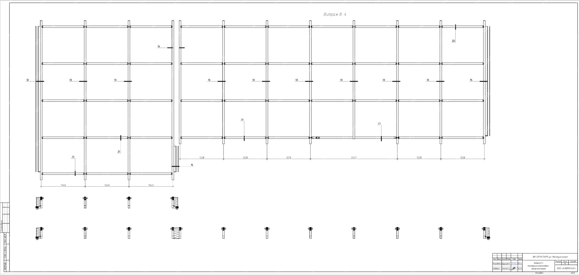
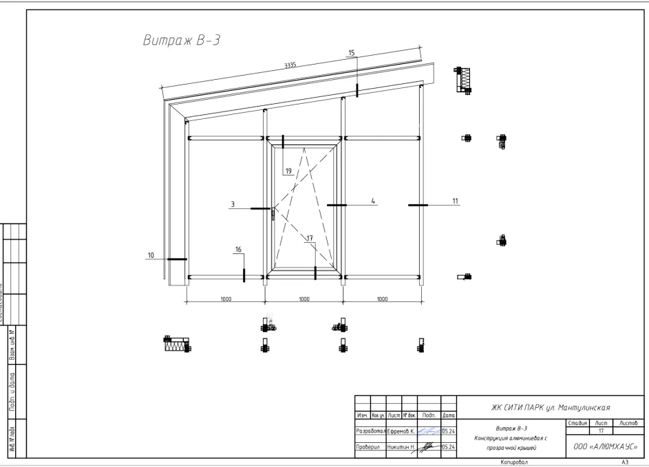
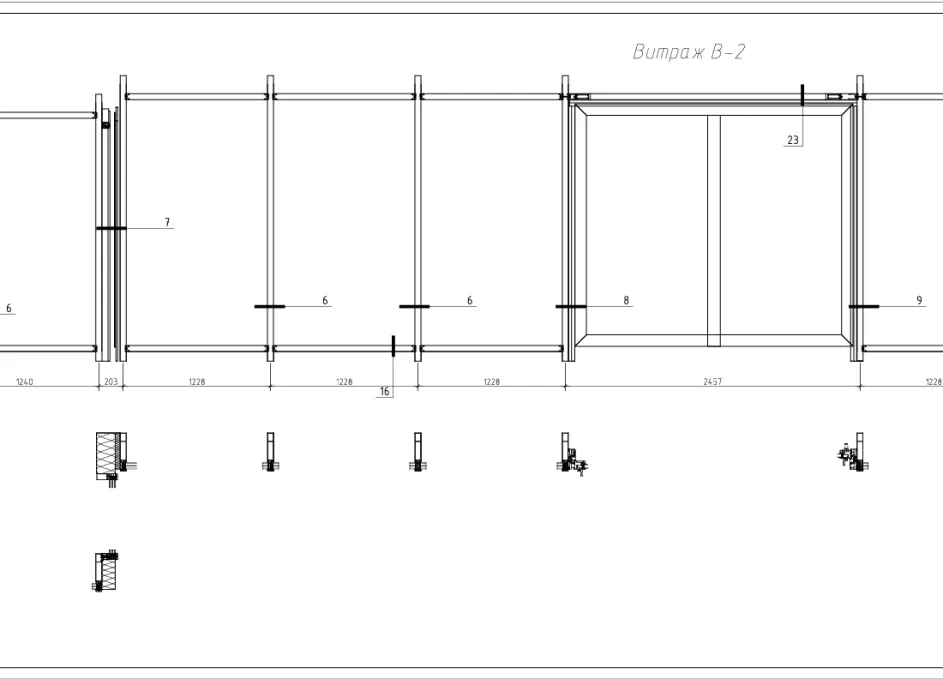
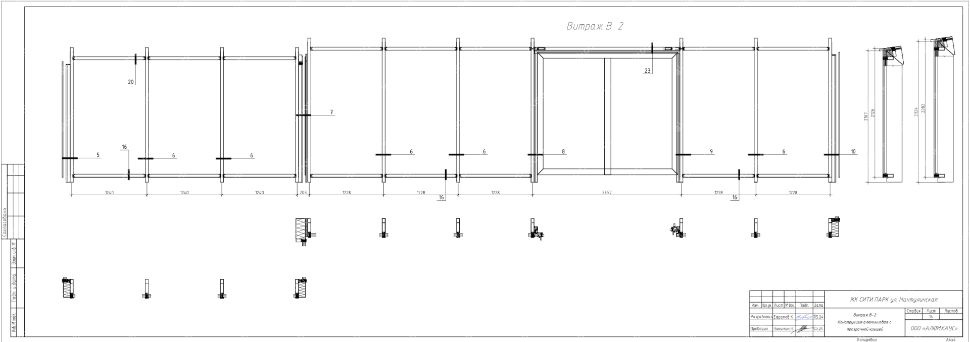
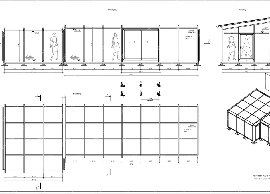
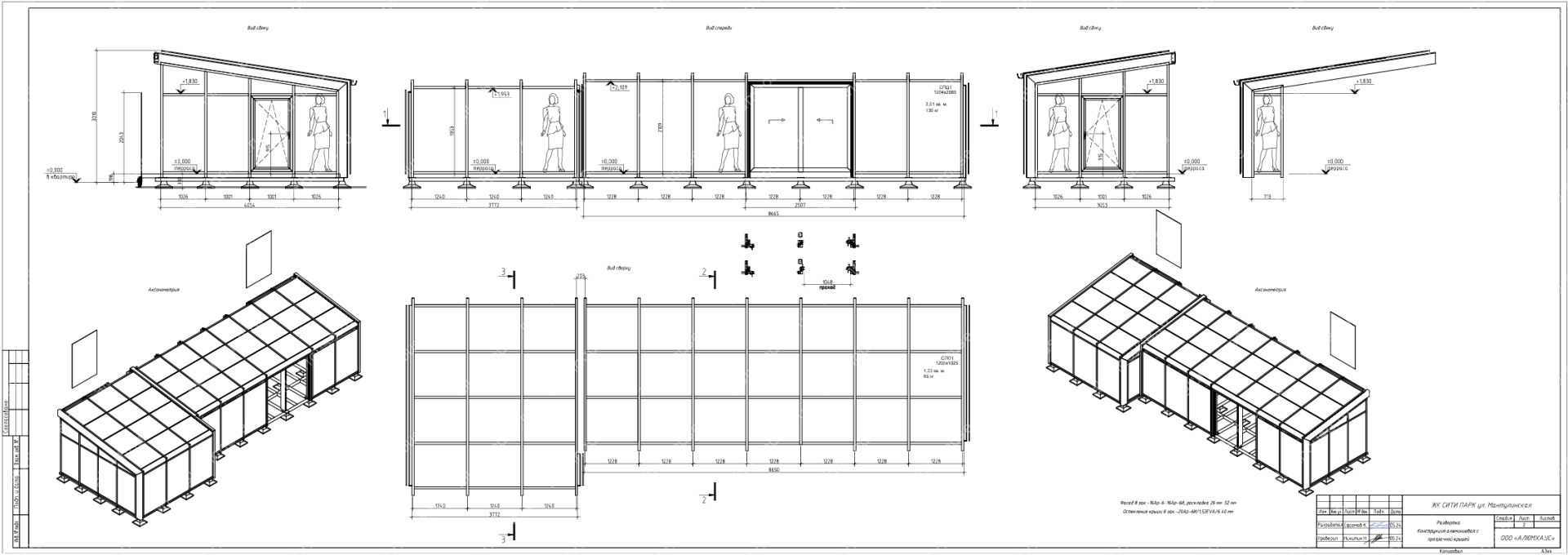
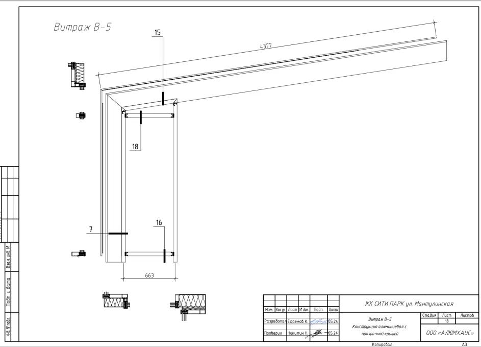
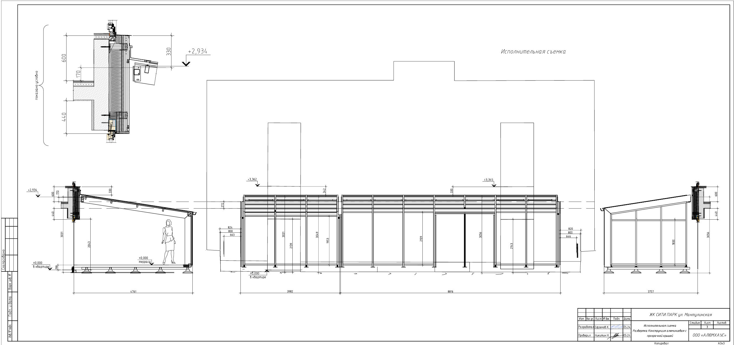
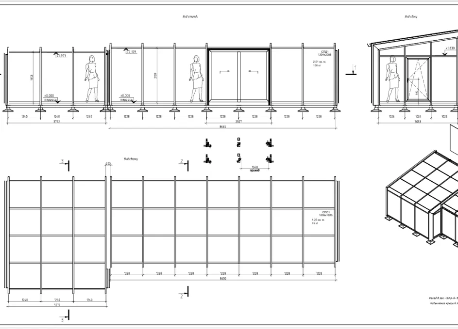
На чертежах представлены генеральный план и поэтажные планы зимнего сада с привязками к существующему зданию и отметкам чистых полов. Даны фасады и развертки с шагом стоек, высотными отметками, осями и параметрами заполнений, а также спецификация узлов профиля Vidnal F50. Отдельно показаны схемы проветривания и размещение дверных/раздвижных проёмов для удобства эксплуатации круглый год.

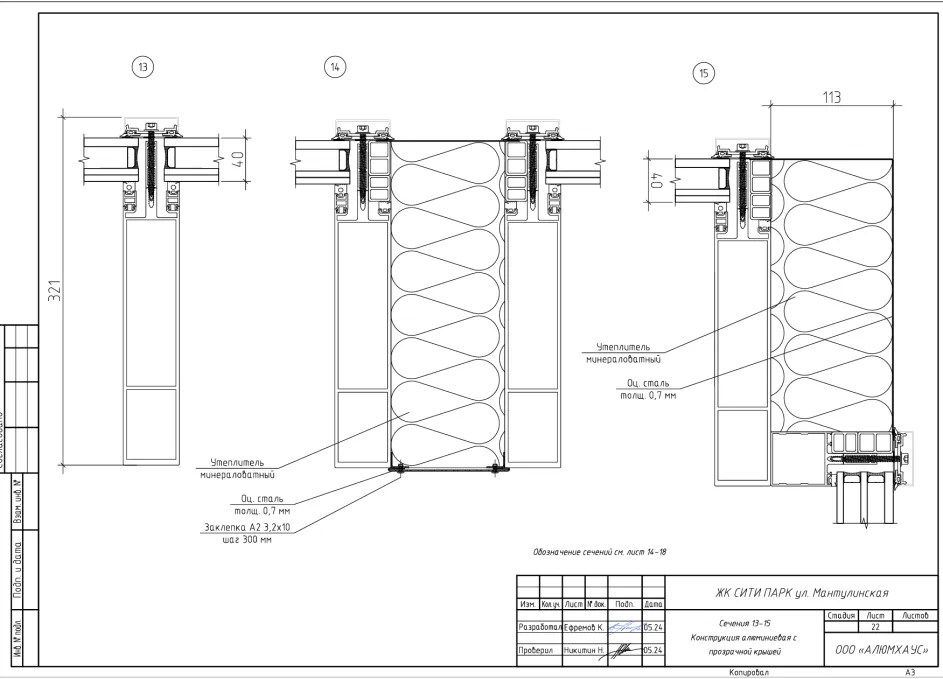
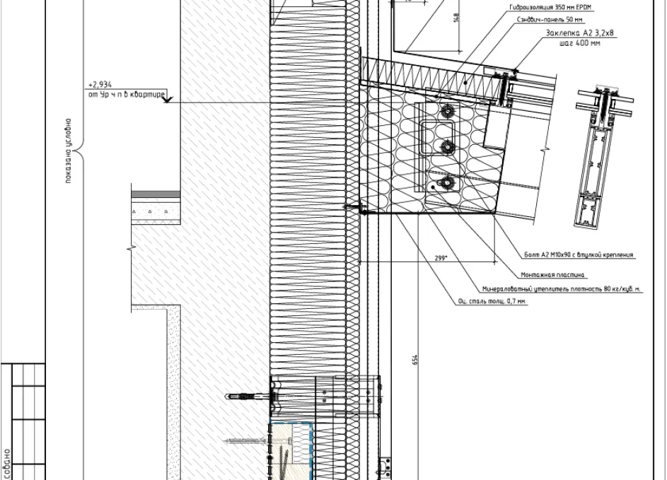
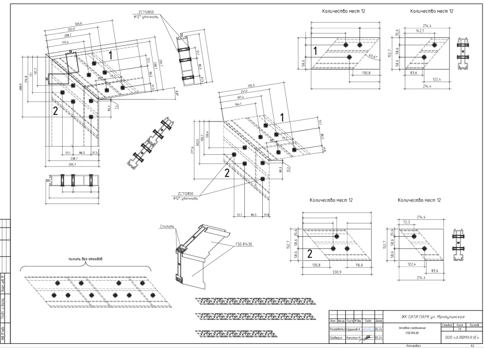
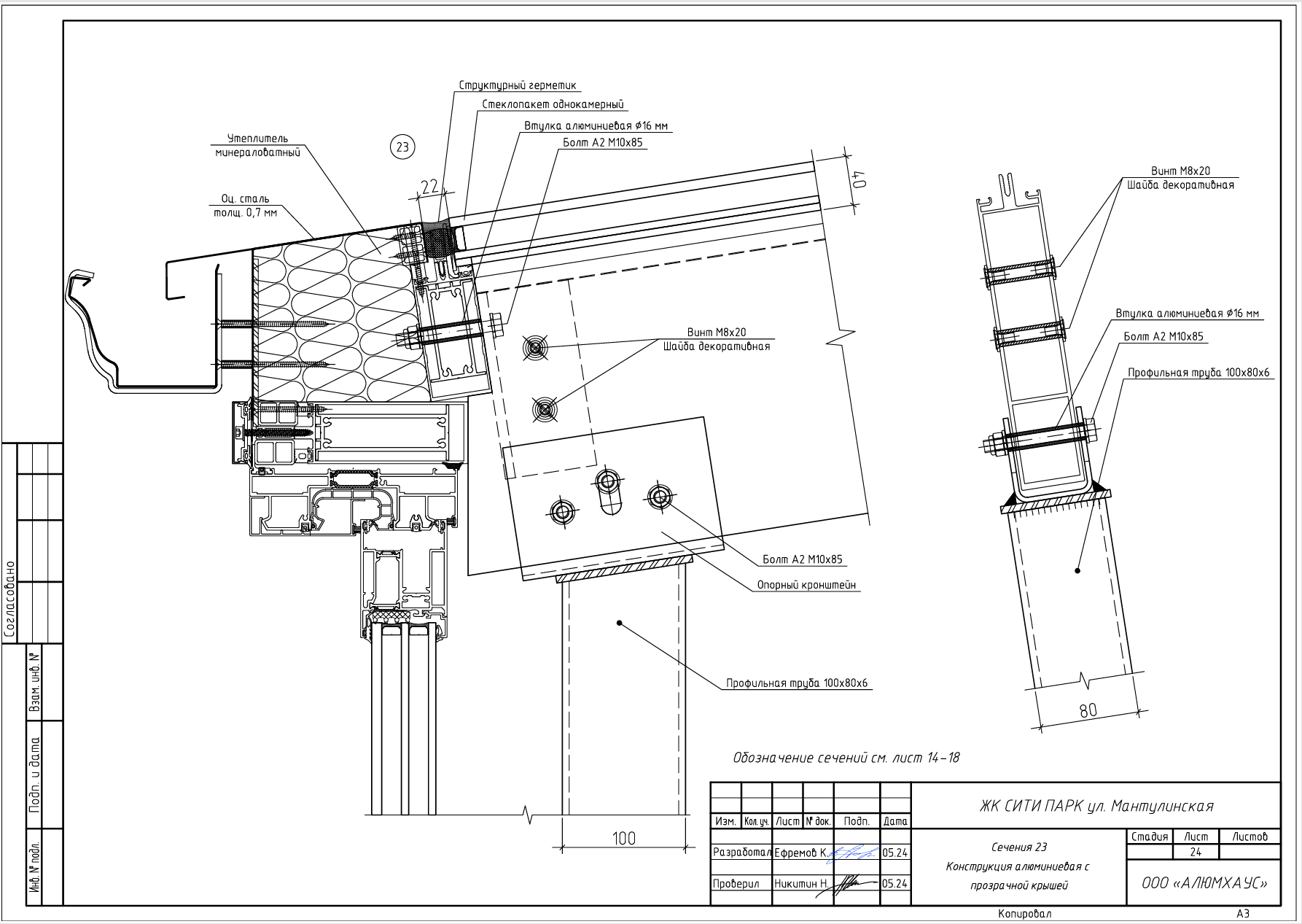
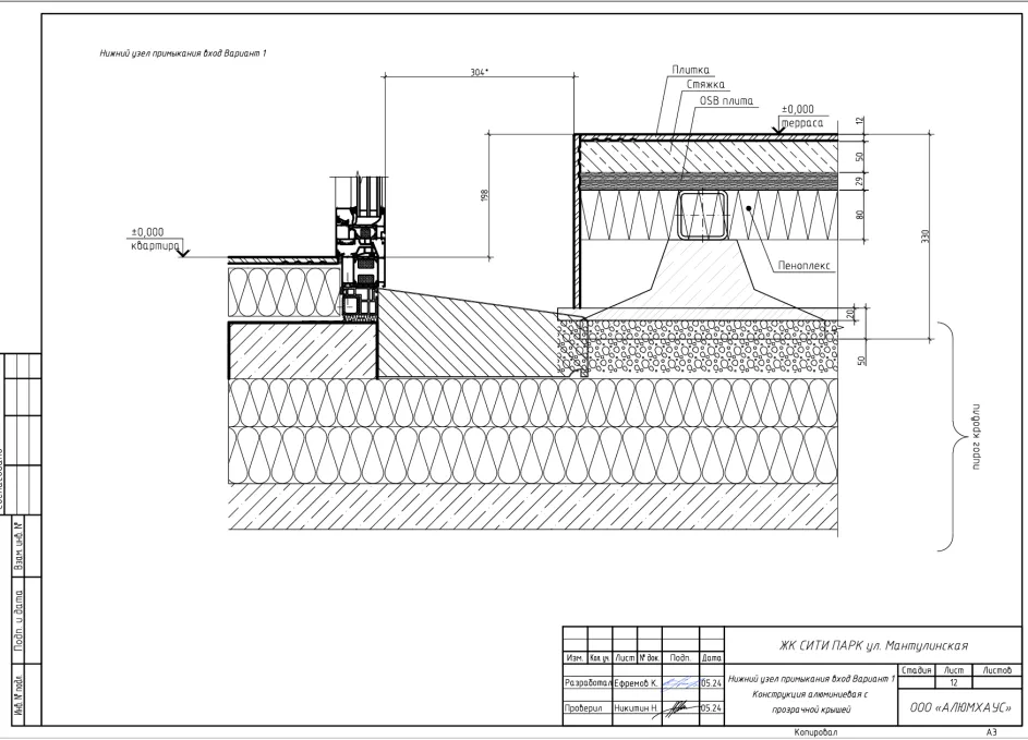
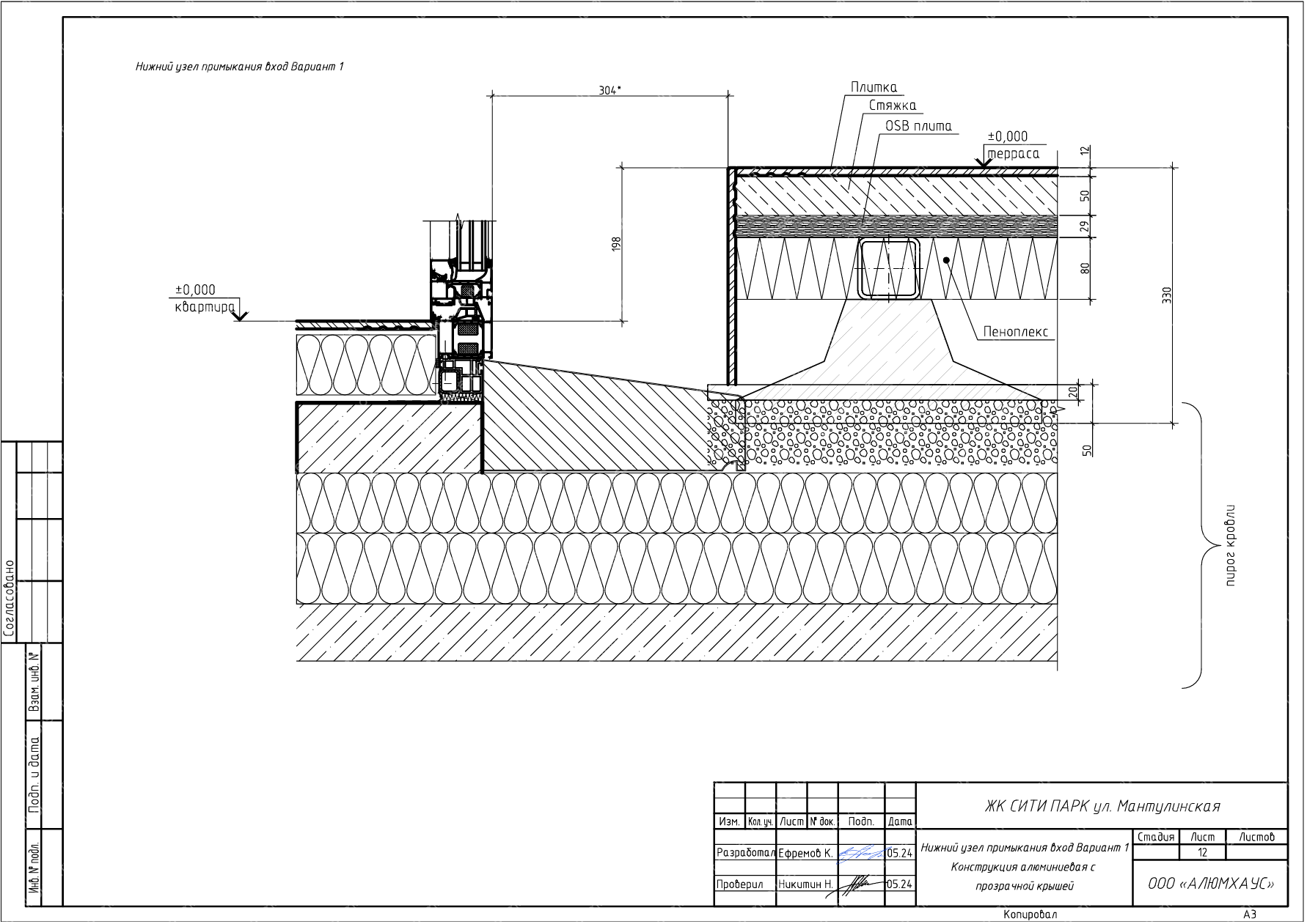
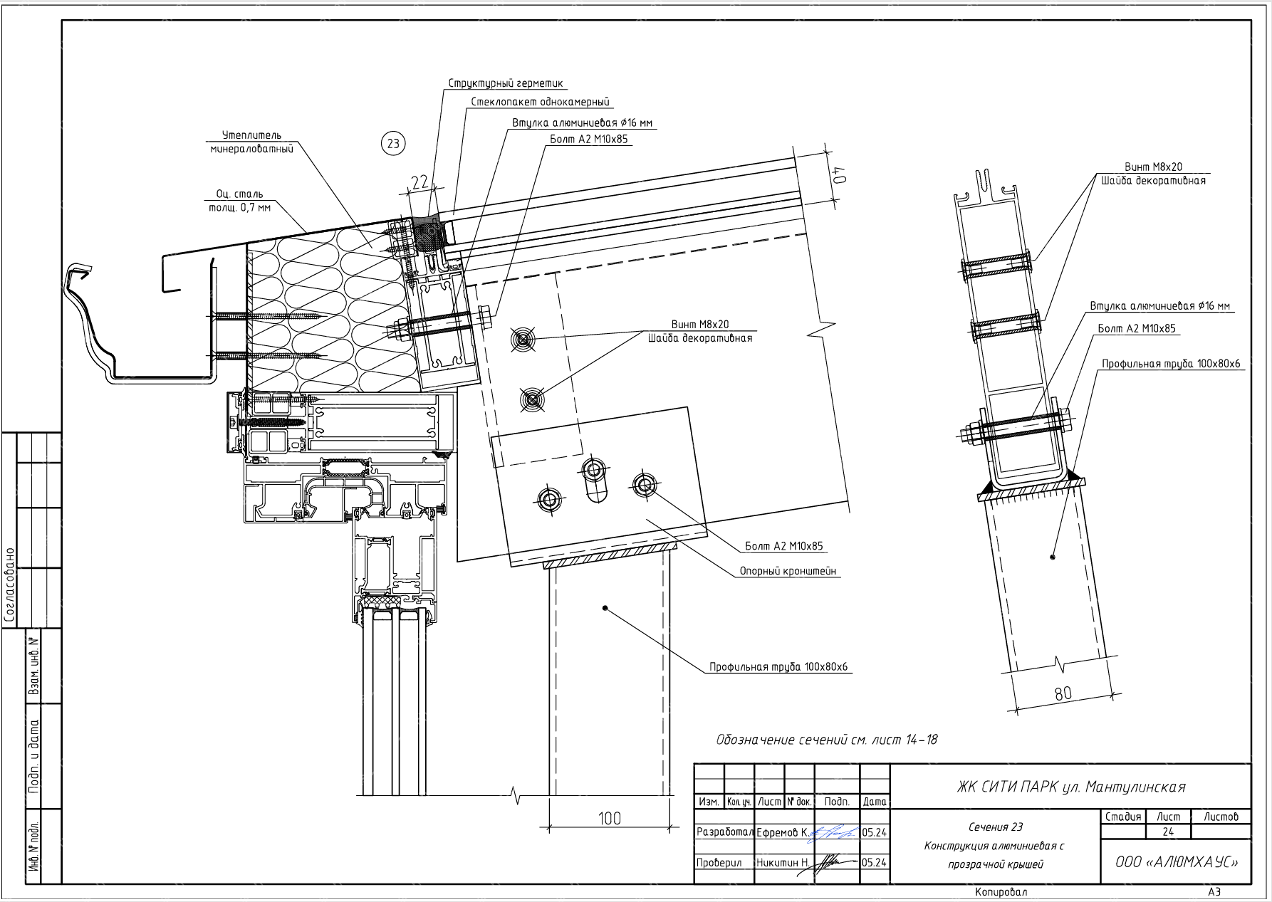
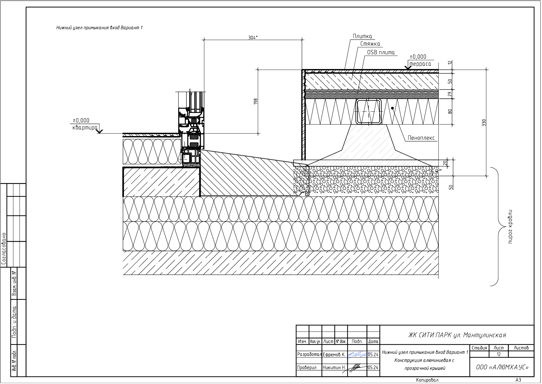
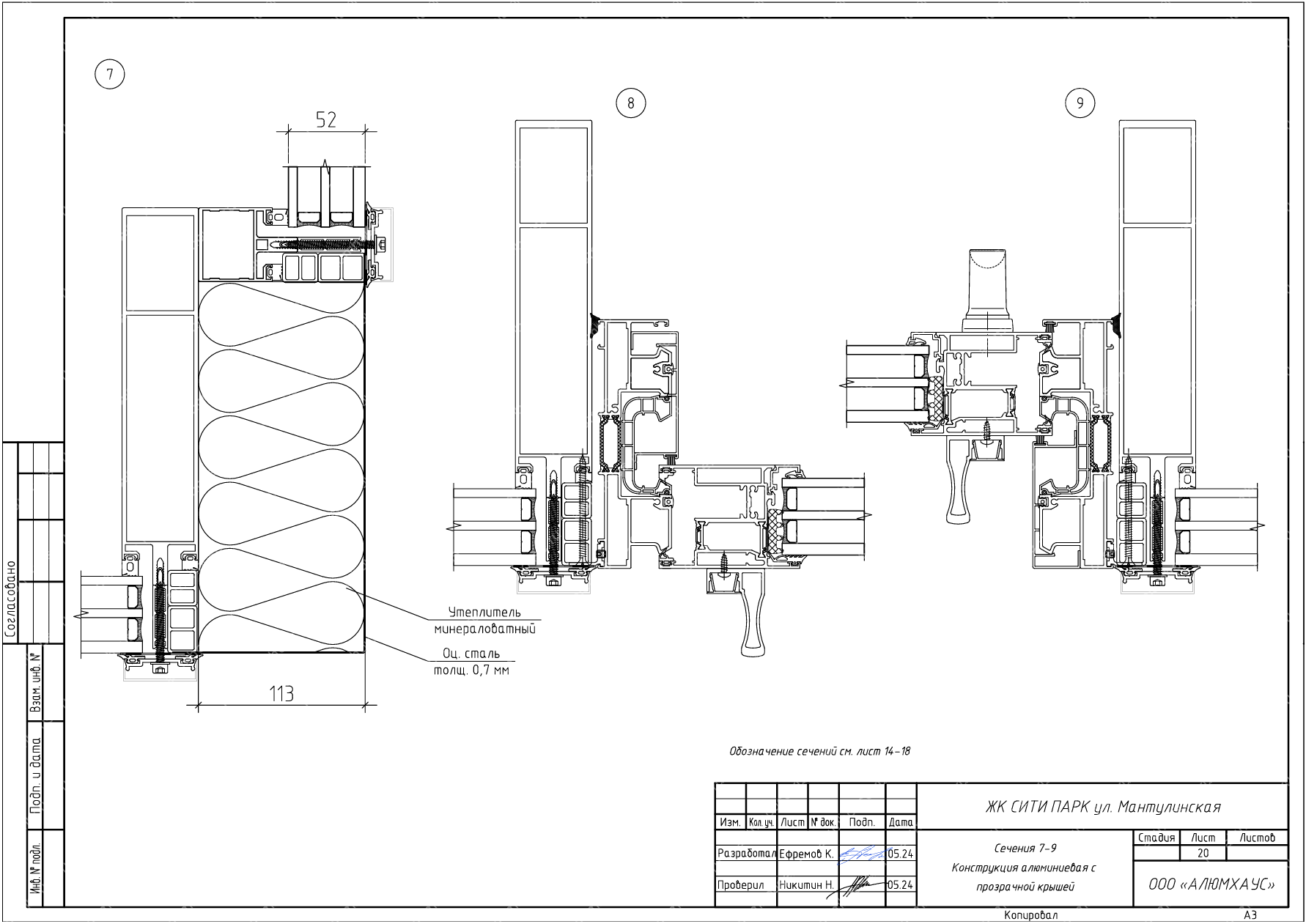
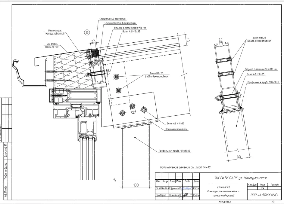
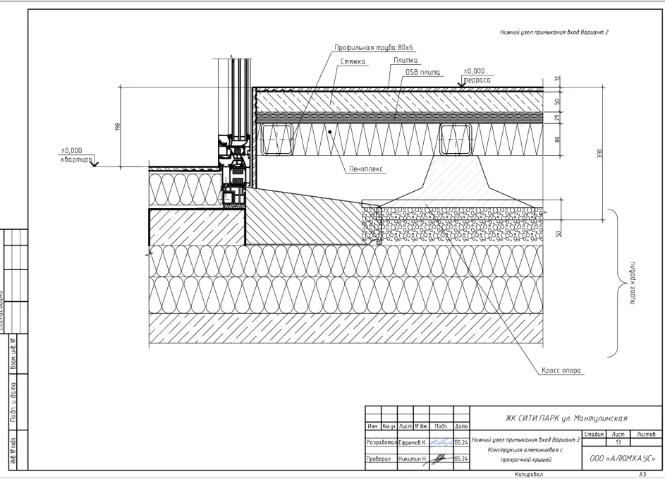
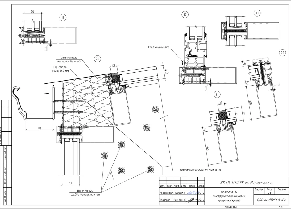
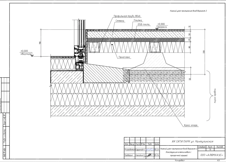
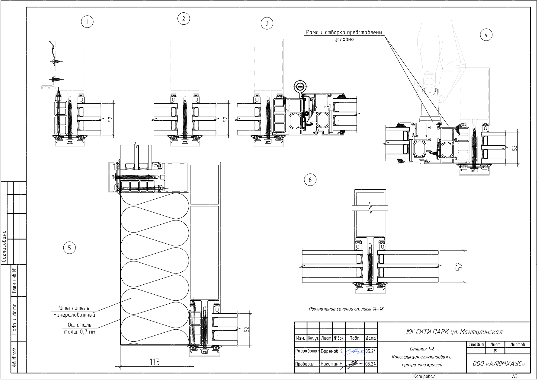
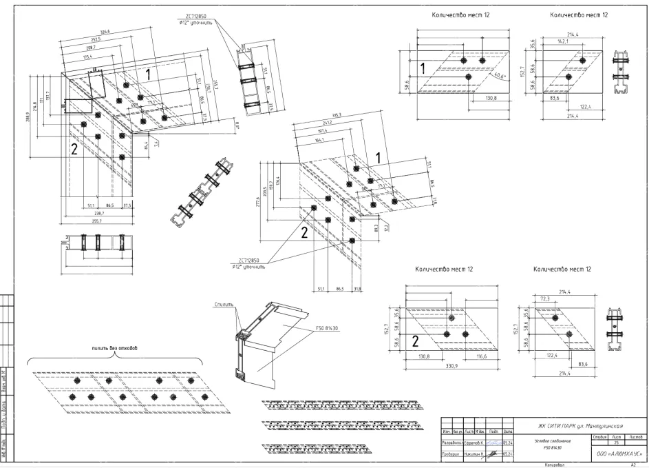
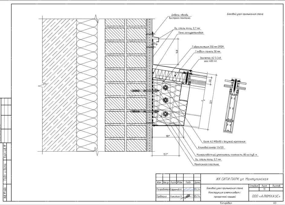
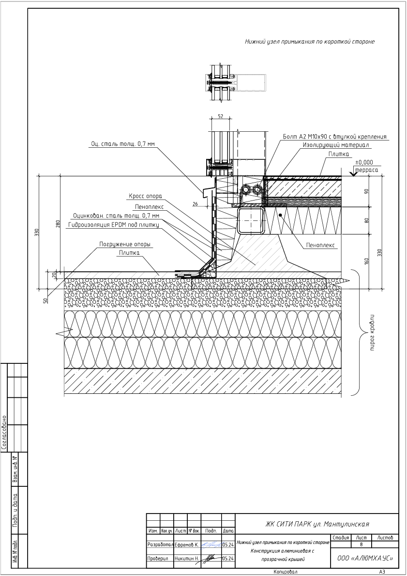
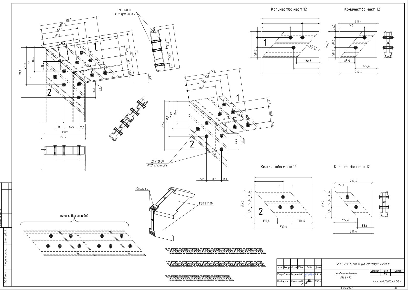
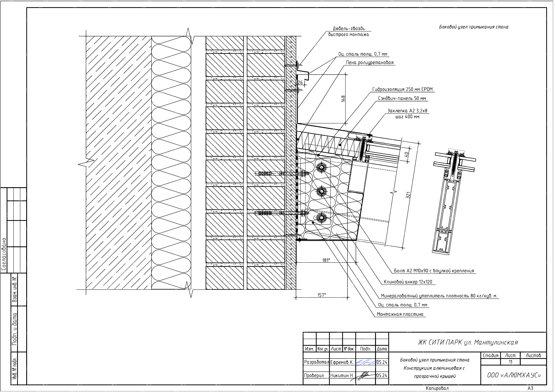
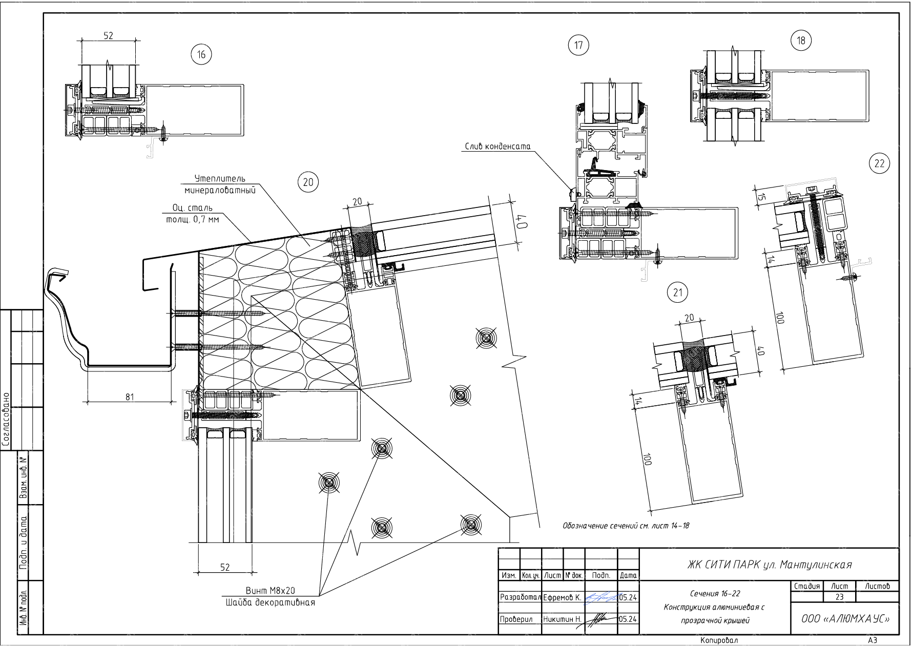
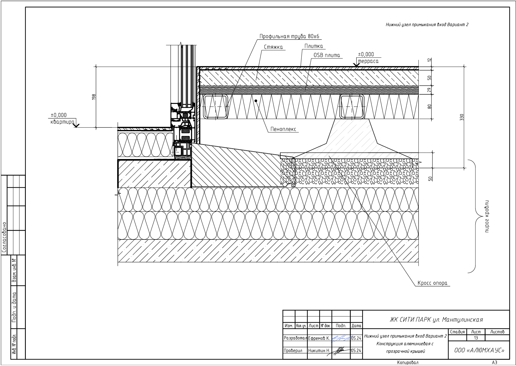
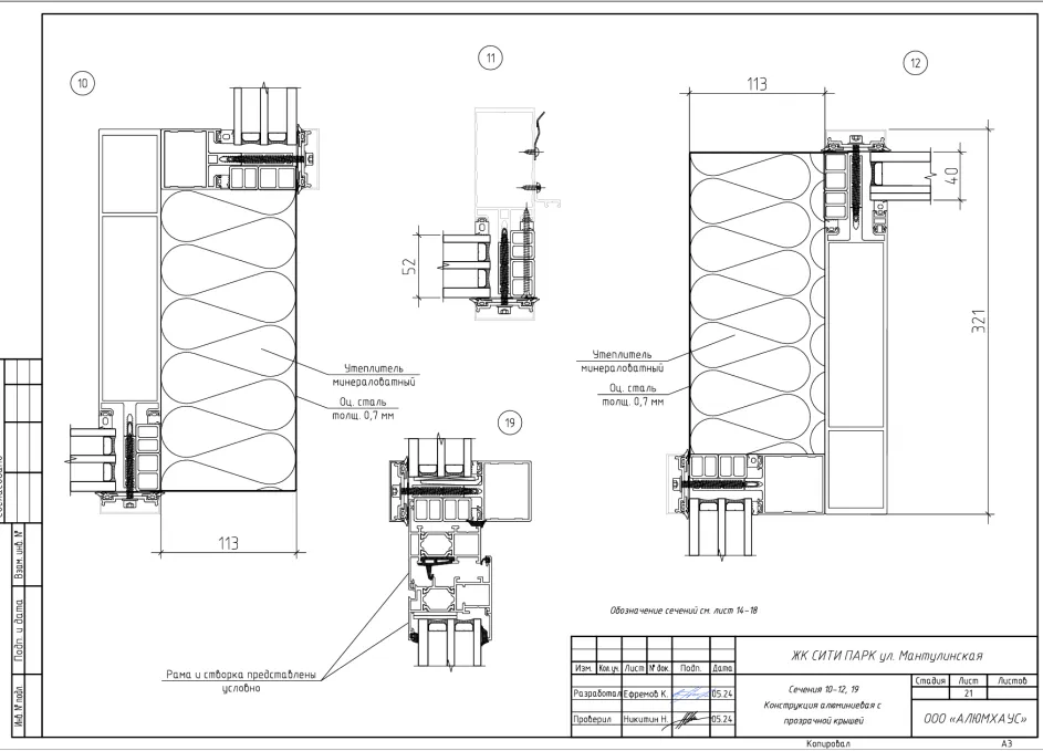
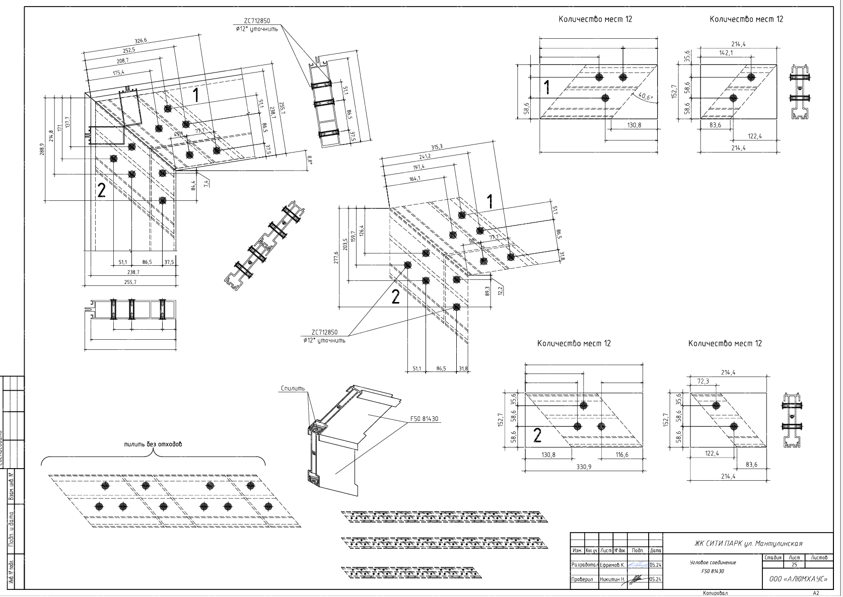
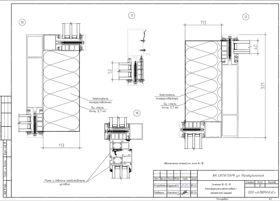
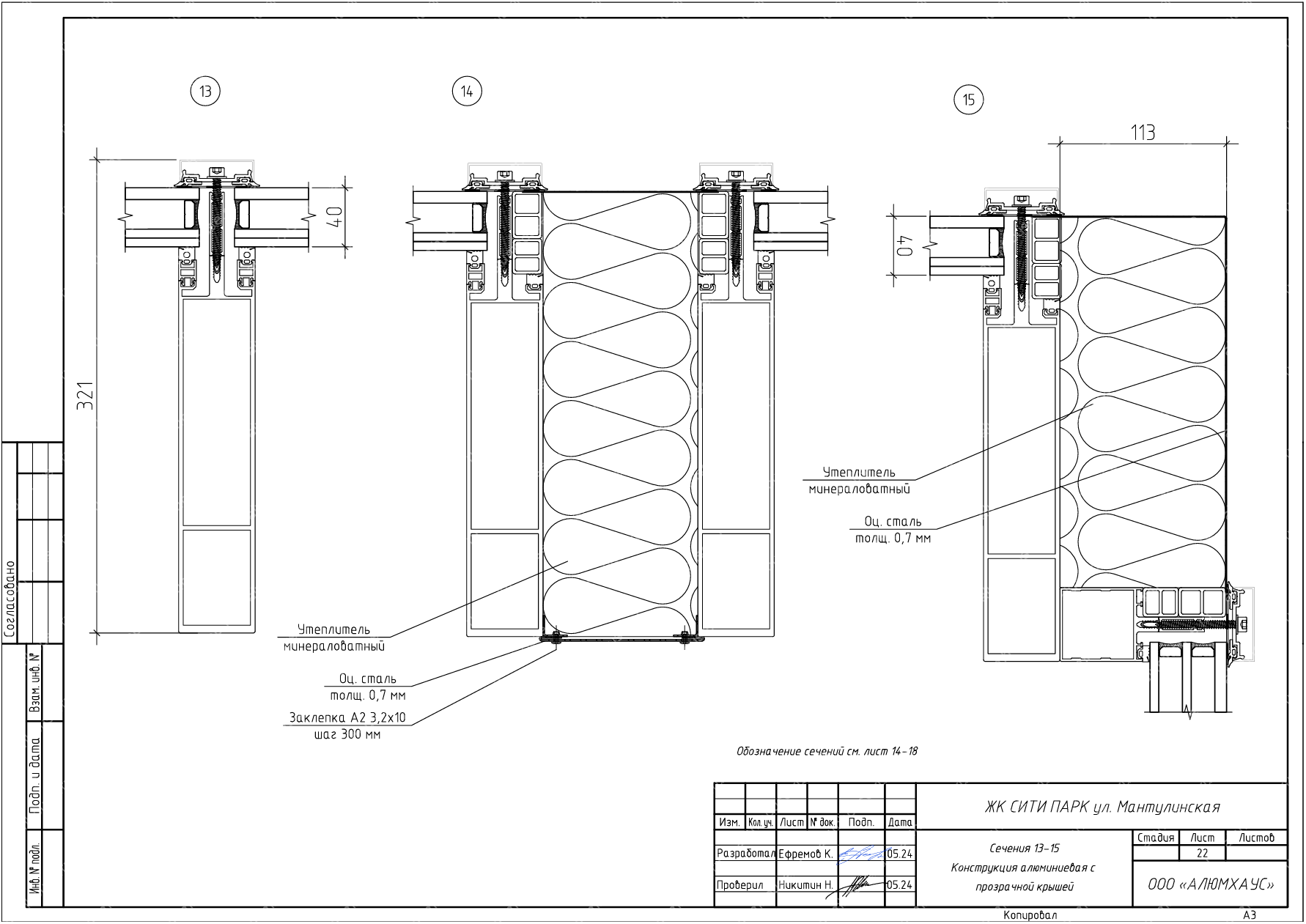
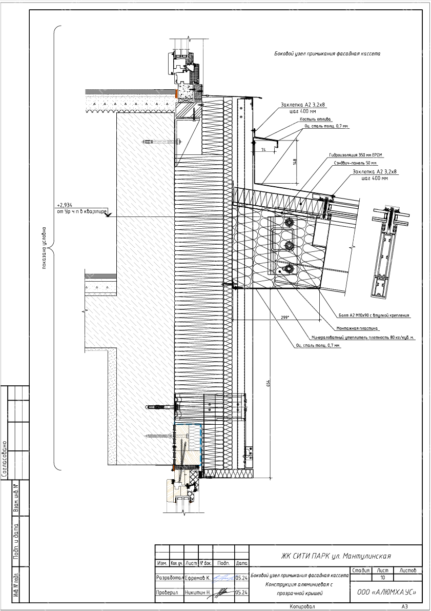
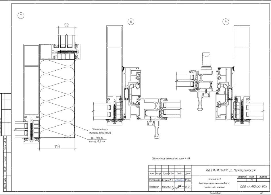
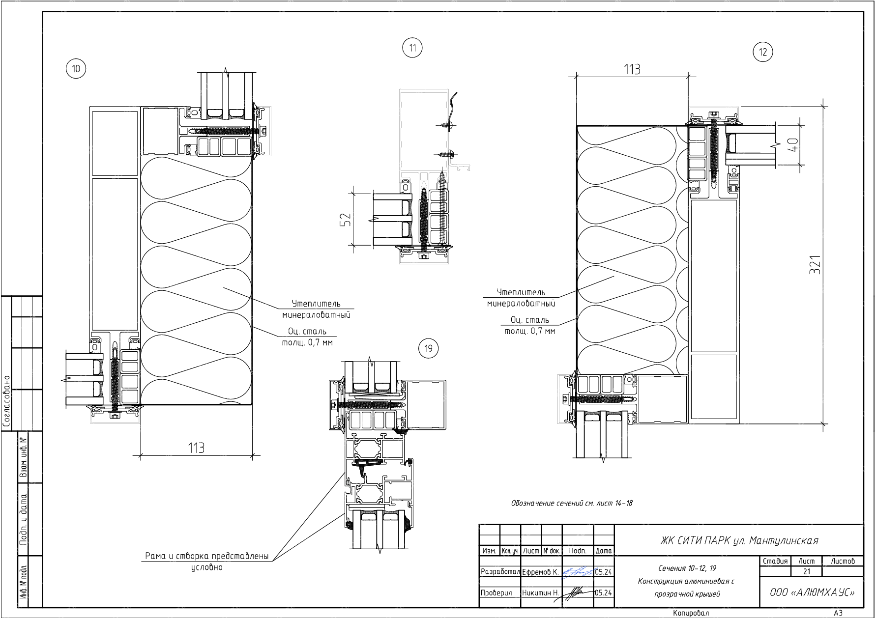
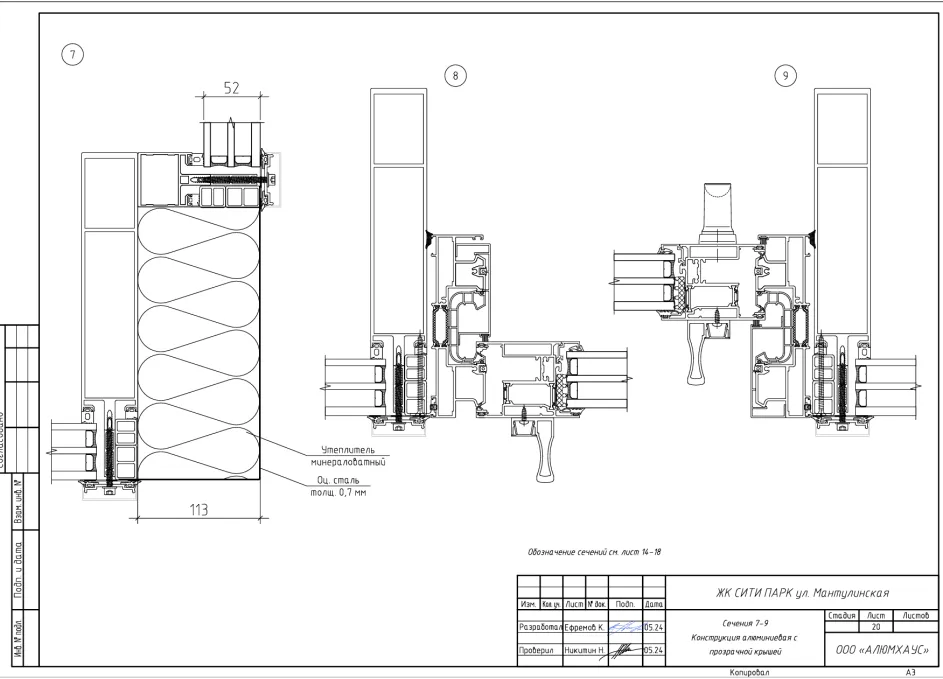
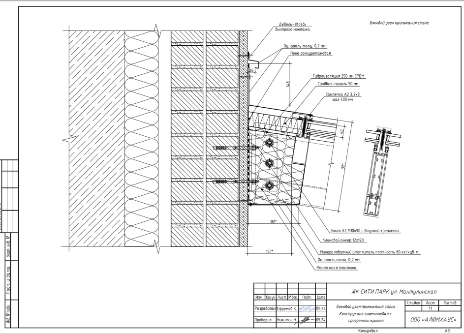
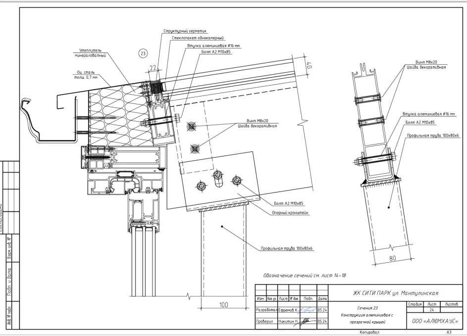
Узлы примыканий детализируют соединения к стенам, фундаментной плите/парапету и стеклянной кровле, включая термовставки, капельники и контуры герметизации. Приведены разрезы по крыше с уклоном, водоотводом и расположением несущих ригелей, а также требования к стеклопакетам и кровельным заполнениям. В документацию входят ведомости профилей и фурнитуры, спецификация стекла и лист последовательности монтажа для точного изготовления и аккуратной сборки на объекте.

От идеи до воплощения
этапы реализации

/01
Консультация специалиста
Консультант поможет Вам выбрать наиболе подходящий для Вас вариант.
/02
Проведение замеров
Замерщик приедет к Вам в удобное для вас время и снимет все необходимые размеры для производства.
/03
Производство
В производственной мастерской изготовят материалы точно по вашим размерам.
/04
Монтаж
Специалисты произведут монтаж в любой удобный для Вас день.
/05
Гарантия
Если вдруг обнаружится дефект, наши мастера оперативно устранят неисправность!

Посмотрите другие проекты

Навес из нержавеющей стали на спайдерном креплении подчеркнет индивидуальность вашего проекта. Благодаря каркасу из нержавеющей стали и точечным спайдерным креплениям такие конструкции выглядят легко и роскошно.
Срок
45 рабочих дней
Цельностеклянное остекление тамбура - доступное решение, в котором сочетание высококачественной фурнитуры и стекла обеспечивает минималистичный вид, четкие линии и визуальную прозрачность. Отлично защищают ваш тамбур от плохих погодных условий.


Срок
20 рабочих дней
Наши стеклянные кровельные системы являются практичным и визуально элегантным дополнением к дому или коммерческой недвижимости.
Срок
48 рабочих дней
Лаконичный стеклянный козырёк формирует сухой, безопасный проход, оставаясь почти незаметным в контуре фасада.

Отвечаем,
на ваши вопросы

Если вы не нашли ответа на свой вопрос, оставьте заявку и мы расскажем вам все, что вы хотите знать
Чем алюминиевое остекление отличается от пластикового?

Алюминиевые конструкции выигрывают по трем ключевым параметрам. Прочность — алюминий позволяет создавать панорамные окна высотой до 3–4 метров без перемычек, что невозможно с ПВХ. Долговечность — срок службы 50–80 лет, алюминий не желтеет, не деформируется и не требует покраски. Эстетика — тонкие рамы (в 2–3 раза уже пластиковых) дают максимум света и обзора. Пластик теплее в стандартном исполнении, но если вам нужно панорамное остекление или раздвижные системы на террасу — алюминий вне конкуренции

Что такое «теплый» и «холодный» алюминий и как выбрать остекление?

Главное отличие — наличие терморазрыва. В теплом профиле есть полиамидная вставка, которая разрывает мостик холода и не дает теплу уходить наружу. Холодный алюминий подходит для неотапливаемых террас, веранд, беседок, балконов. Он защищает от ветра и осадков, но зимой температуру не сохранит. Теплый алюминий можно использовать для жилых комнат и круглогодичного проживания — по теплоизоляции он не уступает ПВХ, но при этом сохраняет все преимущества алюминия: прочность, долговечность и тонкие рамы

Не будут ли алюминиевое остекление холодными зимой?

Это зависит от того, какой профиль вы выберете. Если поставить холодный алюминий в жилую комнату — да, будет холодно, и появится конденсат. Это главная ошибка при экономии. Если выбрать теплый алюминий с терморазрывом и энергосберегающим стеклопакетом (i-стекло), то проблем не будет. Коэффициент теплопередачи таких систем достигает 1,0–1,3 Вт/м²·К, что соответствует нормам для жилых помещений. Также важен правильный монтаж по технологии «теплый периметр», который исключает мостики холода

Сколько стоит остекление из алюминиевого профиля «под ключ» в Москве?

Стоимость рассчитывается индивидуально и зависит от трех факторов. Тип системы — холодный алюминий от 14 000–24 000 руб/м², теплый с терморазрывом от 24 000 до 65 000 руб/м² в зависимости от системы остекления. Стеклопакет — однокамерный дешевле, двухкамерный с энергосберегающим i-стеклом дороже, но окупается экономией на отоплении. Сложность конструкции — раздвижные портальные системы, панорамное остекление, нестандартные формы увеличивают стоимость. Точную смету мы составляем после бесплатного выезда инженера на замер, с детализацией по каждому элементу

Можно ли устанавливать алюминиевые конструкции и остекление зимой?

Да, монтаж возможен в зимний период при температуре до –15°C. Используется зимняя монтажная пена, которая сохраняет эластичность на холоде и не трескается при замерзании. Проемы должны быть очищены от снега и наледи, при необходимости помещение прогревается тепловыми пушками. Зимний монтаж имеет дополнительное преимущество: вы сразу видите герметичность конструкции в реальных условиях низких температур и можете оценить отсутствие продувания. Также многие компании (включая нас) предоставляют скидки в низкий сезон — до 15–20%

Сколько служат алюминиевые конструкции и остекление?

Срок службы алюминиевых профилей и остекления — 50–80 лет. Алюминий не ржавеет, не желтеет, не деформируется от перепадов температур (выдерживает от –80°C до +100°C). Порошково-полимерное покрытие сохраняет цвет десятилетиями без обновления и не выгорает на солнце. Это в 5–7 раз дольше, чем у дерева (требует покраски каждые 5–7 лет), и в 2–3 раза дольше, чем у качественного ПВХ. По сути, вы устанавливаете конструкцию один раз и забываете о ней на десятилетия

Какая гарантия на алюминиевое остекление и монтаж?

Мы предоставляем раздельную гарантию. На алюминиевое остекление профиль и стеклопакеты — от 3 до 10 лет (заводская гарантия производителя). На монтажные работы — от 3 до 5 лет. Гарантия фиксируется в договоре и покрывает герметичность швов, сохранение геометрии конструкции, корректную работу фурнитуры и отсутствие продувания. При наступлении гарантийного случая мы выезжаем на объект и устраняем недостатки за свой счет. Важно: гарантия на монтаж важнее гарантии на профиль — даже лучшая система будет промерзать при некачественной установке

Как заказать и купить качественное остекление из алюминиевого профиля под ключ в Москве и Московской области?

Оставьте заявку на сайте компании ООО "Алюмхаус" или позвоните по телефону +74956658299 или напишите на почту alumhouse@mail.ru. Бесплатный выезд замерщика по Москве и всей области. Мы составим смету, произведём конструкции по договору и установим качественное остекление под ключ. Гарантия на работу 5 лет.