+7 495 665 82 99 +7 926 253 40 88 alumhouse@mail.ru
Московская обл., го Красногорск, пгт Путилково, БЦ Гринвуд (GREENWOOD), стр. 23, этаж 3, офис № 160
Пн-Пт 9:00-18:00

Проектирование фасадного остекления частного дома Alutech F50 + Alutech W72

Линии

Описание проекта

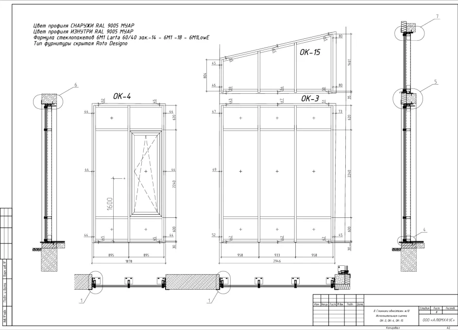
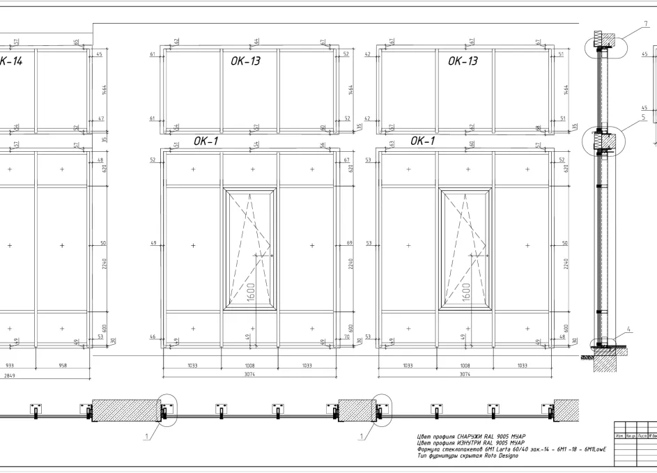
Проект описывает фасадную систему на основе Alutech F50 с интегрированными тёплыми оконно‑дверными блоками Alutech W72 для обеспечения энергоэффективности. Предоставлен комплект инженерной документации для светопрозрачного фасада на базе стоечно‑ригельной системы F50 и теплых оконно‑дверных блоков W72. В проекте определяются габариты и конфигурация модулей, шаг стоек и ригелей, а также теплотехнические требования к заполнениям. Задача - обеспечить прочность, энергоэффективность и аккуратную интеграцию фасада в архитектуру дома.

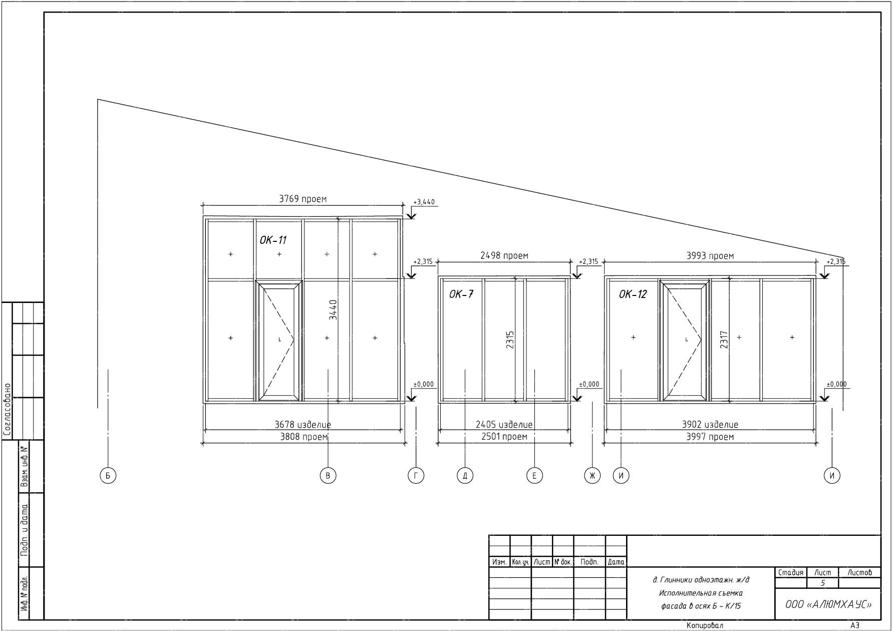
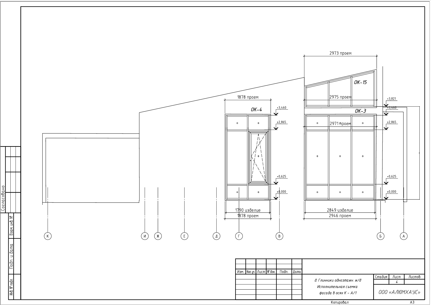
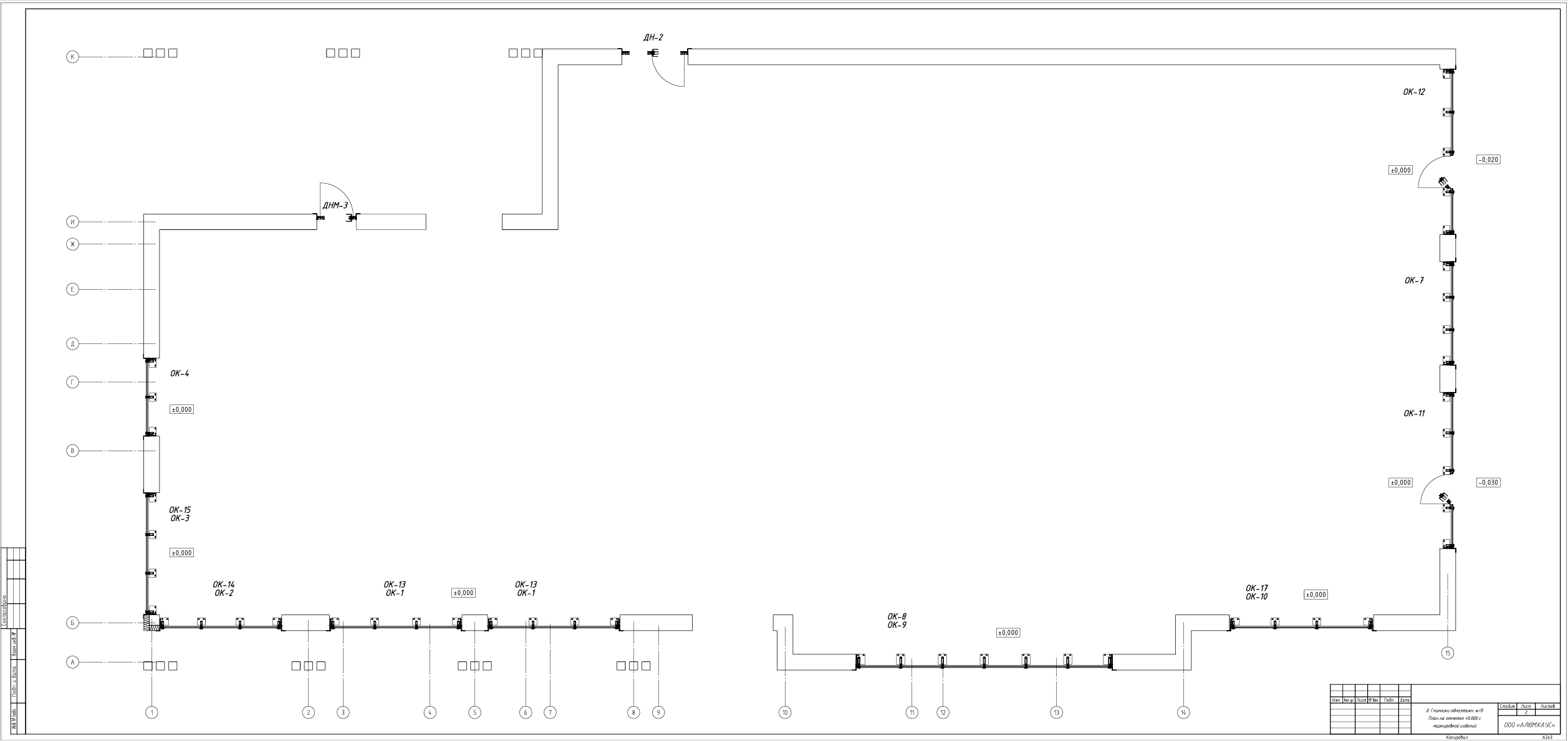
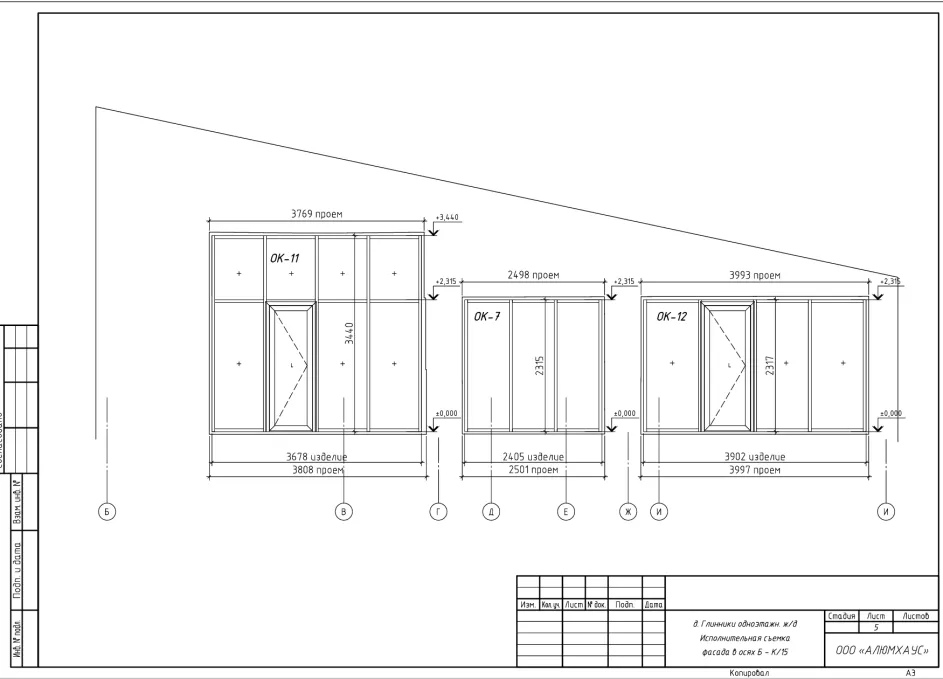
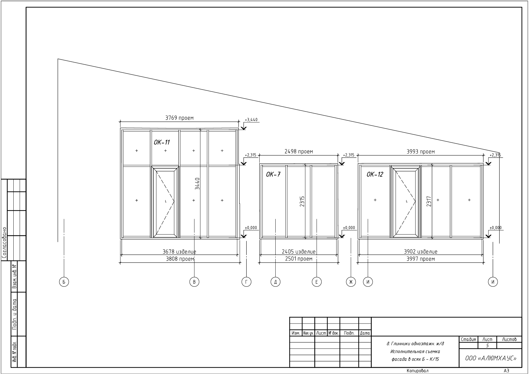
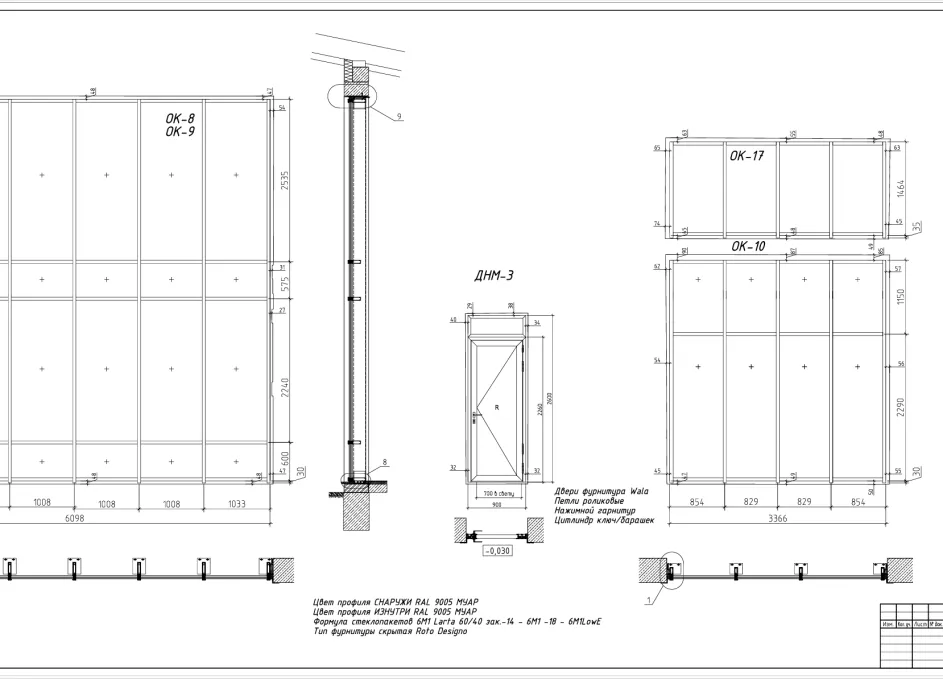
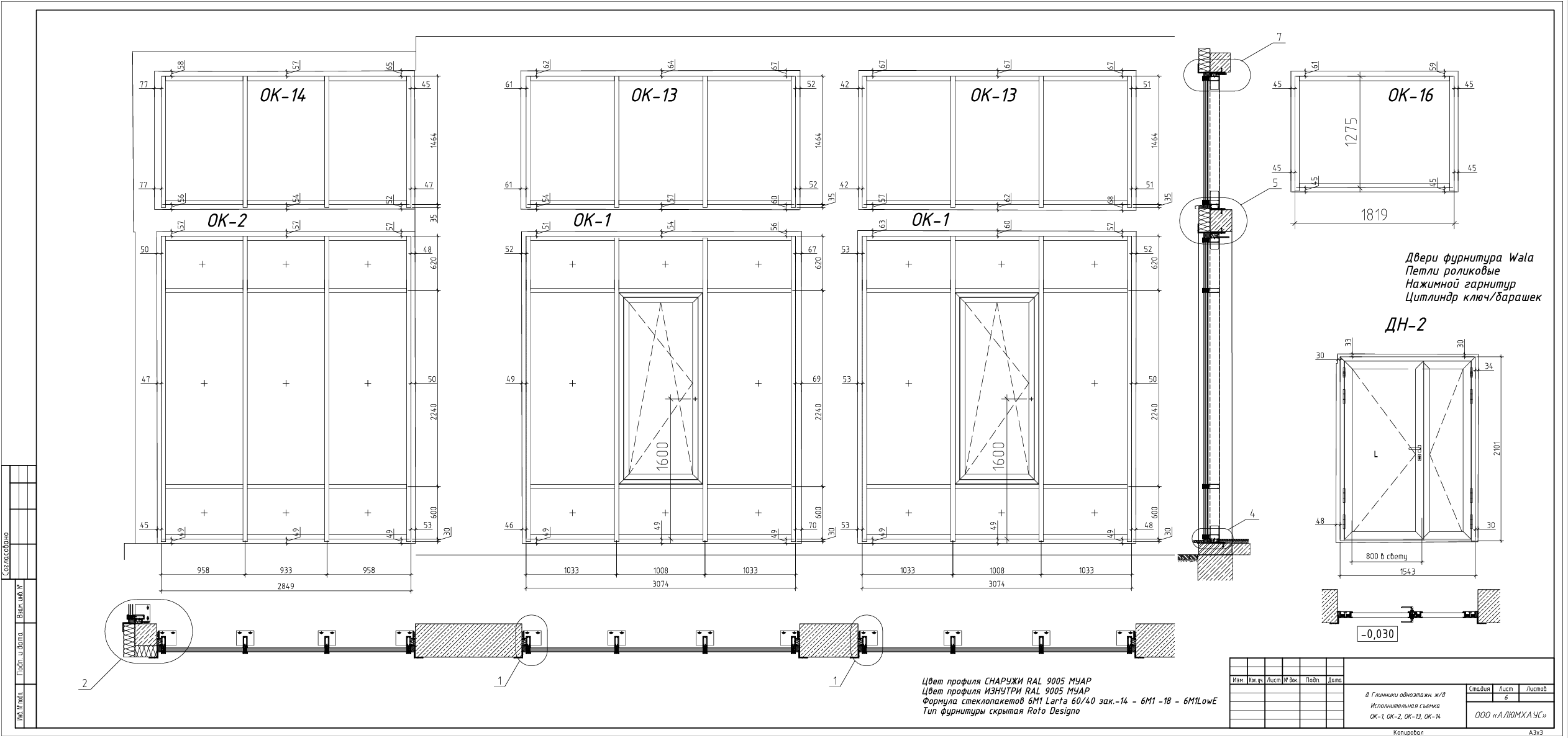
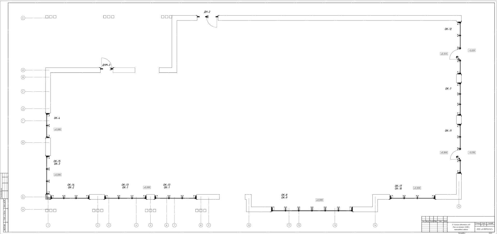
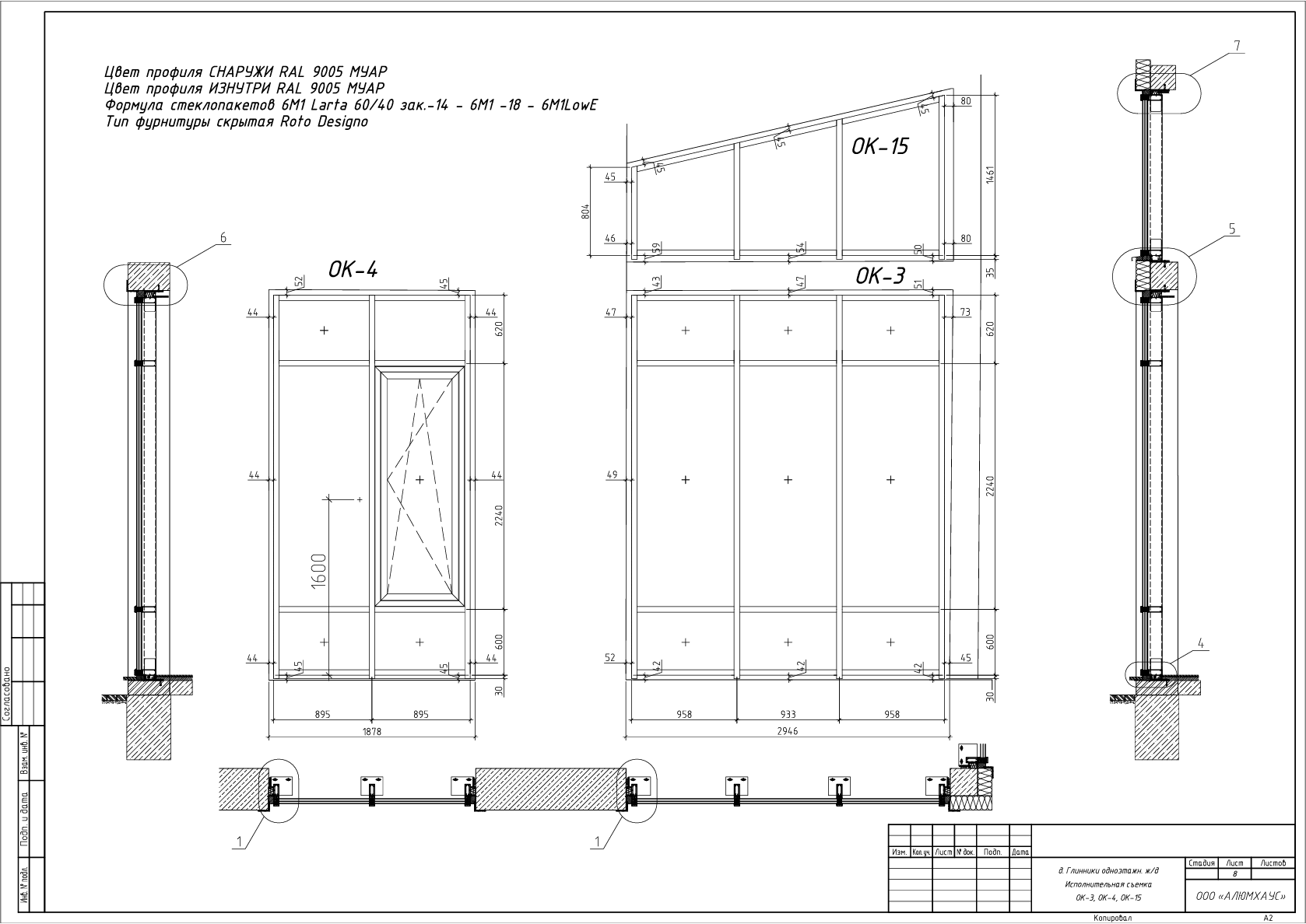
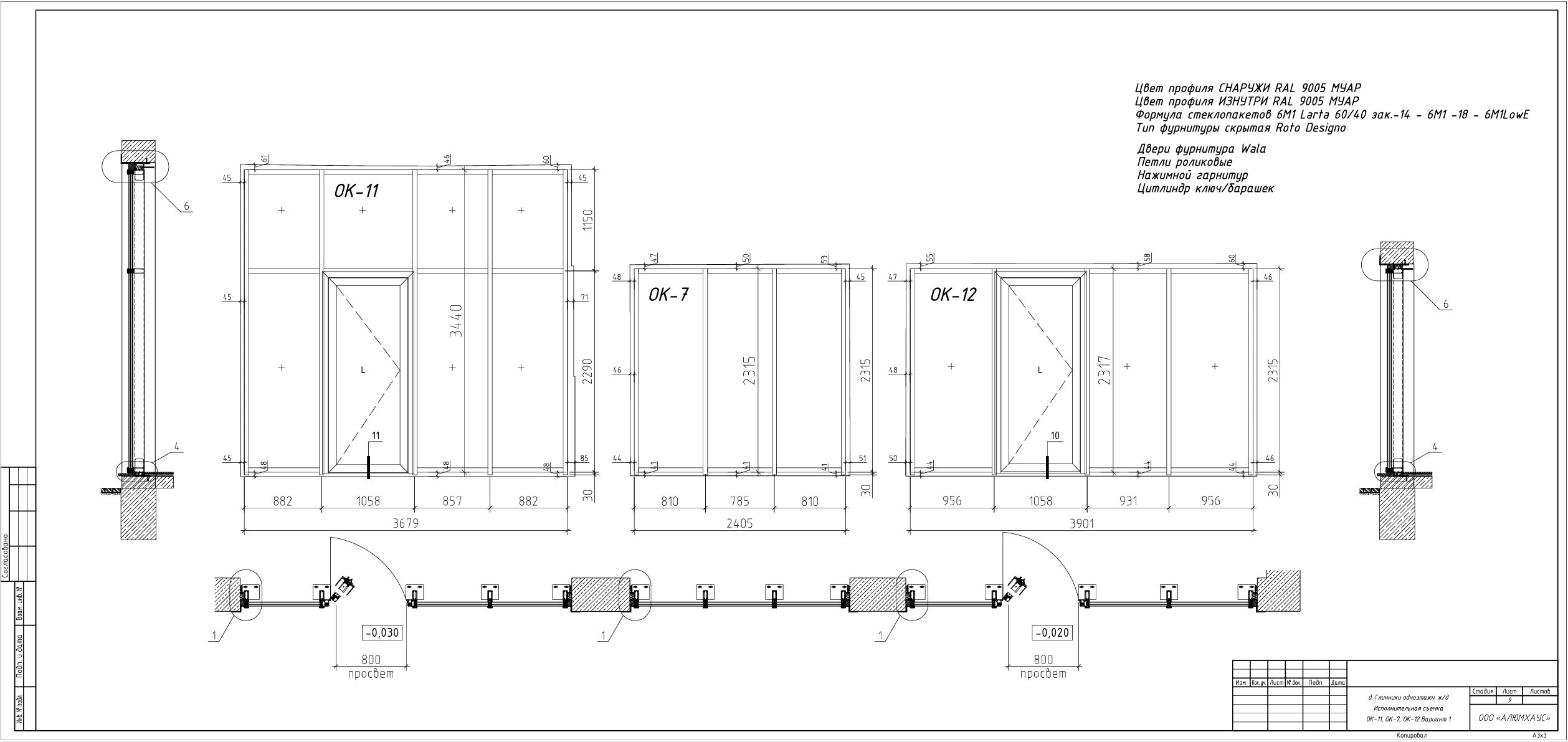
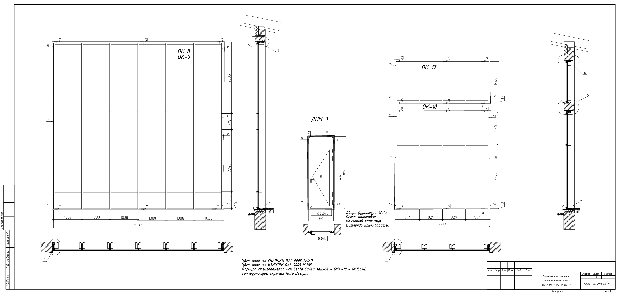
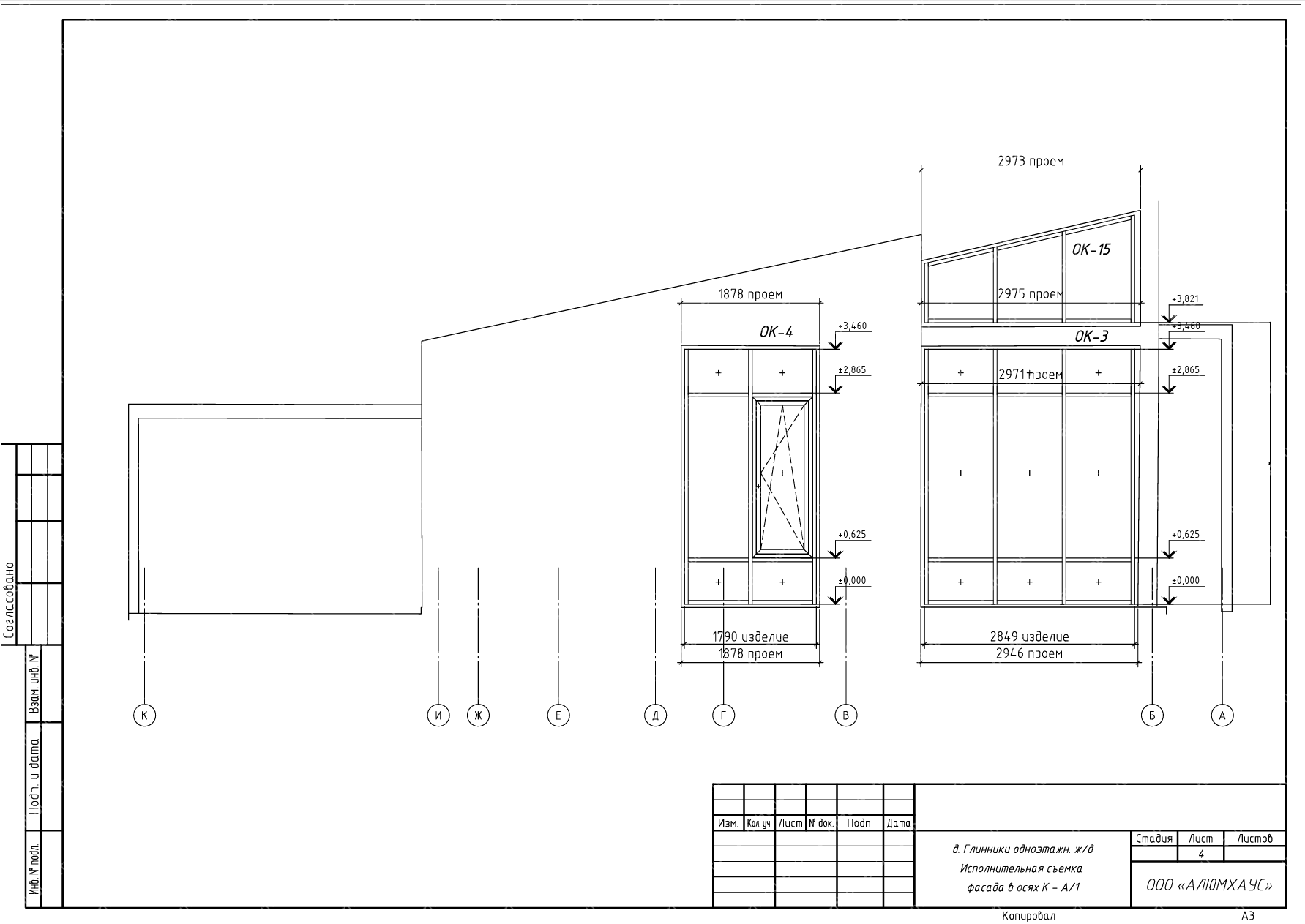
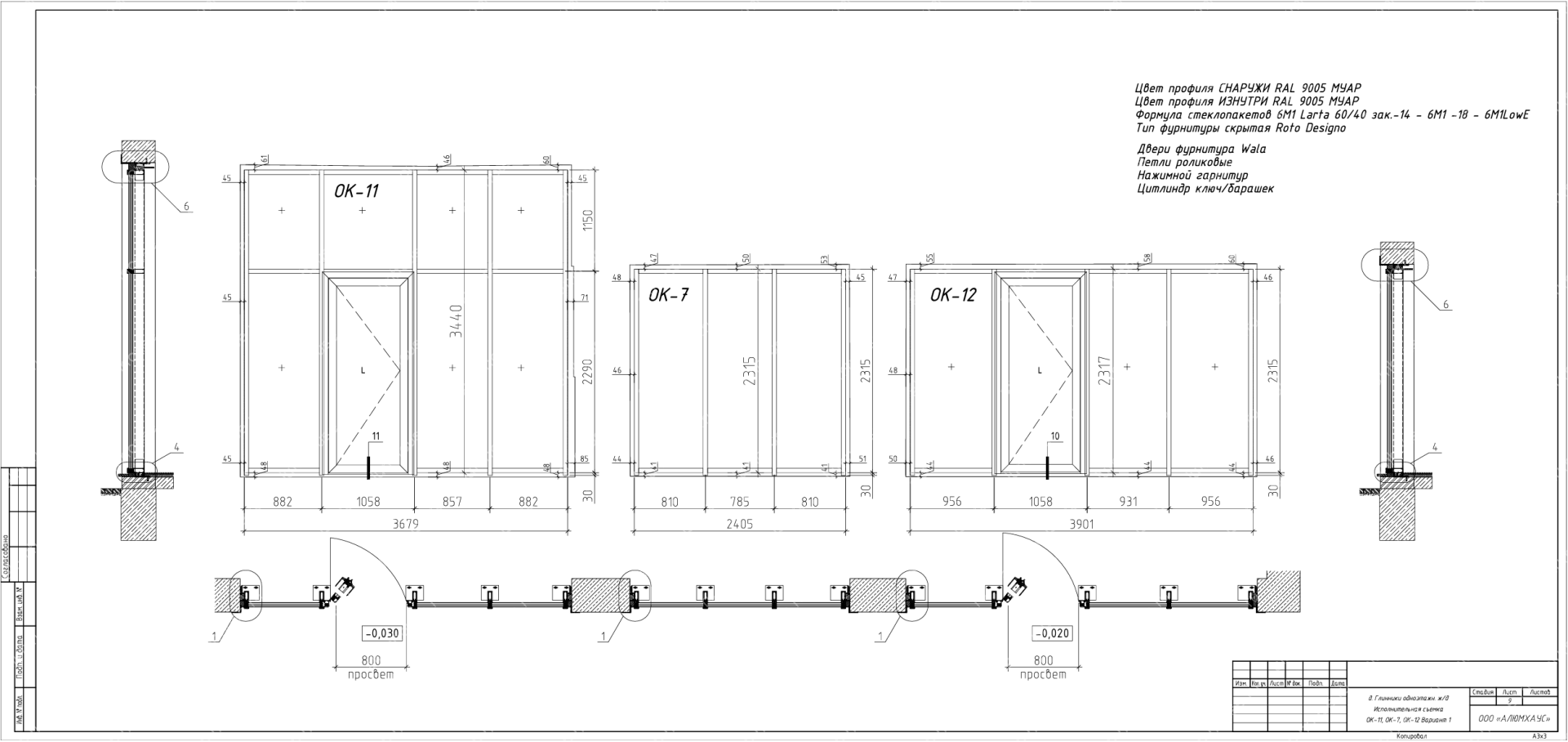
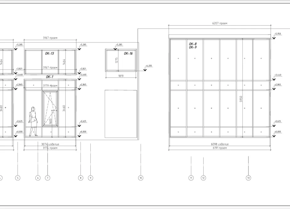
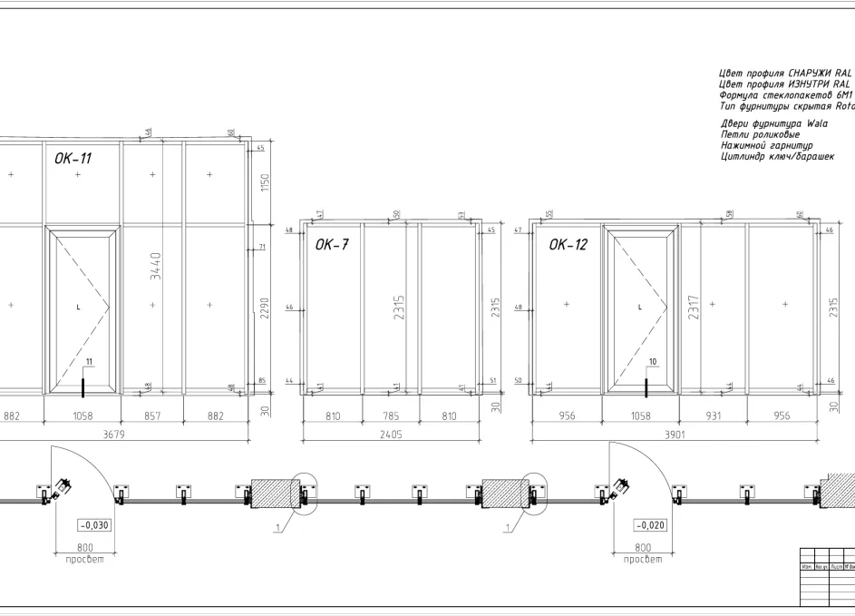
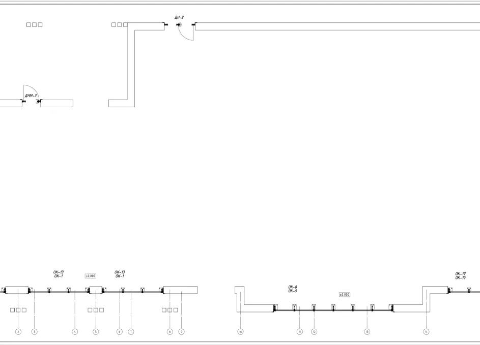
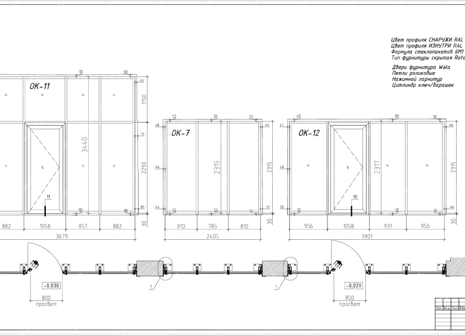
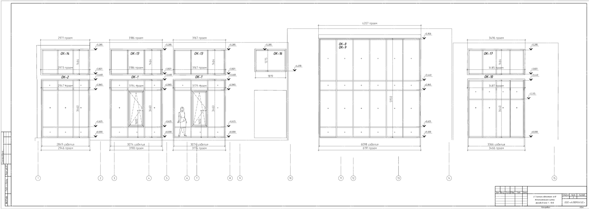
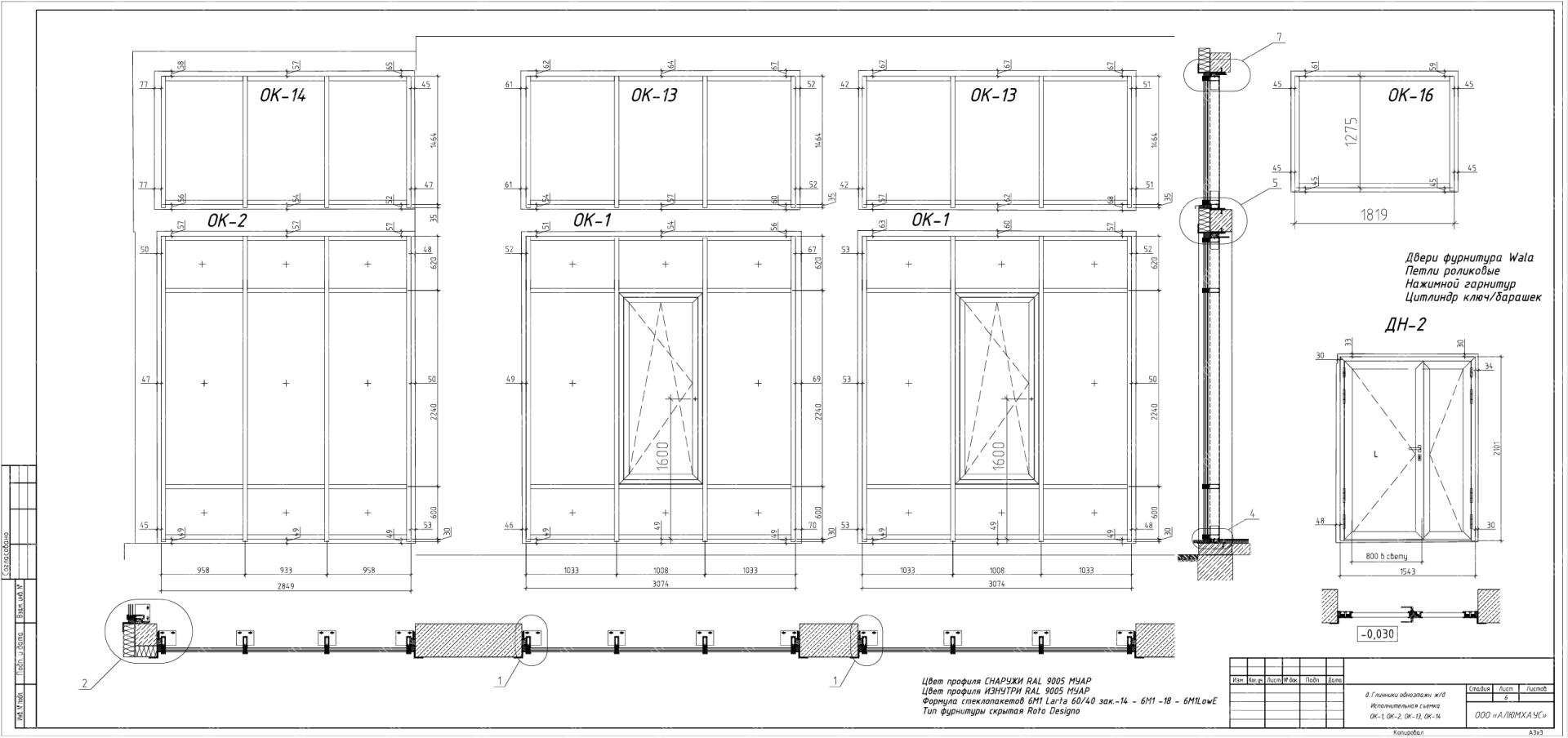
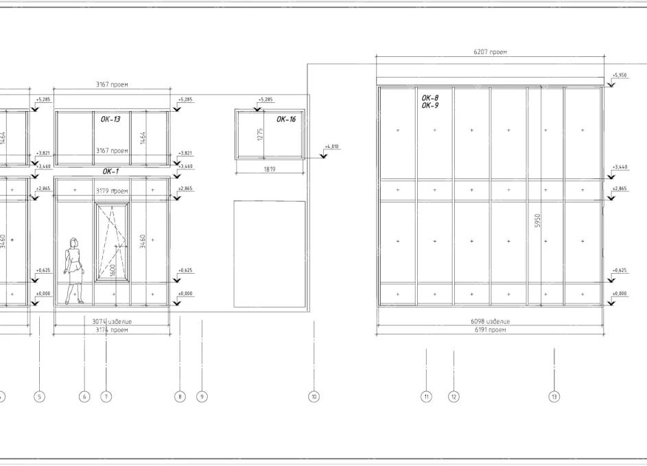
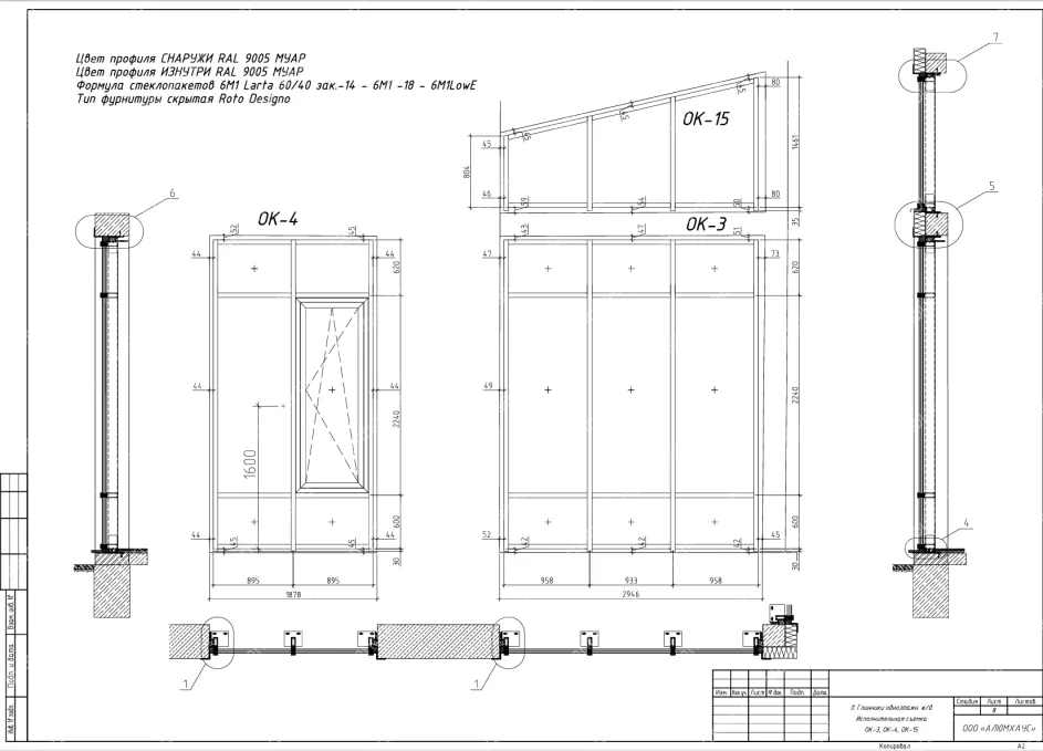
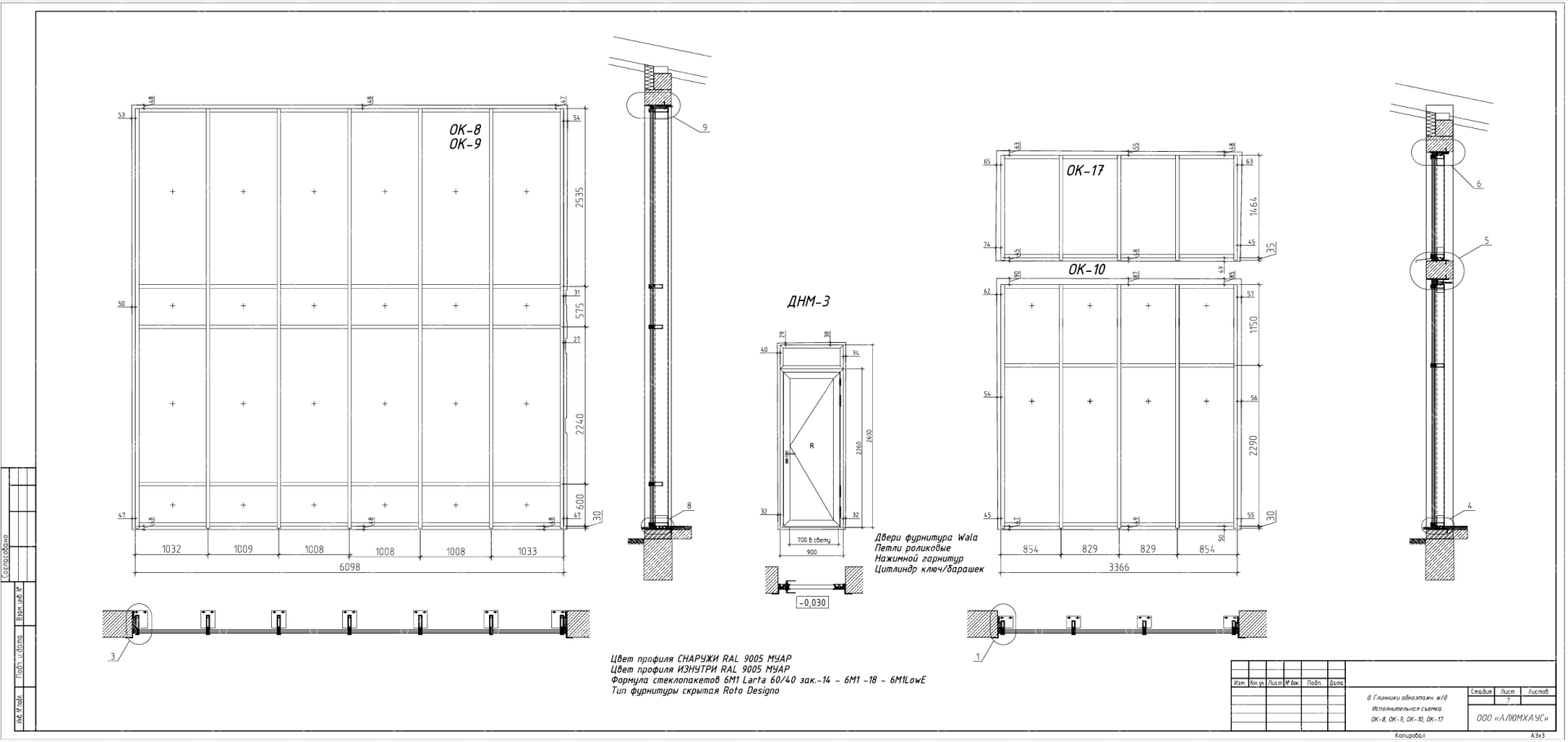
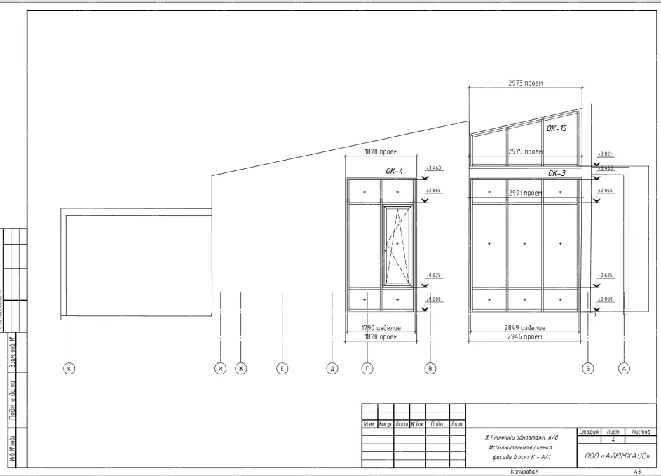
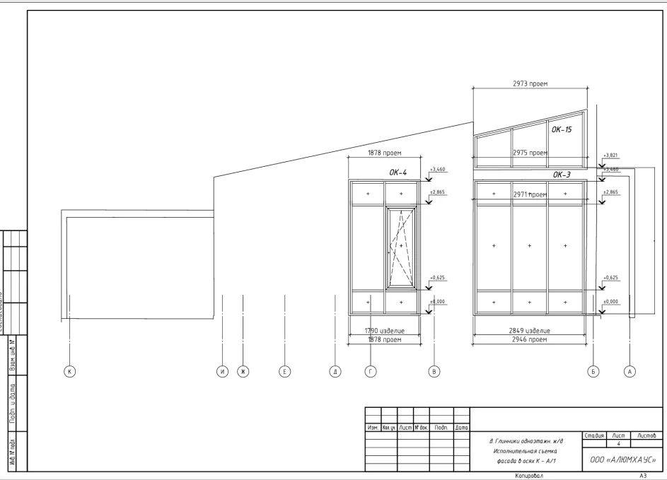
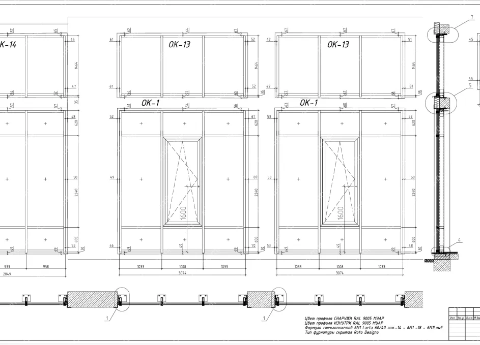
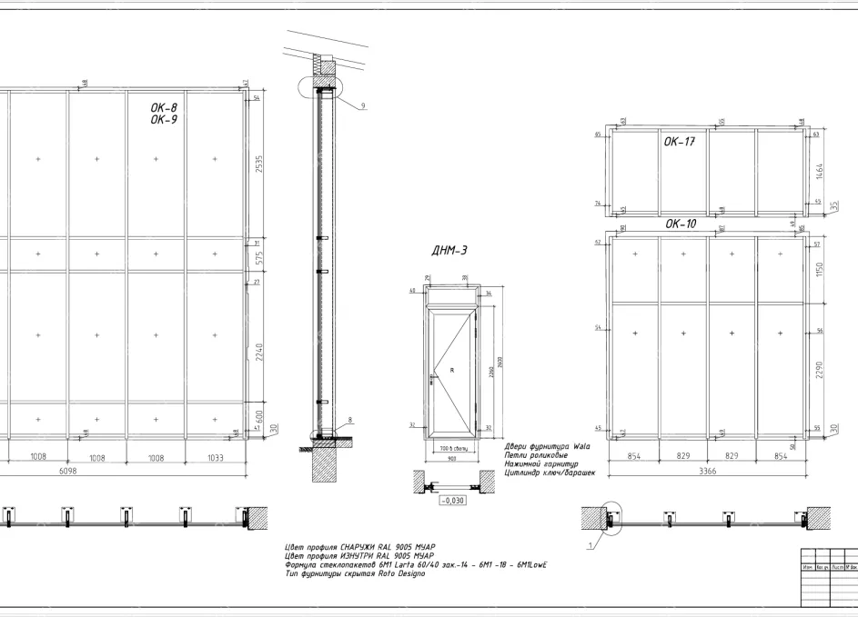
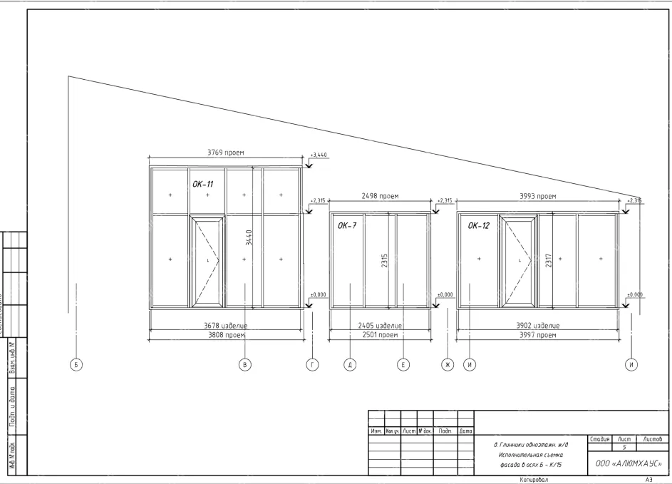
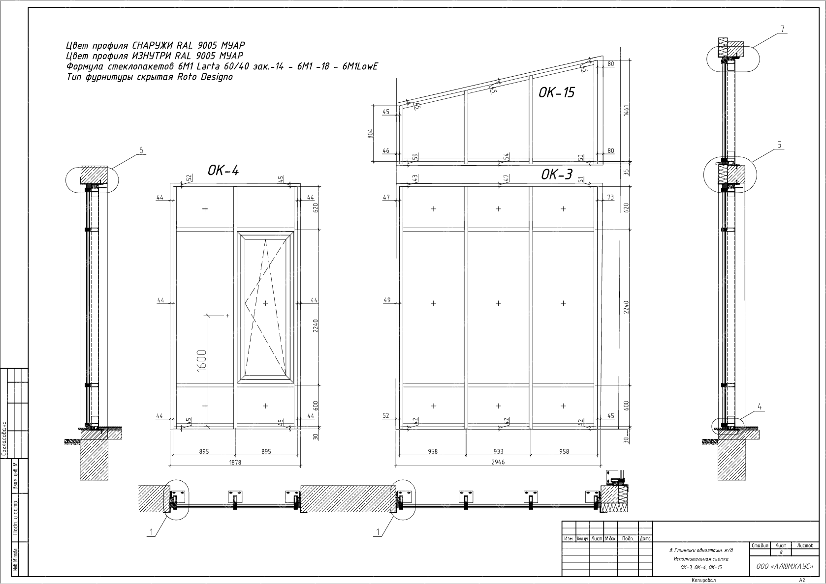
На чертежах представлены планы и фасады с осями, привязками и высотными отметками, отражающие расположение фасадных модулей и проемов. Даны развертки стоечно‑ригельной решетки с шагом элементов, параметрами стеклопакетов и узкими линиями стыков. Приложена спецификация профилей Alutech F50 и оконно‑дверных элементов W72 с перечнем фурнитуры и заполнений.

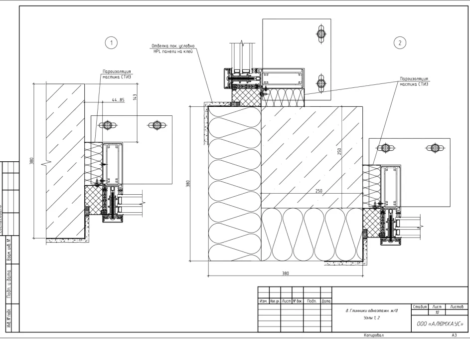
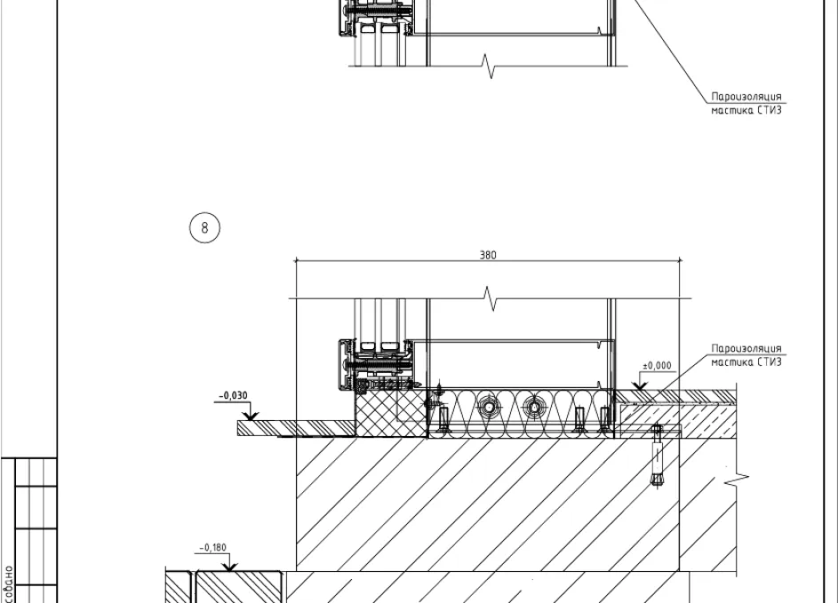
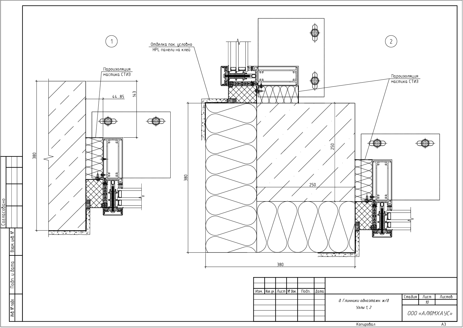
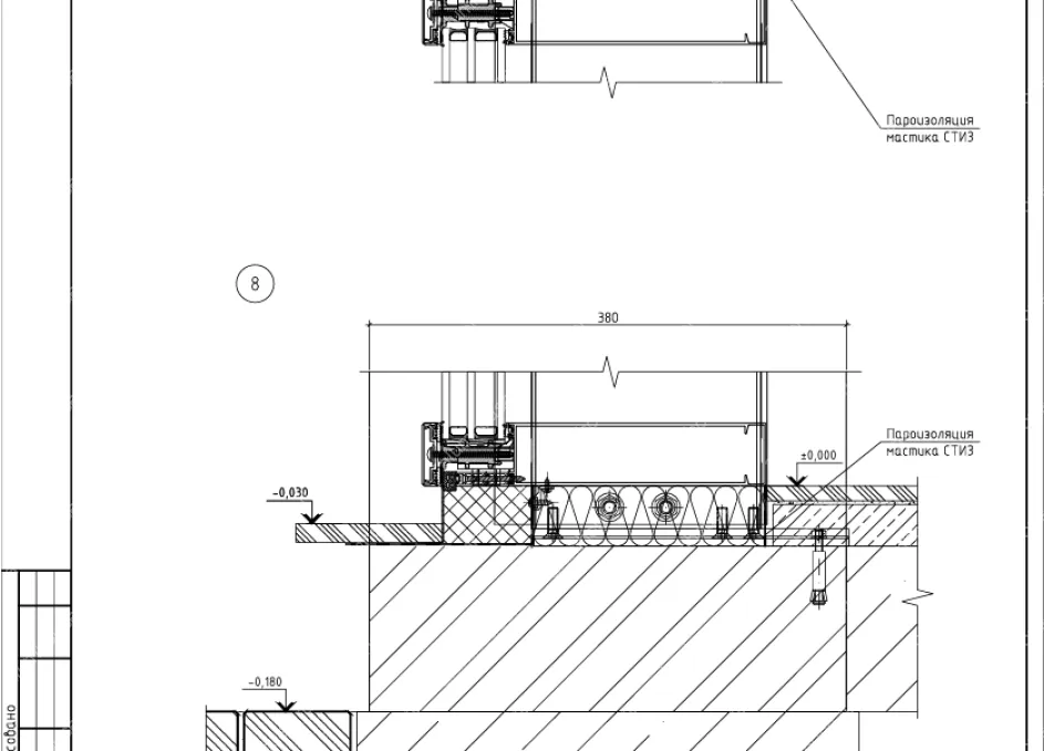
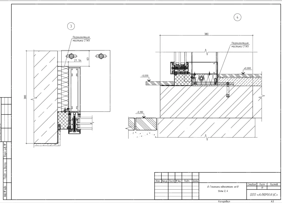
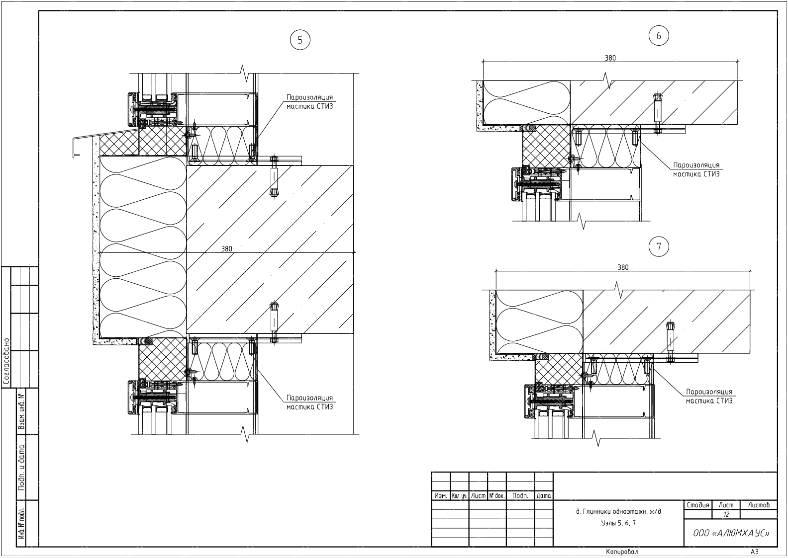
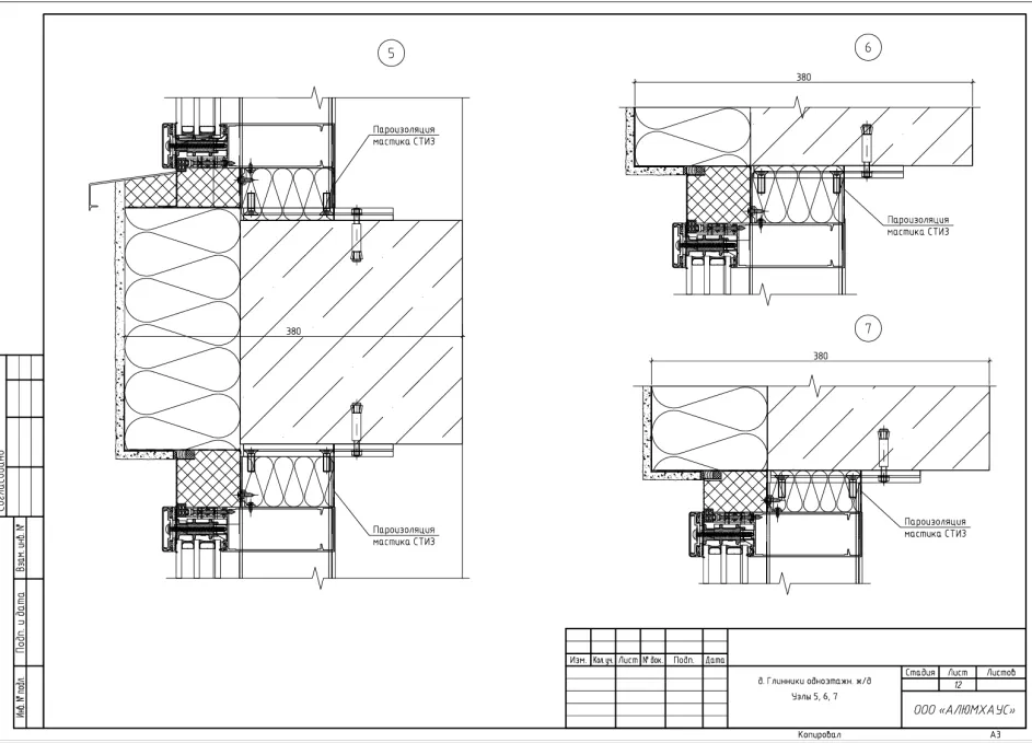
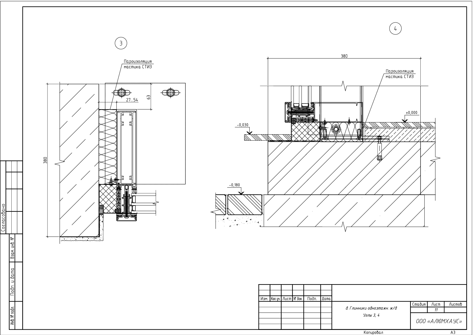
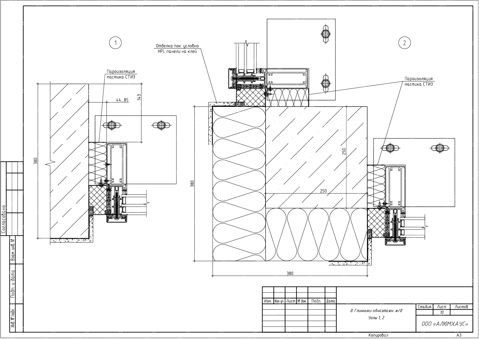
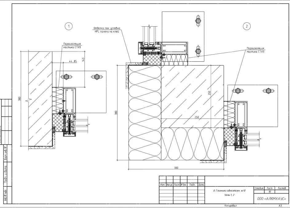
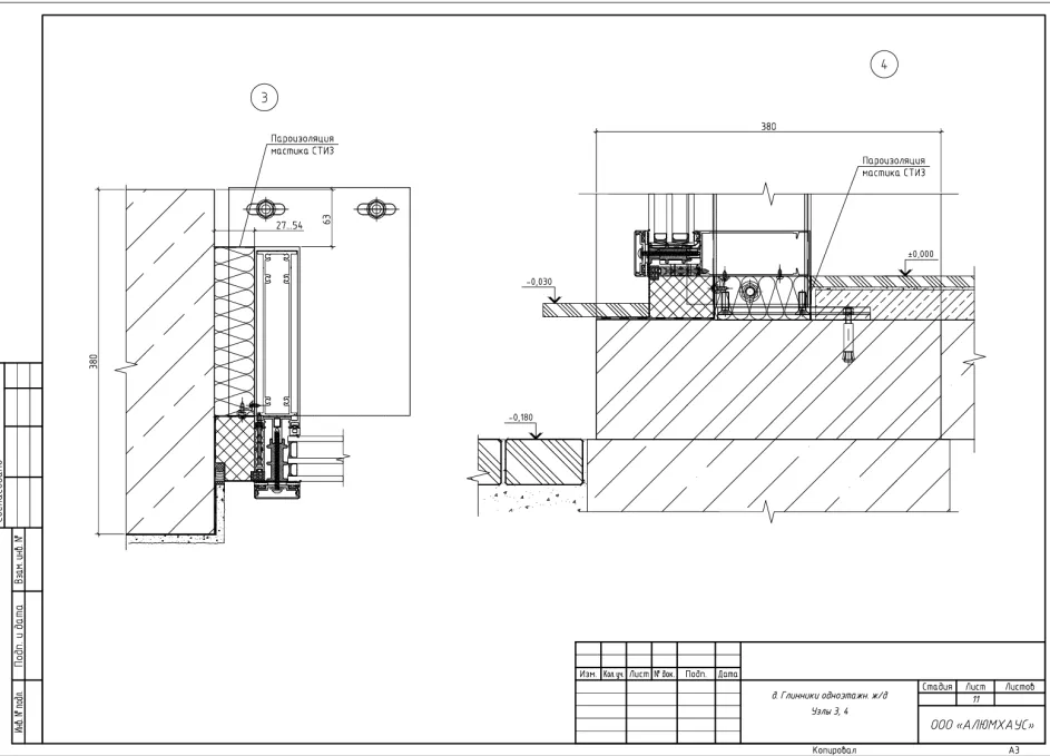
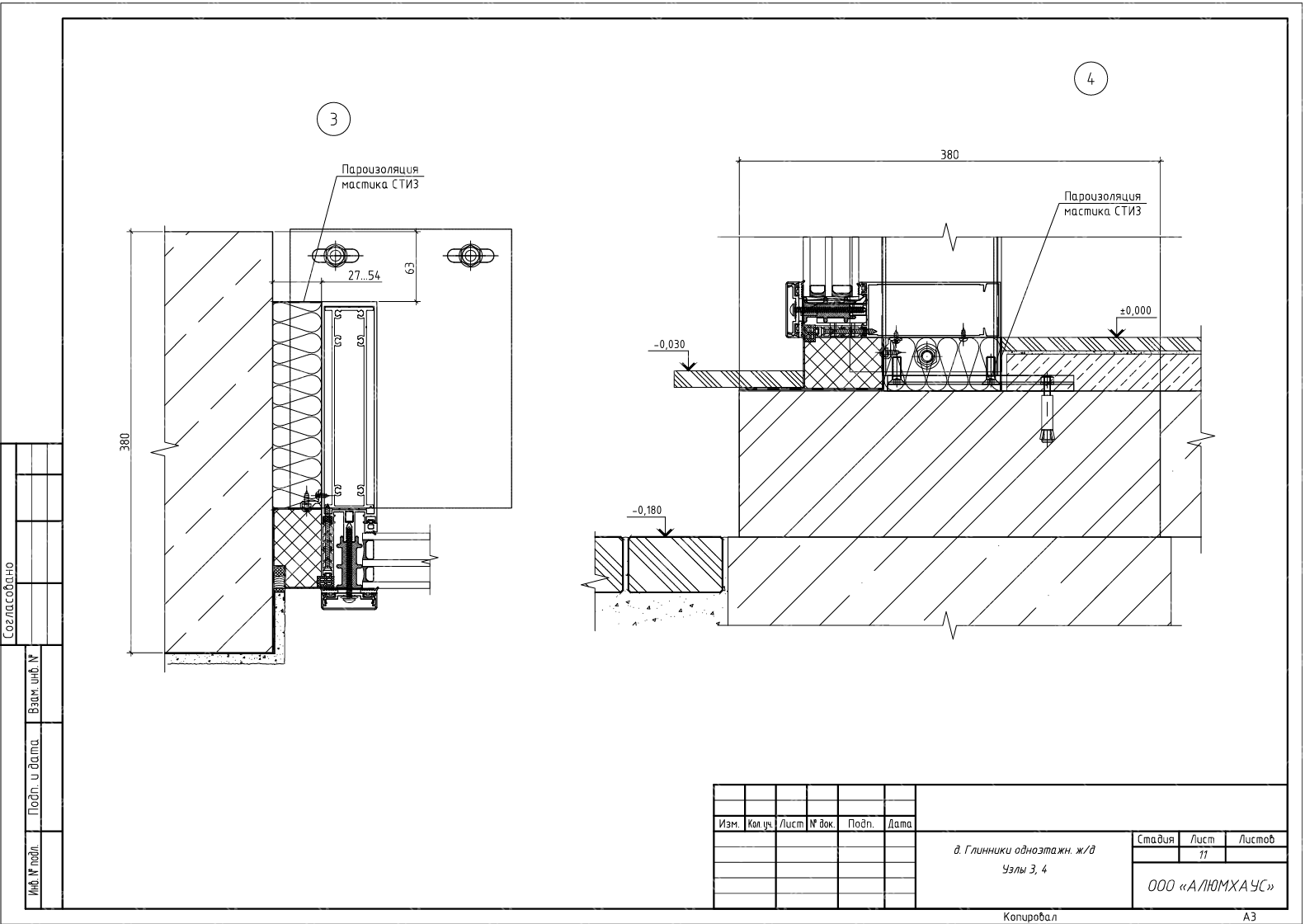
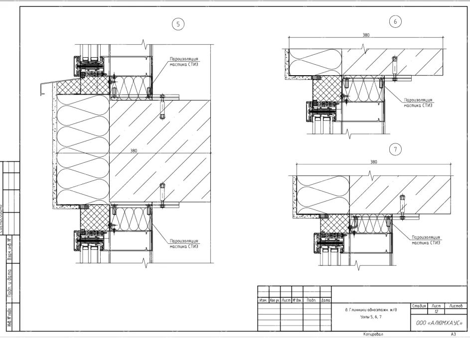
Узлы примыканий детализируют соединения к стенам и перекрытиям, сопряжение фасада с проемами W72, опорные и компенсирующие профили. Приведены разрезы по узлам отлива, прижимов и термовставок, схемы водоотвода и контуры герметизации. Документация включает ведомости материалов, лист последовательности монтажа и требования к допускам для точного изготовления и надежной сборки на объекте.

От идеи до воплощения
этапы реализации

/01
Консультация специалиста
Консультант поможет Вам выбрать наиболе подходящий для Вас вариант.
/02
Проведение замеров
Замерщик приедет к Вам в удобное для вас время и снимет все необходимые размеры для производства.
/03
Производство
В производственной мастерской изготовят материалы точно по вашим размерам.
/04
Монтаж
Специалисты произведут монтаж в любой удобный для Вас день.
/05
Гарантия
Если вдруг обнаружится дефект, наши мастера оперативно устранят неисправность!

Посмотрите другие проекты

Выполнено строительство трёхскатного металлического навеса со стеклом в загородном доме.
Адрес объекта
по запросу
Срок
35 рабочих дней
Площадь
48 м2 м2
Фасадное остекление с вентилируемым фасадом - это конструктивная система, которая консолидировалась и стала очень популярной среди архитекторов и подрядчиков, в основном благодаря их высокому качеству, эстетическим возможностям и многочисленным преимуществам.
Срок
50 рабочих дней
Беседка со стеклянной крышей - это идеальное решение для создания комфортного и уютного отдыха на свежем воздухе.
Тёплые раздвижные дверные конструкции идеально вписываются в фасад здания, не нарушая общей концепции. Благодаря своему типу открыванию, позволяет открыть проёмы на 1/2.
Срок
45 рабочих дней