+7 495 665 82 99 +7 926 253 40 88 alumhouse@mail.ru
Московская обл., го Красногорск, пгт Путилково, БЦ Гринвуд (GREENWOOD), стр. 23, этаж 3, офис № 160
Пн-Пт 9:00-18:00

Проект остекления стеклянного навеса по готовому деревянному каркасу

Линии

Описание проекта

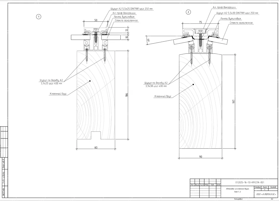
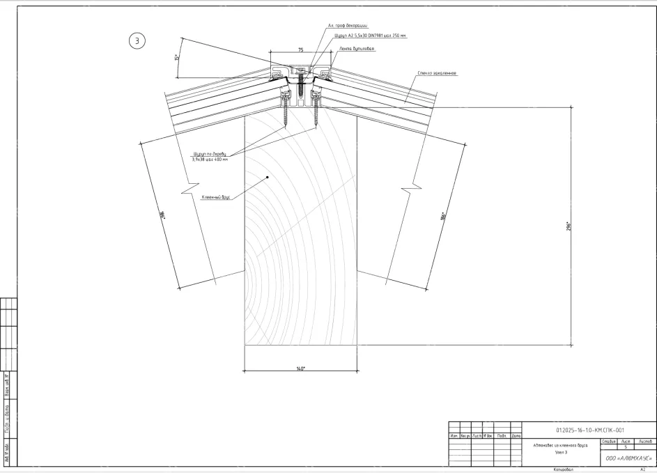
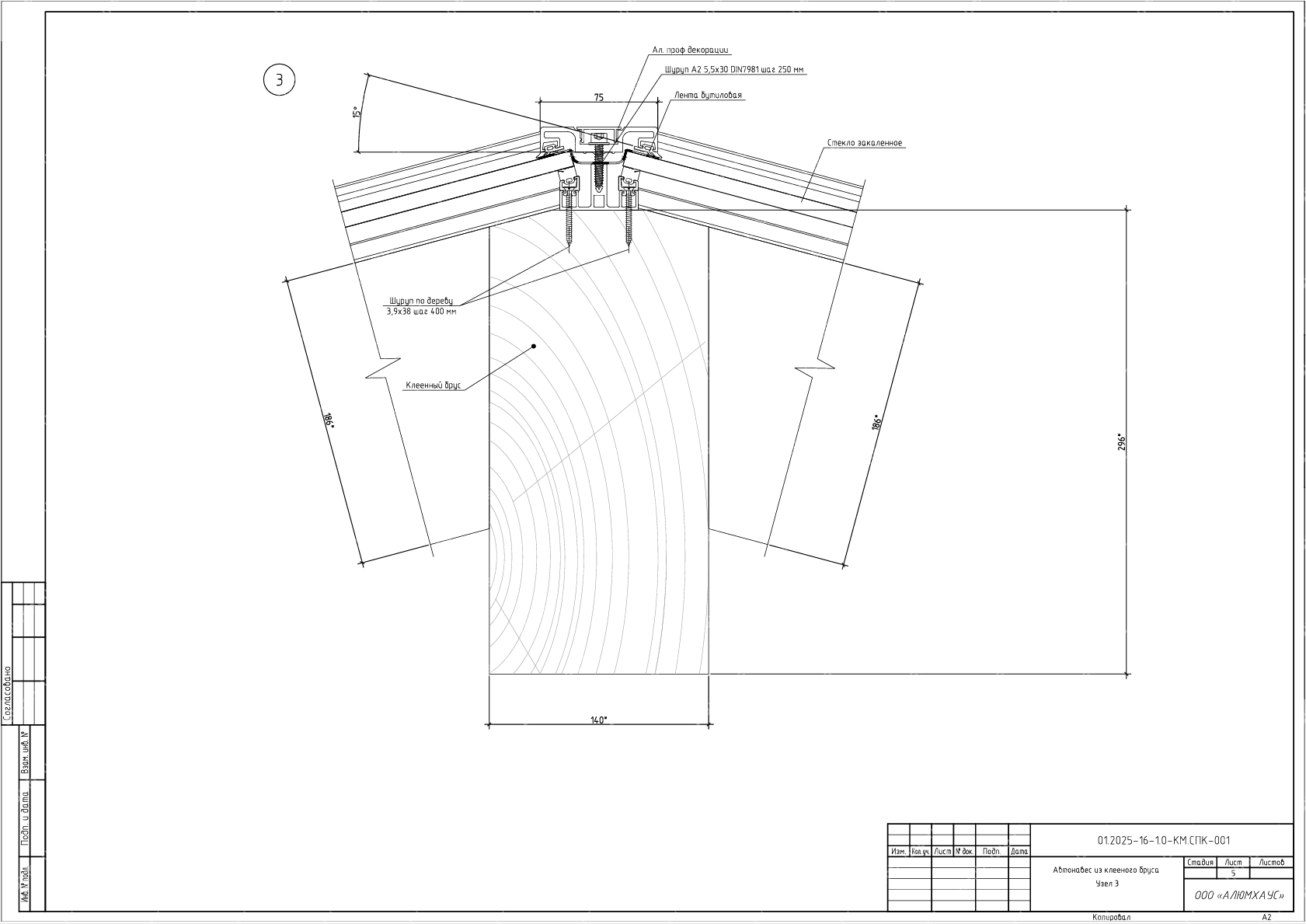
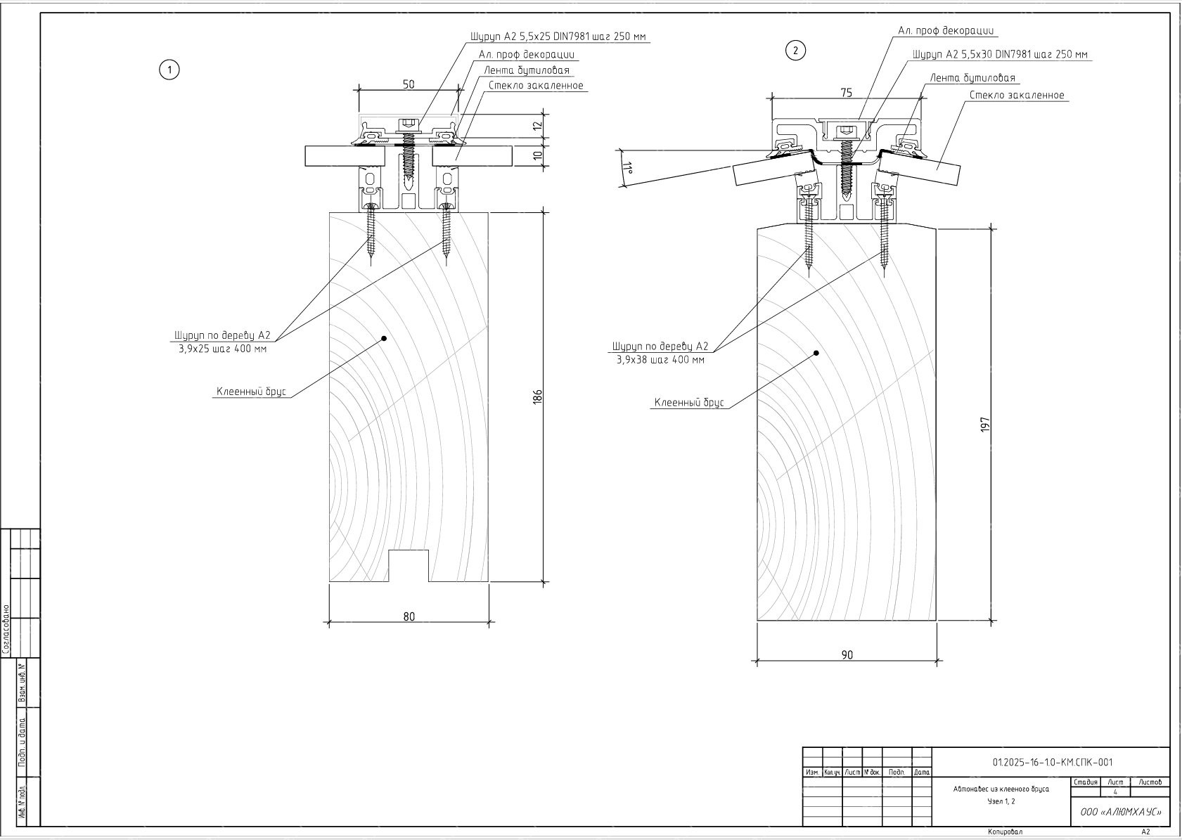
Проект остекления стеклянного навеса по готовому деревянному каркасу представляет собой комплект инженерных чертежей и пояснений для интеграции стеклянной кровли в существующую систему из клеёного бруса. В документации фиксируются геометрия пролётов, шаг стропил и расчётные нагрузки для корректного подбора стекла и крепёжных решений. Цель проекта - обеспечить безопасное, герметичное и визуально лёгкое остекление без изменения архитектуры каркаса.

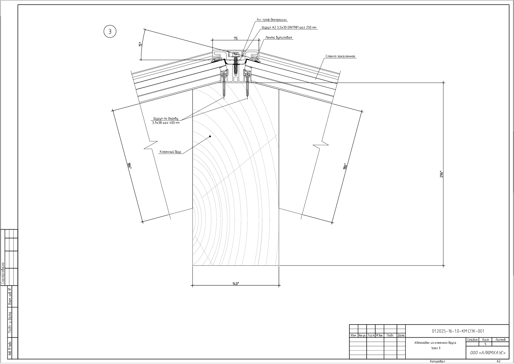
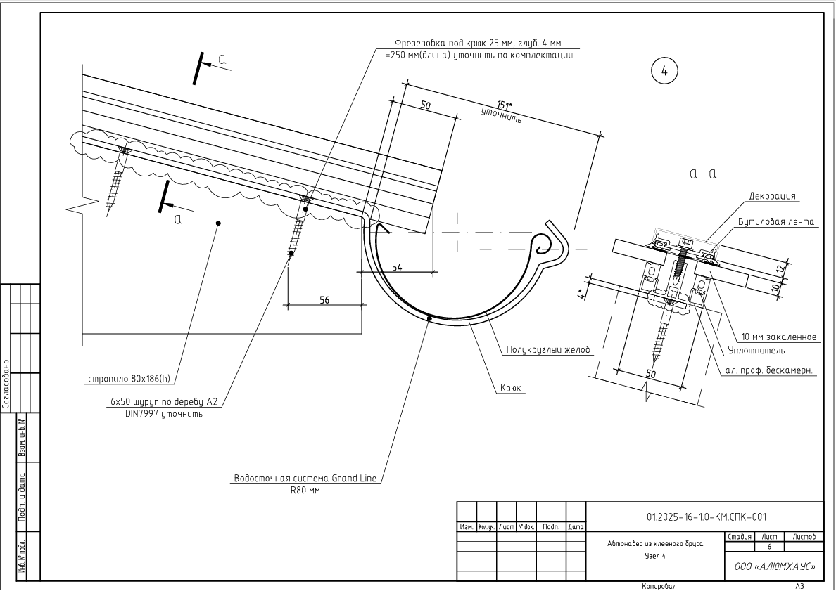
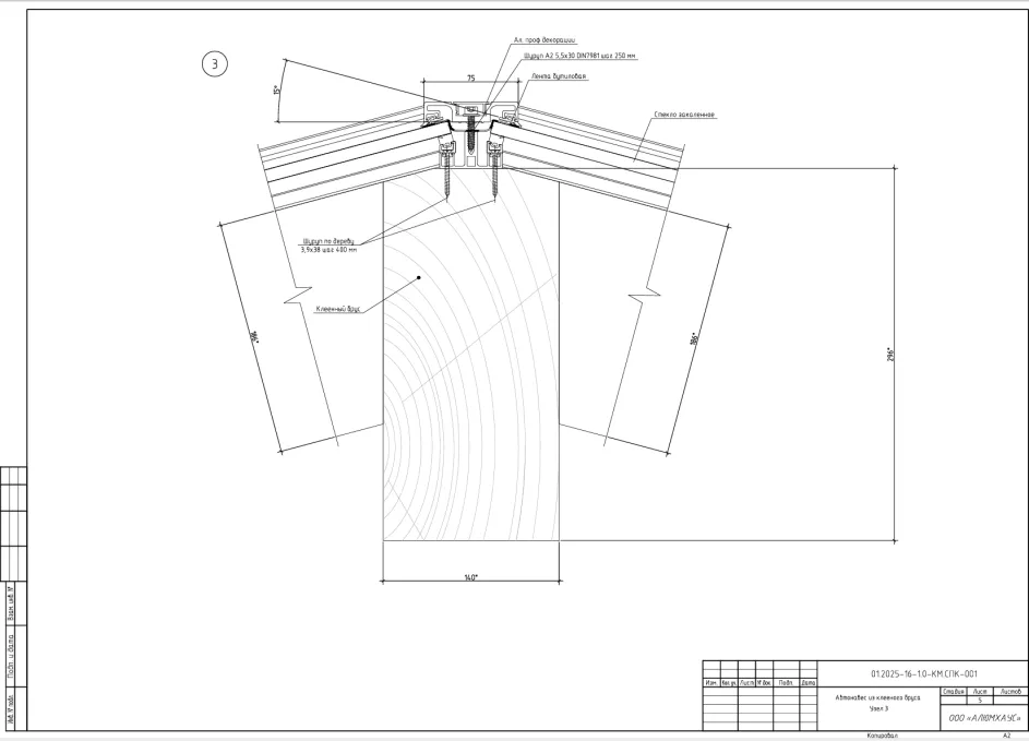
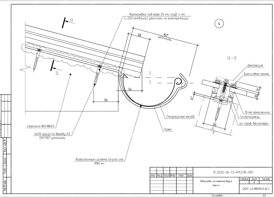
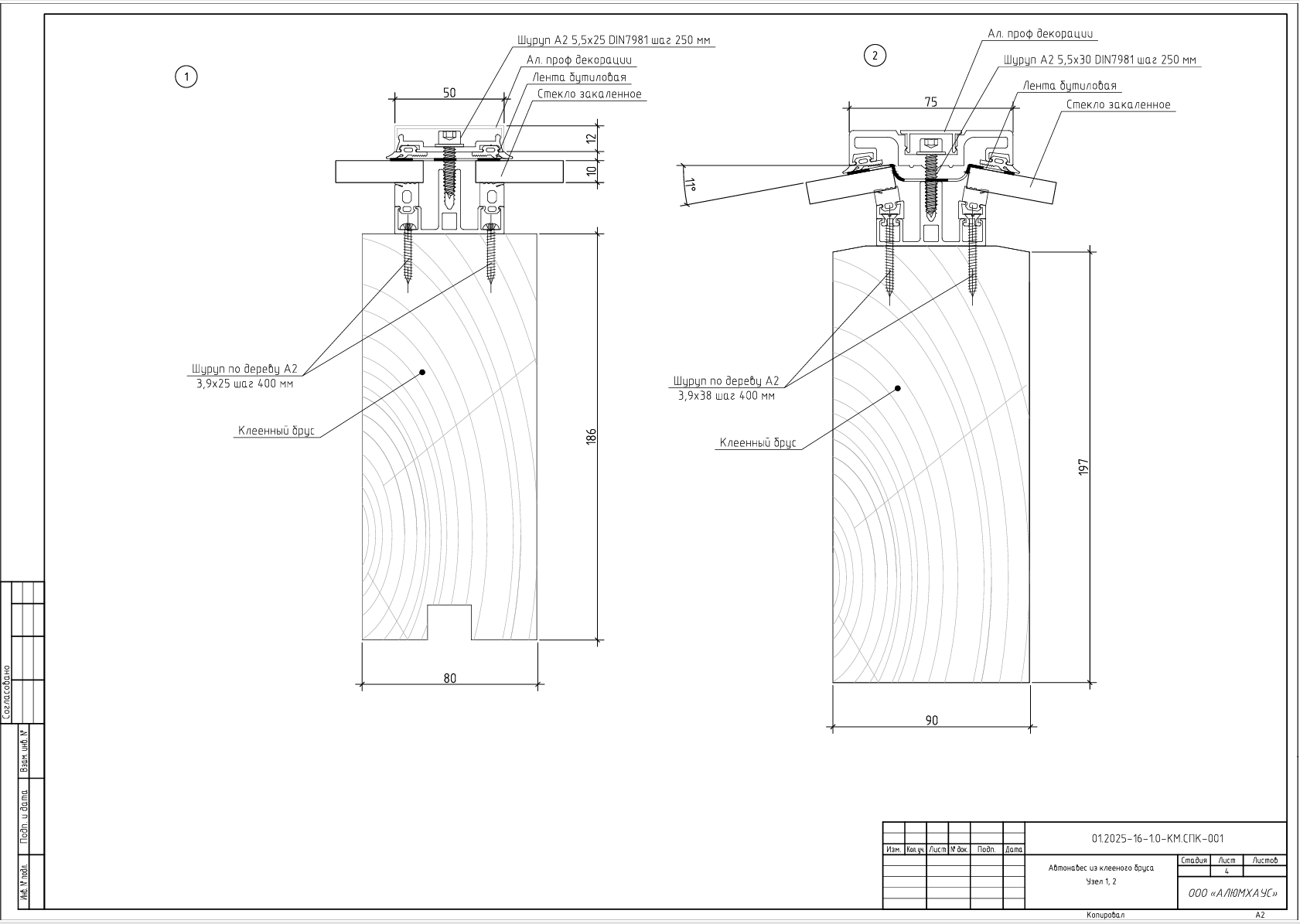
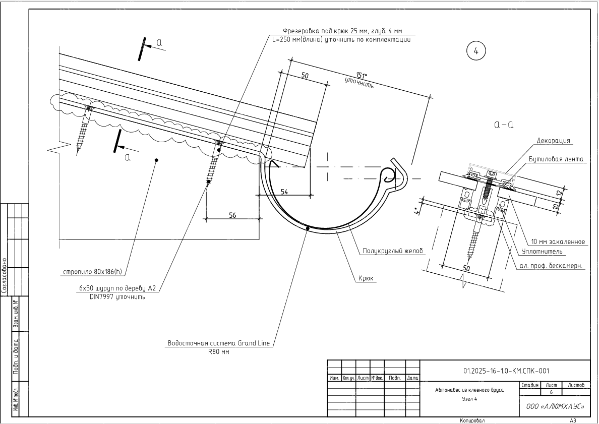
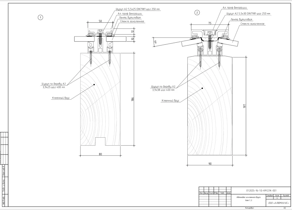
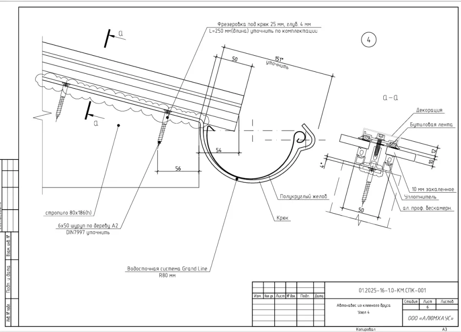
На чертежах представлены план кровли с нумерацией карт остекления, развертки по осям и спецификация стекла с указанием формата, толщины и типа обработки. Детально проработаны узлы примыканий к деревянным рёбрам, решения конька и карнизной линии, а также схемы водоотвода и контуры герметизации швов. Даны разрезы по опорным и промежуточным точкам крепления, включая допуски, шаблоны раскроя и требования к сверлению/анкеровке, исключающие ослабление древесины.

Документация дополняется ведомостью материалов и крепежа, картой контроля геометрии и последовательностью монтажных операций. Приведены рекомендации по установке прижимных профилей и точечных держателей с учётом температурных деформаций и дренажа. Итоговый комплект обеспечивает точное производство, аккуратный монтаж и долговечную эксплуатацию стеклянного навеса.

От идеи до воплощения
этапы реализации

/01
Консультация специалиста
Консультант поможет Вам выбрать наиболе подходящий для Вас вариант.
/02
Проведение замеров
Замерщик приедет к Вам в удобное для вас время и снимет все необходимые размеры для производства.
/03
Производство
В производственной мастерской изготовят материалы точно по вашим размерам.
/04
Монтаж
Специалисты произведут монтаж в любой удобный для Вас день.
/05
Гарантия
Если вдруг обнаружится дефект, наши мастера оперативно устранят неисправность!

Посмотрите другие проекты

Этот стеклянный навес и ограждение - идеальное дополнение к зимнему саду. Такую площадку можно использоваться круглый год, несмотря на погоду, для любых целей.
Срок
25 рабочих дней
Остекление навеса по готовому каркасу выполнено закалённым триплексом с аккуратными прижимными профилями, обеспечивая лёгкий вид, защиту от непогоды и долговечность.
Адрес объекта
КП Николино, Одинцовский р-н.
Срок
28 рабочих дней
Площадь
75 м2
Остекление дома алюминиевыми конструкциями в стиле хай-тек является современным и элегантным решением, которое придает вашему дому уникальный и современный вид.
Раздвижные стеклянные стены для беседки обеспечивают панорамный вид и защиту от погоды, а створки плавно сдвигаются по направляющим, экономя место и открывая проём на большую ширину.
Срок
20 рабочих дней