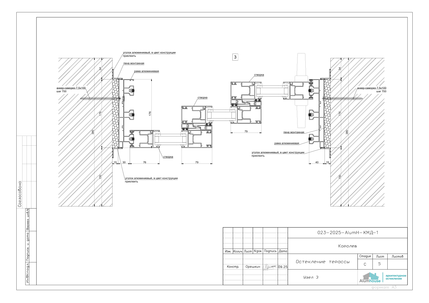
Чертежи и узлы примыканий раздвижных дверей для террасы Alumil 45000

Линии

Описание проекта

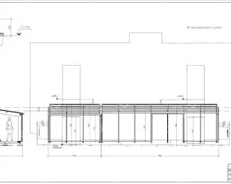
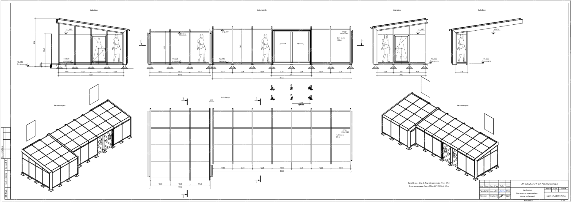
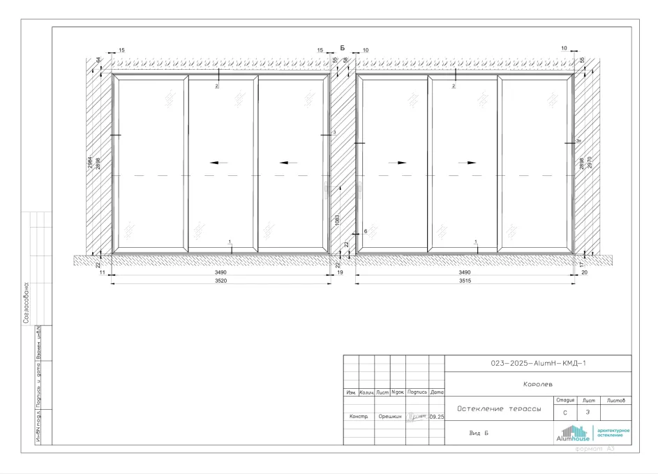
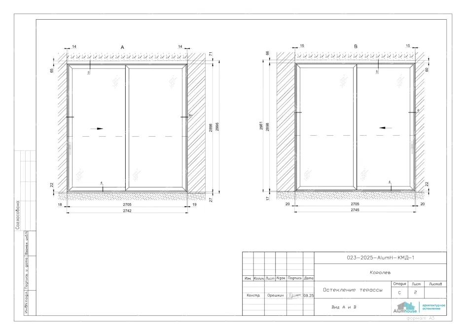
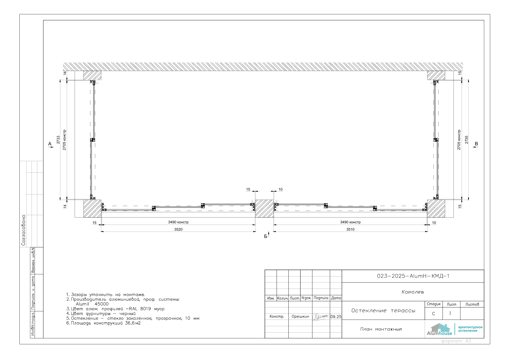
В данном проекте предоставлен комплект инженерной документации для проектирования и монтажа раздвижных и подъемно‑раздвижных дверей на базе системы SMARTIA M45000 в террасных проемах. В материалах отражены архитектурные планы проемов, типологии схем открывания и требования к посадочным размерам. Цель проекта - обеспечить корректную увязку проемов, профилей и стеклопакетов для надежной работы системы в сезонных и круглогодичных зонах.

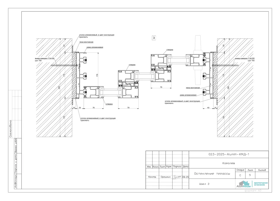
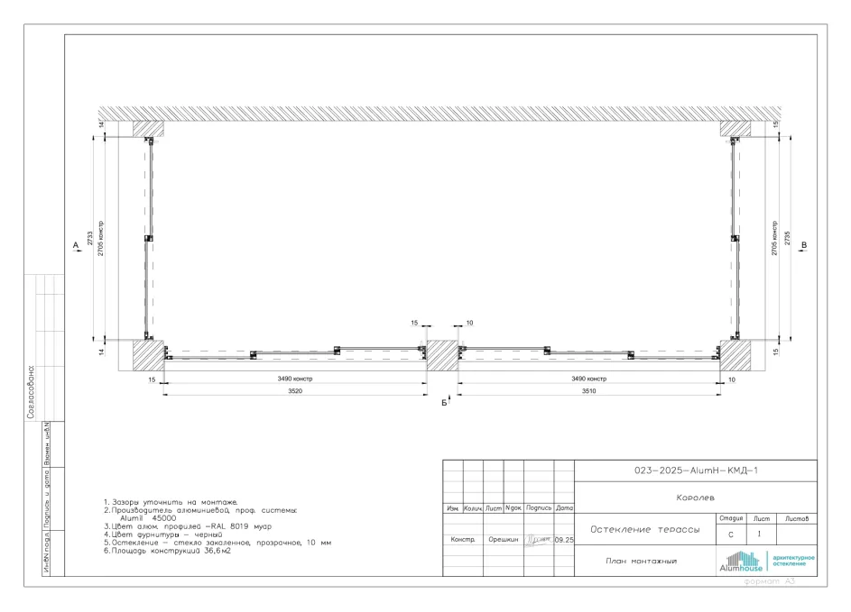
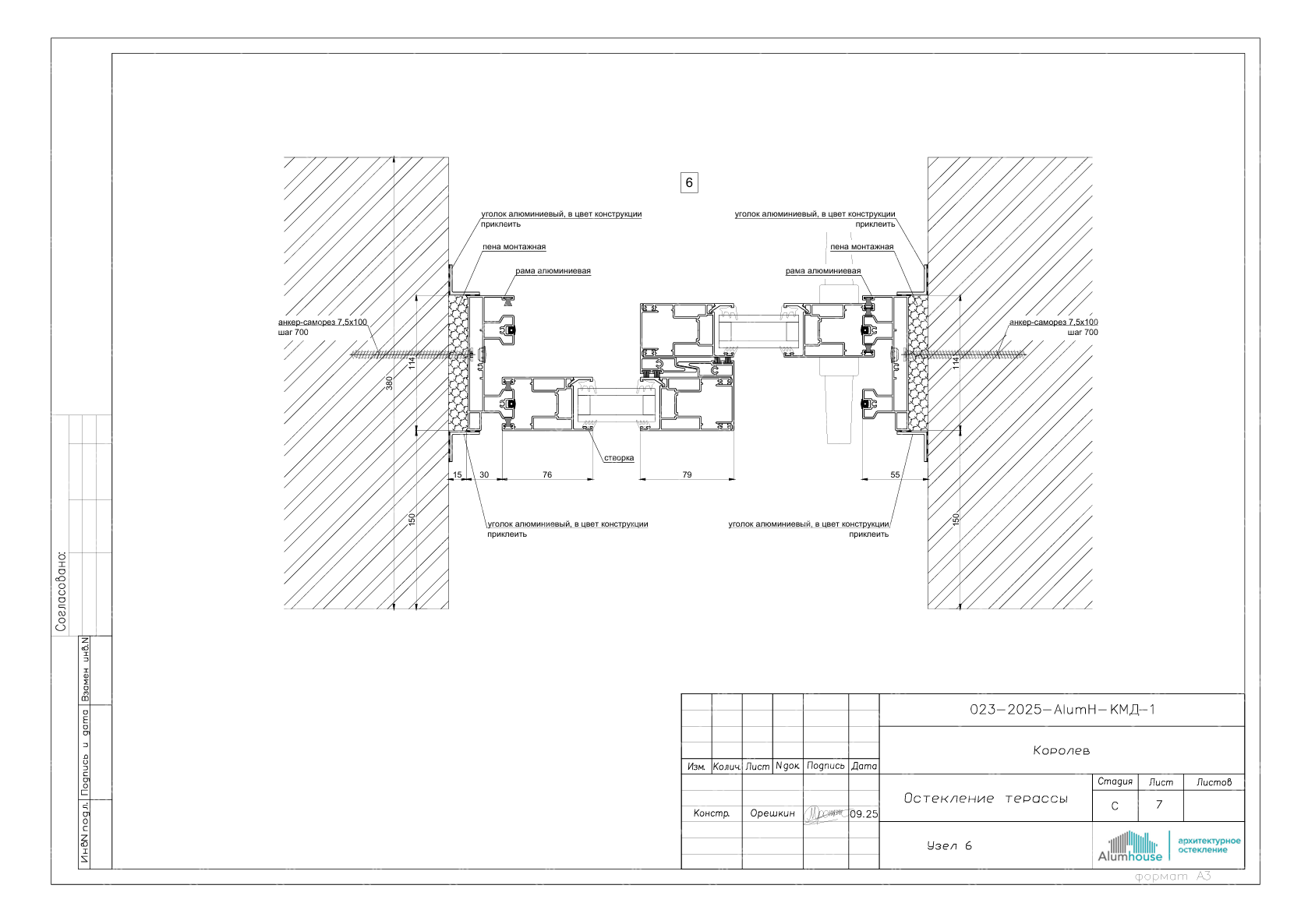
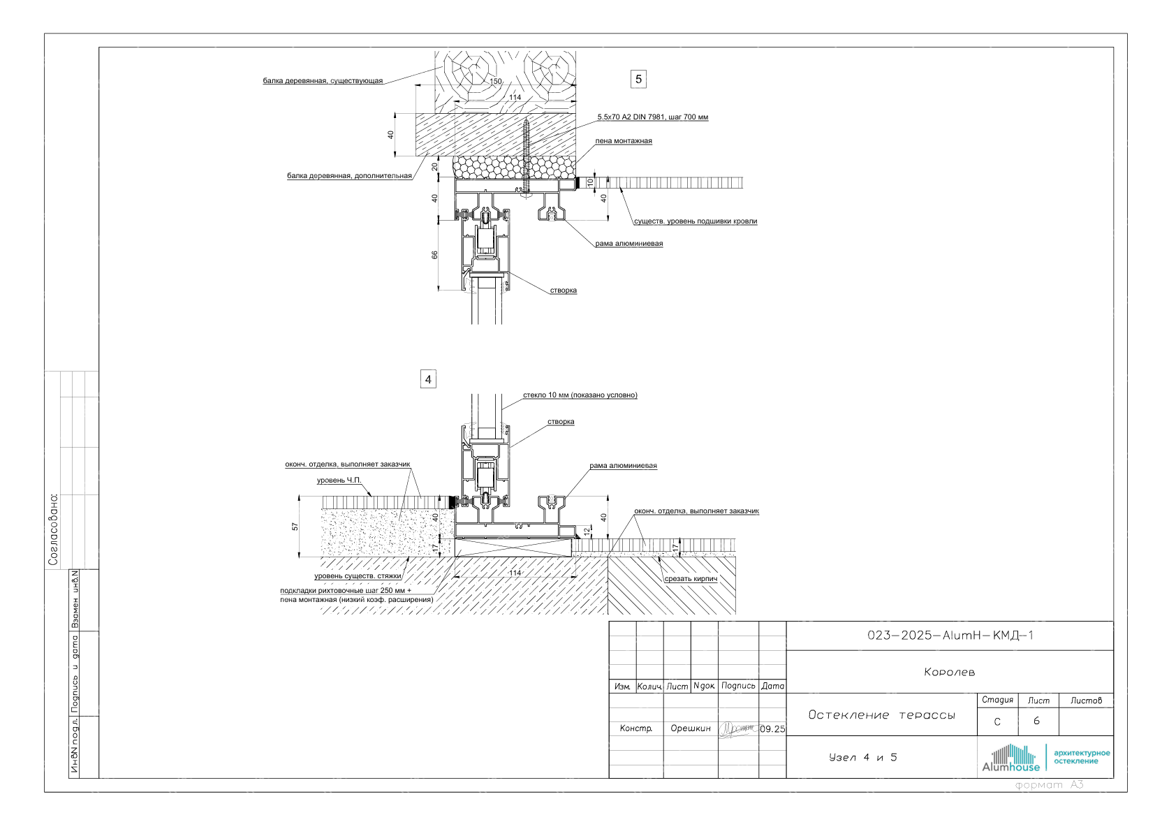
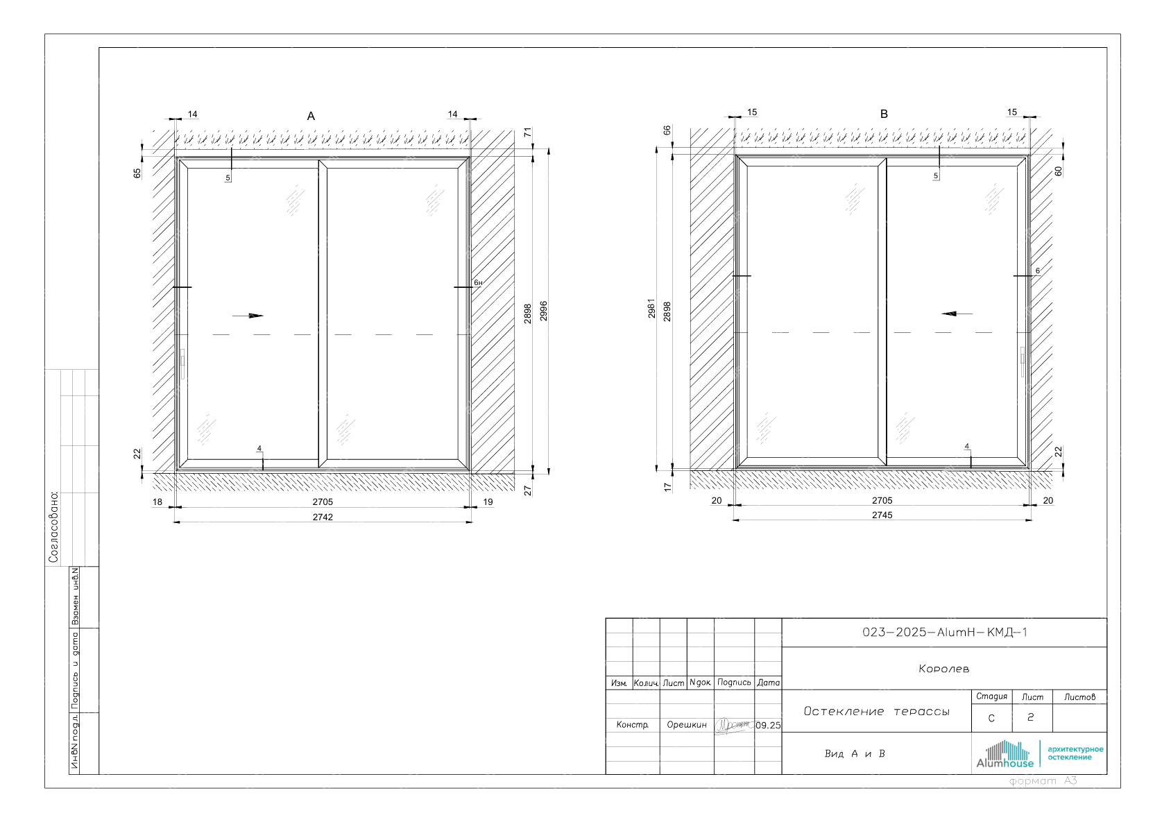
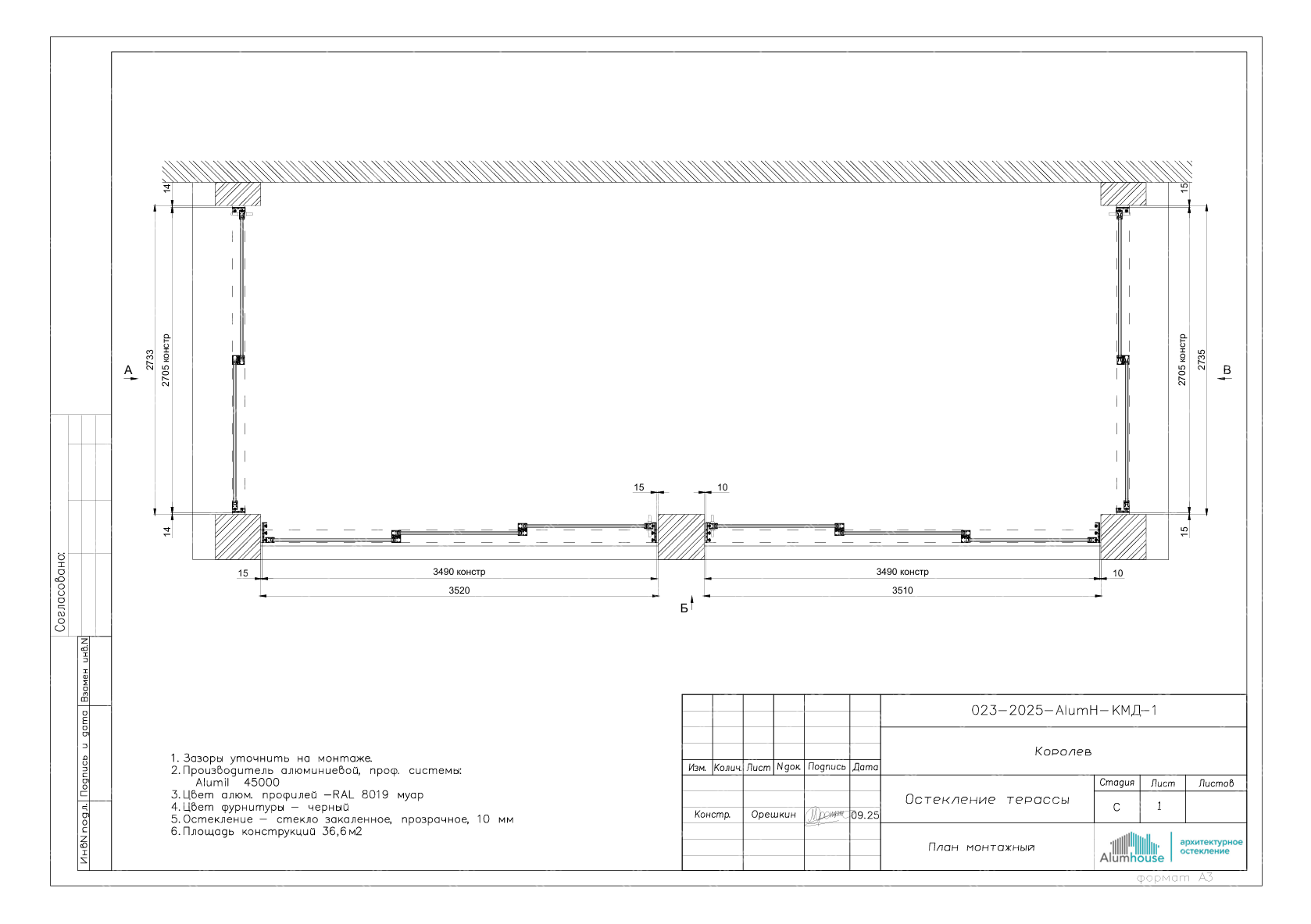
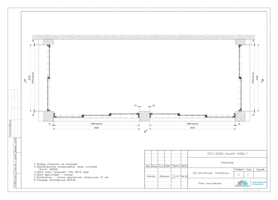
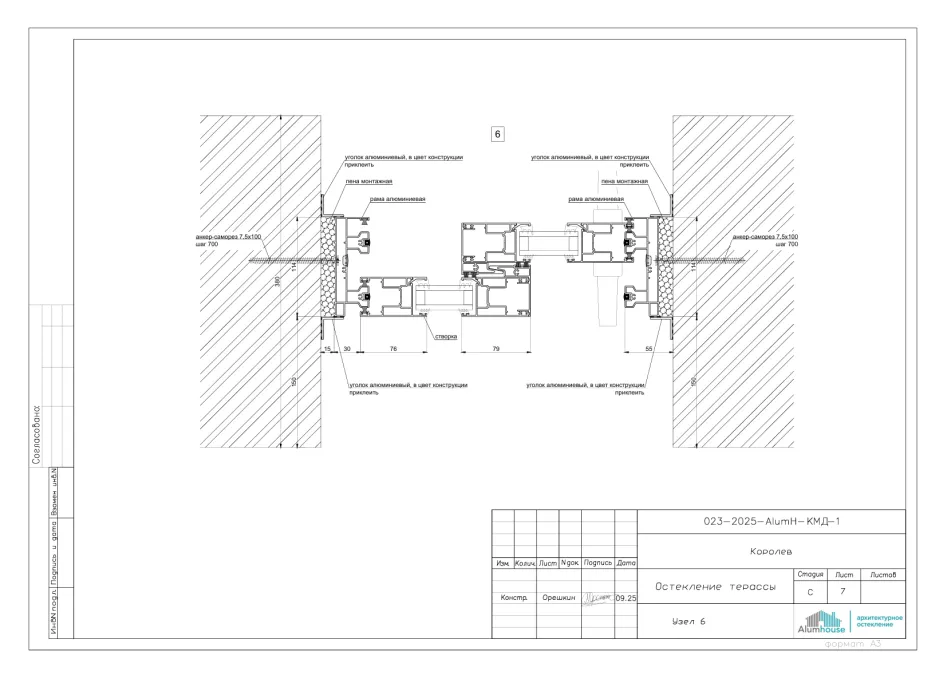
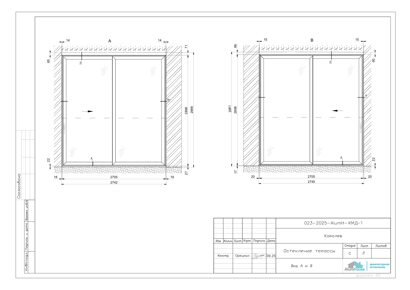
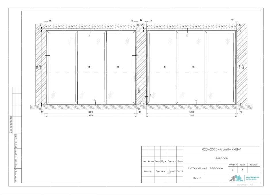
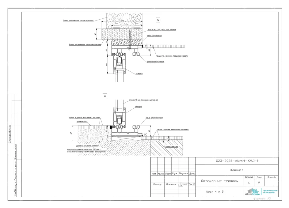
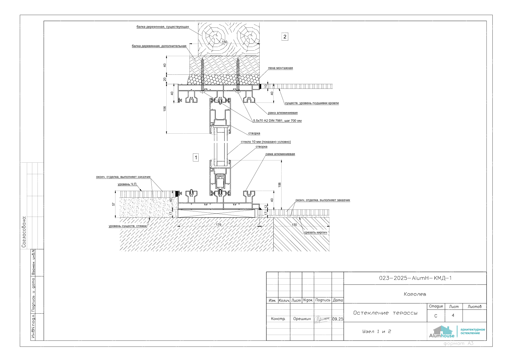
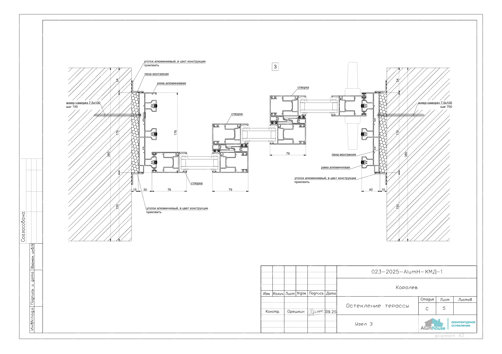
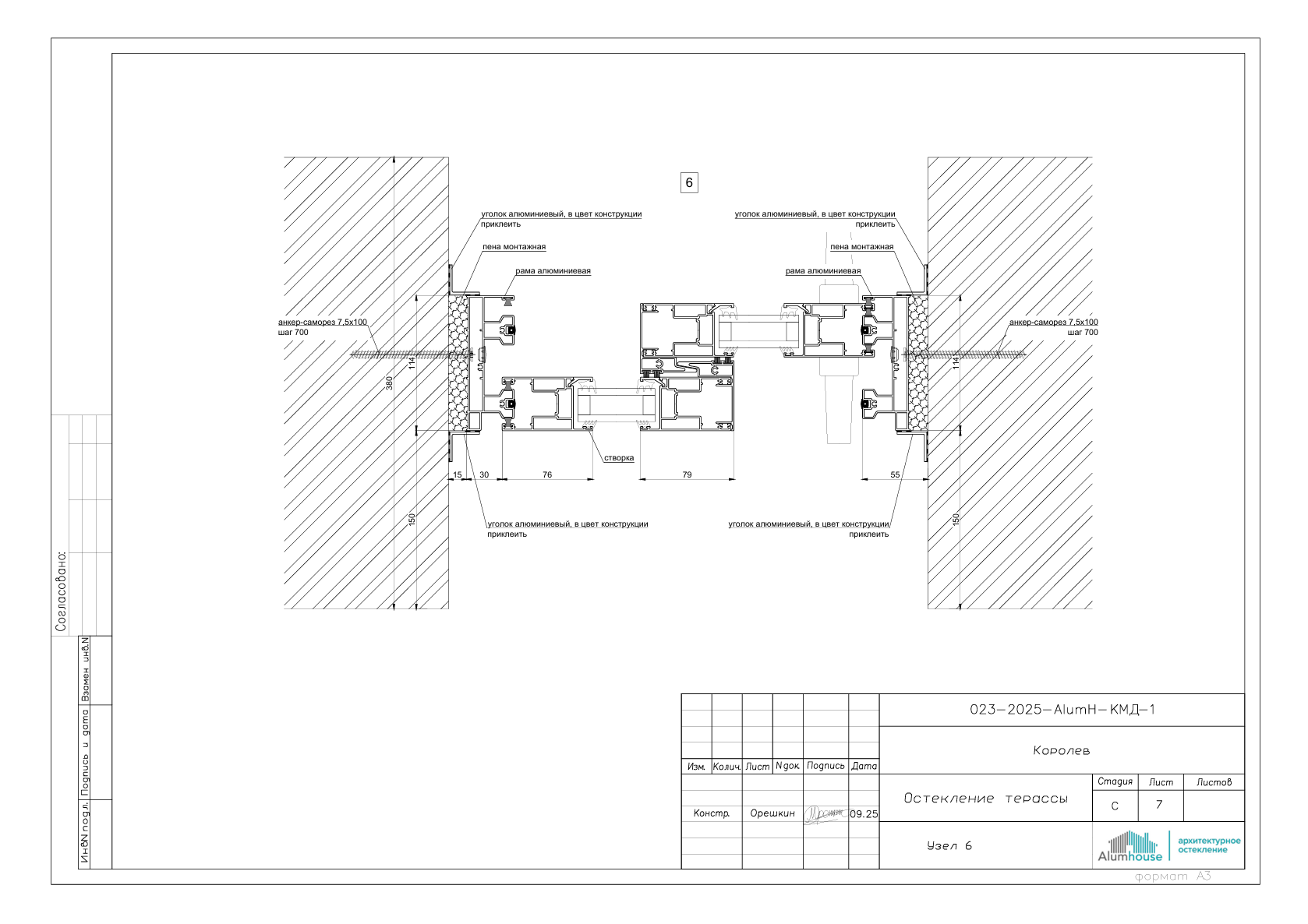
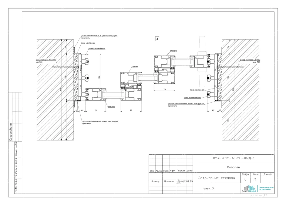
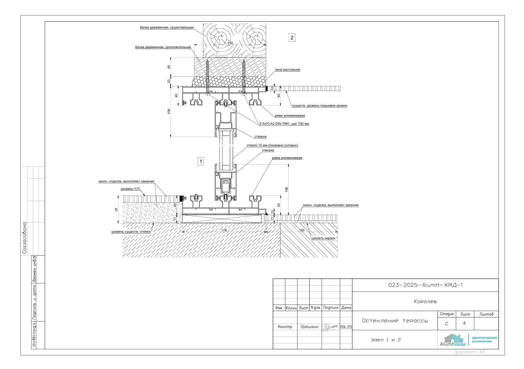
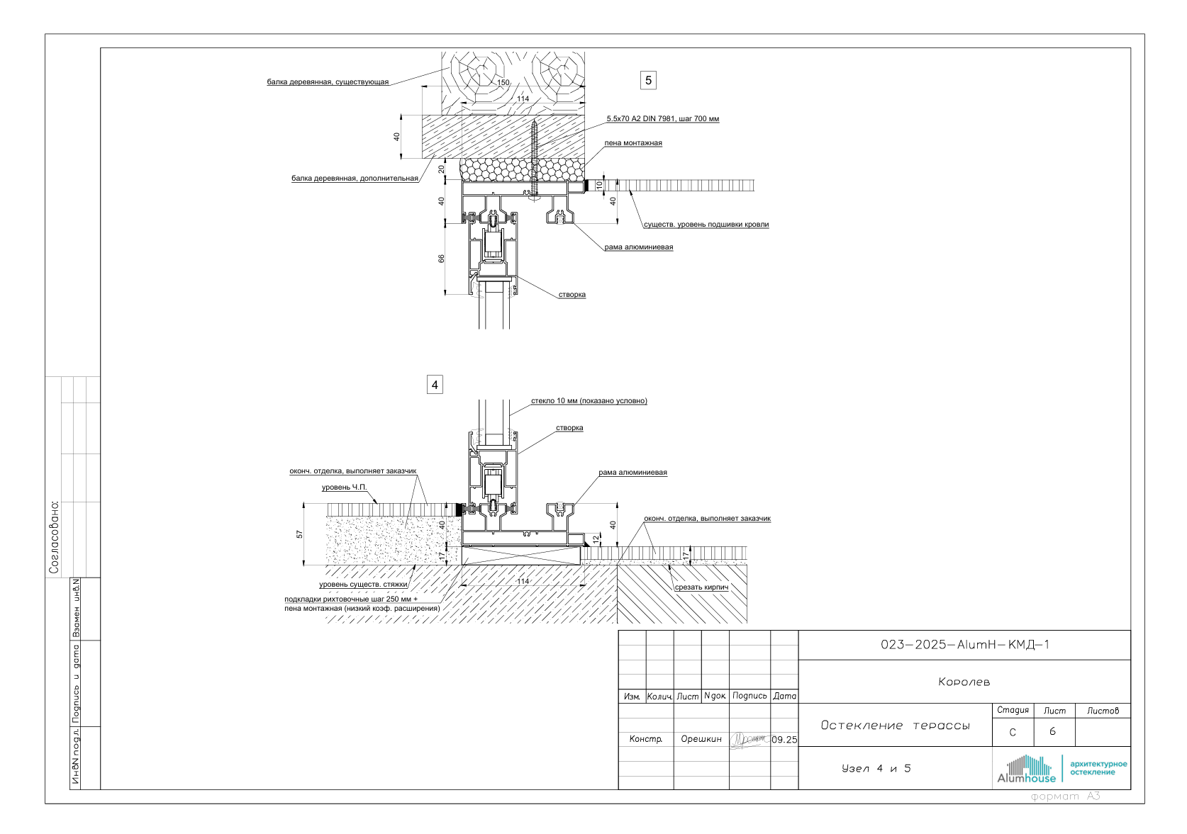
На чертежах предоставлены узлы примыканий к полу с низким порогом, к стенам и перекрытиям, а также решения центрального стыка с “узким” импостом. Приведены разрезы по направляющим и створкам с указанием толщин стеклопакетов, глубин рам и типов уплотнений, включая щеточные и EPDM‑контур. Включены карты раскроя, схемы крепления, таблицы дренажных отверстий и рекомендации по компенсационным зазорам и герметизации.

Документация содержит спецификацию профилей, фурнитуры и крепежа, а также требования к водоотведению, воздухопроницаемости и ветровой устойчивости в соответствии с заявленными классами. Отдельным разделом даны инструкции по монтажу на объекте: последовательность операций, контроль геометрии, допуски и проверка работы створок. Ключевые слова: Alumil SMARTIA M45000, раздвижные двери, подъемно‑раздвижная система, узлы примыканий, низкий порог, центральный импост, направляющие, EPDM уплотнение, дренаж, схемы открывания, карты раскроя, спецификация профилей, терраса, стеклопакет.

От идеи до воплощения
этапы реализации

/01
Консультация специалиста
Консультант поможет Вам выбрать наиболе подходящий для Вас вариант.
/02
Проведение замеров
Замерщик приедет к Вам в удобное для вас время и снимет все необходимые размеры для производства.
/03
Производство
В производственной мастерской изготовят материалы точно по вашим размерам.
/04
Монтаж
Специалисты произведут монтаж в любой удобный для Вас день.
/05
Гарантия
Если вдруг обнаружится дефект, наши мастера оперативно устранят неисправность!

Посмотрите другие проекты

Цельностеклянное остекление тамбура - доступное решение, в котором сочетание высококачественной фурнитуры и стекла обеспечивает минималистичный вид, четкие линии и визуальную прозрачность. Отлично защищают ваш тамбур от плохих погодных условий.


Срок
20 рабочих дней
Складной тент из высококачественной технической ткани легко управляется с помощью автоматического или механического привода и позволяет быстро адаптировать степень затенения и открытости пространства под любые погодные условия.
Адрес объекта
Калужское шоссе, 45 км от МКАД.
Срок
35 рабочих дней
Установка стеклянного навеса требует профессионального подхода и соблюдения определённых технологий. Однако правильно установленный навес прослужит долгие годы, обеспечивая комфорт и уют на вашей террасе.
Адрес объекта
Московская область, деревня Мишуткино, КП Глаголево-парк
Срок
35 рабочих дней
Площадь
27 м2 м2
Остекление коттеджа с использованием тёплого алюминиевого профиля обеспечивает высокую тепло- и шумоизоляцию, надёжную защиту от внешних воздействий и современный внешний вид.
Срок
45 рабочих дней