+7 495 665 82 99 +7 926 253 40 88 alumhouse@mail.ru
Московская обл., го Красногорск, пгт Путилково, БЦ Гринвуд (GREENWOOD), стр. 23, этаж 3, офис № 160
Пн-Пт 9:00-18:00

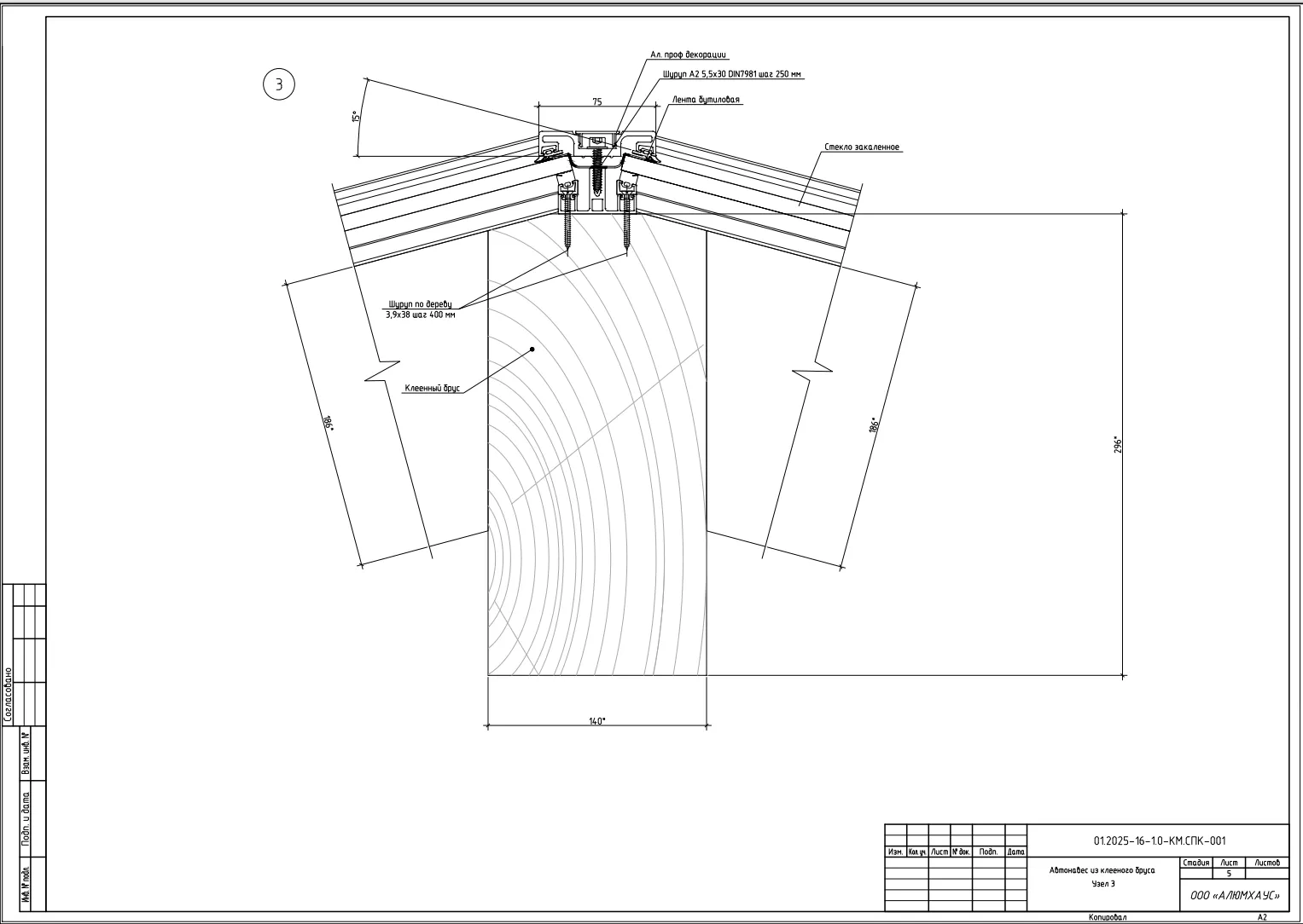
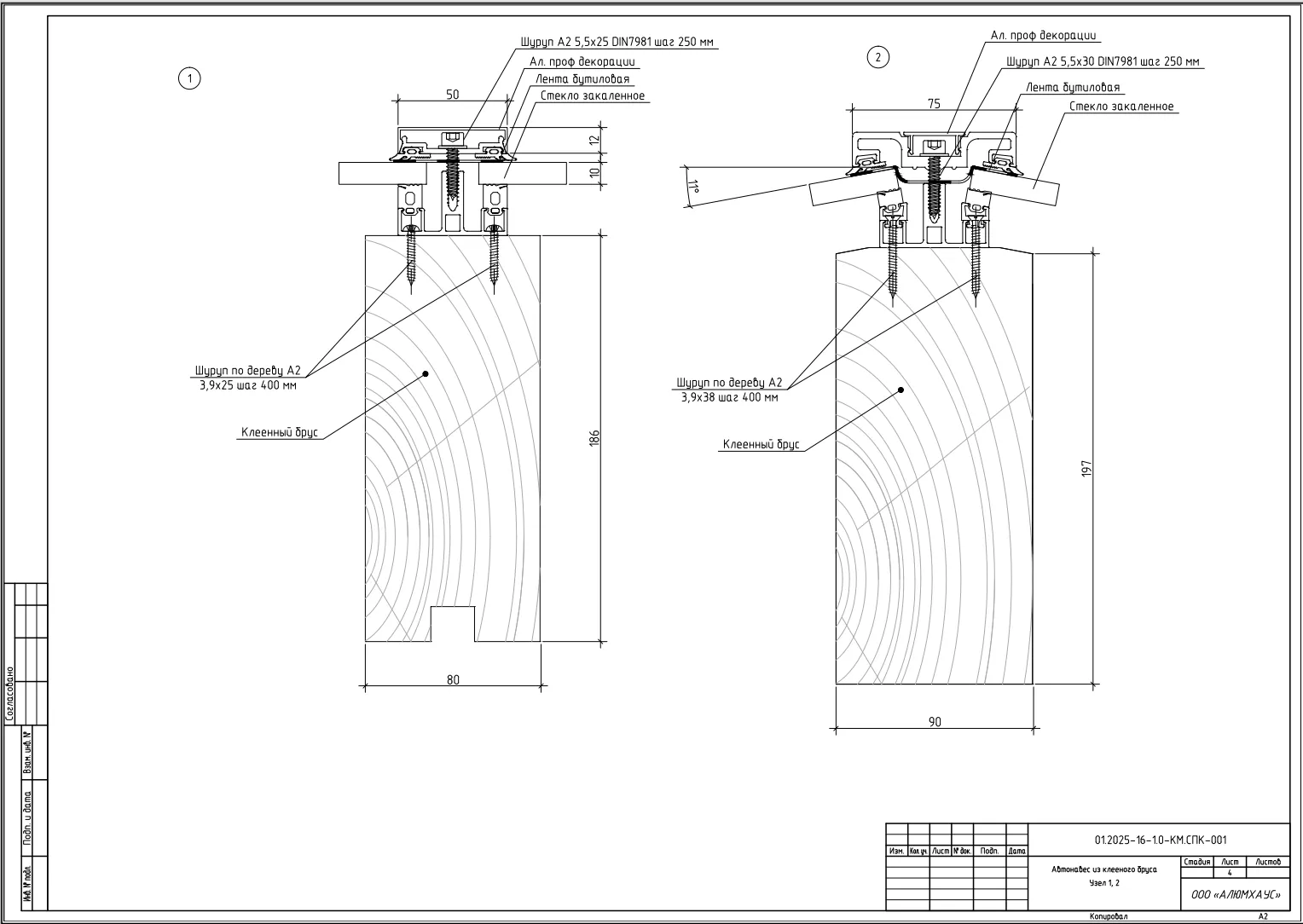
Накладная стоечно-ригельная система остекления по готовому каркасу Vidnal F50

Применяется при остеклении стеклянных навесов, крыш, фасадов по готовому несущему каркасу из металла, дерева, алюминия.

 

Особенности

Накладная стоечно-ригельная система Vidnal F50 представляет собой конструкцию, которая используется для создания надёжных и эстетичных стеклянных крыш и навесов. Система позволяет быстро и эффективно монтировать элементы по готовому каркасу, обеспечивая при этом высокую прочность и долговечность конструкции.

Система Vidnal F50 подходит для использования на готовом каркасе. Она включает в себя стойки и ригели, которые крепятся на каркас и формируют основу для монтажа стекла. Благодаря продуманной конструкции и качественным материалам, система обеспечивает равномерное распределение нагрузки и устойчивость конструкции. Применяется при остеклении стеклянных навесов, крыш, фасадов по готовому каркасу.

Характеристики
  • Используется вместе со стеклопакетом, стеком, триплексом
  • Видимая ширина, мм: 50
  • Max толщина стекла, стеклопакета мм:от 6 мм до 50
  • Окраска в любой цвет по шкале RAL
  • Резиновые уплотнители из EPDM материалов
  • Крепеж из А2 нерж., сталь.
Преимущества
  • Простота монтажа;
  • Надёжность и долговечность;
  • Возможность создания разнообразных дизайнерских решений;
  • Соответствие высоким стандартам качества.
Цена от 17 500 ₽ за м2